Rentals » Kansai » Kyoto » Nishikyo Ku
 
| Railroad-station 沿線・駅 | | Hankyu Arashiyama Line / UeKei 阪急嵐山線/上桂 | Address 住所 | | Kyoto, Kyoto Prefecture Nishikyo Ku Matsuodairi cho 京都府京都市西京区松尾大利町 | Walk 徒歩 | | 10 minutes 10分 | Rent 賃料 | | 88,800 yen 8.88万円 | Management expenses 管理費・共益費 | | 9000 yen 9000円 | Security deposit 敷金 | | 357,300 yen 35.73万円 | Floor plan 間取り | | 3LDK 3LDK | Occupied area 専有面積 | | 73.12 sq m 73.12m2 | Direction 向き | | West 西 | Type 種別 | | Mansion マンション | Year Built 築年 | | Built 16 years 築16年 | | West Court Ori ウエストコート大利 |
| Tokuyuchin とくゆうちん |
| Looking Nishikyo Ku rooms Please leave Kyoto life Katsuramise 西京区のお部屋探しは京都ライフ桂店にお任せ下さい |
| Bus toilet by, balcony, Gas stove correspondence, Flooring, Indoor laundry location, Corner dwelling unit, Elevator, Seperate, Bicycle-parking space, closet, CATV, Immediate Available, Key money unnecessary, Sorting, CATV Internet, Two tenants consultation, Bike shelter, High temperature difference between hot water formula, Musical Instruments consultation, Specific high-quality rental housing, 3 station more accessible, Within a 10-minute walk station, LDK12 tatami mats or moreese-style room, All room 6 tatami mats or more, City gas, BS, High speed Internet correspondence バストイレ別、バルコニー、ガスコンロ対応、フローリング、室内洗濯置、角住戸、エレベーター、洗面所独立、駐輪場、押入、CATV、即入居可、礼金不要、振分、CATVインターネット、二人入居相談、バイク置場、高温差湯式、楽器相談、特定優良賃貸住宅、3駅以上利用可、駅徒歩10分以内、LDK12畳以上、和室、全居室6畳以上、都市ガス、BS、高速ネット対応 |
Property name 物件名 | | Rental housing of Kyoto, Kyoto Prefecture Nishikyo Ku Matsuodairi cho above Katsura Station [Rental apartment ・ Apartment] information Property Details 京都府京都市西京区松尾大利町 上桂駅の賃貸住宅[賃貸マンション・アパート]情報 物件詳細 | Transportation facilities 交通機関 | | Hankyu Arashiyama Line / UeKei walk 10 minutes Hankyu Arashiyama Line / Matsuo Taisha walk 11 minutes Hankyu Arashiyama Line / Ayumi Arashiyama 28 minutes 阪急嵐山線/上桂 歩10分 阪急嵐山線/松尾大社 歩11分 阪急嵐山線/嵐山 歩28分
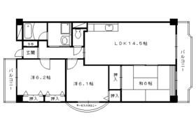
| Floor plan details 間取り詳細 | | Sum 6 Hiroshi 6.2 Hiroshi 6.1 LDK14.5 和6 洋6.2 洋6.1 LDK14.5 | Construction 構造 | | Rebar Con 鉄筋コン | Story 階建 | | 3rd floor / 5-story 3階/5階建 | Built years 築年月 | | September 1998 1998年9月 | Nonlife insurance 損保 | | 12,000 yen per year 1.2万円1年 | Parking lot 駐車場 | | Site 12600 yen 敷地内12600円 | Move-in 入居 | | Immediately 即 | Trade aspect 取引態様 | | Mediation 仲介 | Conditions 条件 | | Two people Available / Children Allowed / Musical Instruments consultation 二人入居可/子供可/楽器相談 | Property code 取り扱い店舗物件コード | | K15870-306x K15870-306x | Total units 総戸数 | | 32 units 32戸 | 特優賃 特優賃 | | Burden monthly 88,800 yen ~ 負担月額 8.88万円 ~ | Remarks 備考 | | Hankyu Kyoto Line Katsura Station walk 33 minutes 阪急京都線桂駅徒歩33分 | Area information 周辺情報 | | Super Shokuirodori Museum core Matsuo (super) up to 10m Matsuo Elementary School (Matsuoido Town) (elementary school) up to 80m Matsuo post office 200m Matsuo junior high school up to 185m Hops drag it to the (post office) (drugstore) (Matsumuronakamizo Town) (junior high school) スーパー食彩館コア松尾(スーパー)まで10m松尾小学校(松尾井戸町)(小学校)まで80m松尾郵便局(郵便局)まで185mホップスドラッグ(ドラッグストア)まで200m松尾中学校(松室中溝町)(中学校)まで347mセブンイレブン(コンビニ)まで425m |
Building appearance建物外観 
Living and room居室・リビング 



Kitchenキッチン 
Bathバス 
Toiletトイレ 
Receipt収納 
Washroom洗面所 
Balconyバルコニー 
Entrance玄関 

Supermarketスーパー  10m to super Shokuirodori Museum core Matsuo (super)
スーパー食彩館コア松尾(スーパー)まで10m
Convenience storeコンビニ  425m to Seven-Eleven (convenience store)
セブンイレブン(コンビニ)まで425m
Dorakkusutoaドラックストア  Hops 200m to drag (drugstore)
ホップスドラッグ(ドラッグストア)まで200m
Junior high school中学校  Matsuo junior high school (Matsumuronakamizo Town) (junior high school) up to 347m
松尾中学校(松室中溝町)(中学校)まで347m
Primary school小学校  Matsuo up to elementary school (Matsuoido Town) (elementary school) 80m
松尾小学校(松尾井戸町)(小学校)まで80m
Post office郵便局  185m to Matsuo post office (post office)
松尾郵便局(郵便局)まで185m
Location
|