Rentals » Kansai » Kyoto » Nishikyo Ku
 
| Railroad-station 沿線・駅 | | Hankyu Kyoto Line / Knight 阪急京都線/桂 | Address 住所 | | Kyoto, Kyoto Prefecture Nishikyo Ku Oenakayama cho 京都府京都市西京区大枝中山町 | Walk 徒歩 | | 37 minutes 37分 | Rent 賃料 | | 50,000 yen 5万円 | Management expenses 管理費・共益費 | | 3000 yen 3000円 | Floor plan 間取り | | 2DK 2DK | Occupied area 専有面積 | | 40.5 sq m 40.5m2 | Direction 向き | | South 南 | Type 種別 | | Apartment アパート | Year Built 築年 | | Built 28 years 築28年 | | Meruveyu Katsura メルヴェーユ桂 |
| Room share negotiable ルームシェア相談可 |
| Looking Nishikyo Ku of the room, please leave it to Kyoto life Katsuramise 西京区のお部屋探しは京都ライフ桂店にお任せください |
| Bus toilet by, balcony, Gas stove correspondence, TV interphone, Indoor laundry location, Facing south, Add-fired function bathroom, Corner dwelling unit, Warm water washing toilet seat, Bicycle-parking space, closet, CATV, Optical fiber, Immediate Available, Key money unnecessary, Deposit required, Sorting, Two tenants consultation, Bike shelter, 3 station more accessibleese-style room, All room 6 tatami mats or more, propane gas, High speed Internet correspondence バストイレ別、バルコニー、ガスコンロ対応、TVインターホン、室内洗濯置、南向き、追焚機能浴室、角住戸、温水洗浄便座、駐輪場、押入、CATV、光ファイバー、即入居可、礼金不要、敷金不要、振分、二人入居相談、バイク置場、3駅以上利用可、和室、全居室6畳以上、プロパンガス、高速ネット対応 |
Property name 物件名 | | Rental housing of Kyoto, Kyoto Prefecture Nishikyo Ku Oenakayama-cho, Katsura Station [Rental apartment ・ Apartment] information Property Details 京都府京都市西京区大枝中山町 桂駅の賃貸住宅[賃貸マンション・アパート]情報 物件詳細 | Transportation facilities 交通機関 | | Hankyu Kyoto Line / Ayumi Katsura 37 minutes Hankyu Kyoto Line / Lok west entrance walk 39 minutes JR Tokaido Line / Ayumi Katsura 49 minutes 阪急京都線/桂 歩37分 阪急京都線/洛西口 歩39分 JR東海道本線/桂川 歩49分
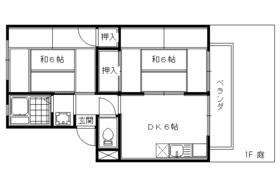
| Floor plan details 間取り詳細 | | Sum 6 sum 6 DK6 和6 和6 DK6 | Construction 構造 | | Light-gauge steel 軽量鉄骨 | Story 階建 | | 1st floor / 2-story 1階/2階建 | Built years 築年月 | | April 1987 1987年4月 | Nonlife insurance 損保 | | 22,000 yen two years 2.2万円2年 | Parking lot 駐車場 | | On-site 7000 yen 敷地内7000円 | Move-in 入居 | | Immediately 即 | Trade aspect 取引態様 | | Mediation 仲介 | Conditions 条件 | | Two people Available / Children Allowed 二人入居可/子供可 | Property code 取り扱い店舗物件コード | | K14286-101 K14286-101 | Total units 総戸数 | | 10 units 10戸 | Remarks 備考 | | Hankyu Arashiyama Line UeKei Station walk 40 minutes 阪急嵐山線上桂駅徒歩40分 | Area information 周辺情報 | | McDonald's Route 9 Zhongshan shop (restaurant) to 350m Sunkus Oenakayama store (convenience store) up to 500m boughs elementary school (elementary school) up to 520m business super Rakusai store (supermarket) up to 730m Seven-Eleven Kyoto Oenakayama store (other) up to 790m Kyoto College of Economics ・ 360m up to junior college) マクドナルド 9号線中山店(飲食店)まで350mサンクス大枝中山店(コンビニ)まで500m大枝小学校(小学校)まで520m業務スーパー 洛西店(スーパー)まで730mセブンイレブン京都大枝中山店(その他)まで790m京都経済短期大学(大学・短大)まで360m |
Building appearance建物外観 
Living and room居室・リビング 






Kitchenキッチン 
Bathバス 
Toiletトイレ 
Receipt収納 

Supermarketスーパー  730m to business super Rakusai store (Super)
業務スーパー 洛西店(スーパー)まで730m
Convenience storeコンビニ  500m to Sunkus Oenakayama store (convenience store)
サンクス大枝中山店(コンビニ)まで500m
Primary school小学校  Bough up to elementary school (elementary school) 520m
大枝小学校(小学校)まで520m
Restaurant飲食店  McDonald's Route 9 350m to Zhongshan shop (restaurant)
マクドナルド 9号線中山店(飲食店)まで350m
University ・ Junior college大学・短大  Kyoto College of Economics (University of ・ 360m up to junior college)
京都経済短期大学(大学・短大)まで360m
Otherその他  Seven-Eleven Kyoto Oenakayama store up to (other) 790m
セブンイレブン京都大枝中山店(その他)まで790m
Location
|