Rentals » Kansai » Kyoto » Nishikyo Ku


Sanhaimu Inoue
Tokuyuchin
Looking Nishikyo Ku rooms Please leave Kyoto life Katsuramise.
Bus toilet by, balcony, Gas stove correspondence, Flooring, Washbasin with shower, Indoor laundry location, Yang per good, Facing south, Corner dwelling unit, Elevator, Seperate, Bicycle-parking space, closet, Immediate Available, Key money unnecessary, Sorting, CATV Internet, Two tenants consultation, High temperature difference between hot water formula, Musical Instruments consultation, Specific high-quality rental housing, 3 station more accessible, LDK12 tatami mats or moreese-style room, City gas, BS, High speed Internet correspondence
Railroad-station
Hankyu Kyoto Line / Knight
Address
Kyoto, Kyoto Prefecture Nishikyo Ku Katsuranishitakigawa cho
Walk
15 minutes
Rent
79,600 yen
Management expenses
11500 yen
Security deposit
320,400 yen
Floor plan
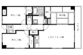
3LDK
Occupied area
66.63 sq m
Direction
South
Type
Mansion
Year Built
Built 18 years
Property name
Rental housing of Kyoto, Kyoto Prefecture Nishikyo Ku Katsuranishitakigawa-cho, Katsura Station [Rental apartment ・ Apartment] information Property Details
Transportation facilities
Hankyu Kyoto Line / Ayumi Katsura 15 minutes
JR Tokaido Line / Ayumi Katsura 25 minutes
Hankyu Kyoto Line / Lok west entrance walk 30 minutes
Floor plan details
Sum 6 Hiroshi 6.3 Hiroshi 5.1 LDK12.8
Construction
Rebar Con
Story
Second floor / Underground 1 above ground 5 story
Built years
September 1996
Nonlife insurance
20,000 yen two years
Move-in
Immediately
Trade aspect
Mediation
Conditions
Two people Available / Children Allowed / Musical Instruments consultation
Property code
K15859-201x
Total units
18 units
特優賃
Burden monthly 79,600 yen ~
Remarks
Hankyu Kyoto Line Higashi-Mukō Station walk 47 minutes
Area information
McDonald's Kyoto Katsurahigashi store (restaurant) to 70m Dax Katsurahigashi store (drugstore) to 120m Lawson Katsuranishitakigawa store (convenience store) up to 135m fresh Museum Cosmo Katsuramise (super) up to 445m Katsurahigashi elementary school (elementary school) 448m gust Kyoto Katsura to


Building appearance

Building appearance

Living and room

Living and room
Living and room
Living and room
Living and room
Living and room
Living and room
Living and room
Living and room

Kitchen

Kitchen
Kitchen

Bath

Bath

Toilet

Toilet

Supermarket

Supermarket. 445m until fresh Museum Cosmo Katsuramise (super)
445m until fresh Museum Cosmo Katsuramise (super)

Convenience store

Convenience store. 135m until Lawson Katsuranishitakigawa store (convenience store)
135m until Lawson Katsuranishitakigawa store (convenience store)

Dorakkusutoa

Dorakkusutoa. 120m until Dax Katsurahigashi store (drugstore)
120m until Dax Katsurahigashi store (drugstore)

Primary school

Primary school. Katsurahigashi up to elementary school (elementary school) 448m
Katsurahigashi up to elementary school (elementary school) 448m

Restaurant

restaurant. 70m to McDonald's Kyoto Katsurahigashi store (restaurant)
70m to McDonald's Kyoto Katsurahigashi store (restaurant)

restaurant. 540m to gust Kyoto Katsuramise (restaurant)
540m to gust Kyoto Katsuramise (restaurant)



Location