Rentals » Kansai » Kyoto » Nishikyo Ku
 
| Railroad-station 沿線・駅 | | Hankyu Kyoto Line / Knight 阪急京都線/桂 | Address 住所 | | Kyoto, Kyoto Prefecture Nishikyo Ku Katsuratokudaiji cho 京都府京都市西京区桂徳大寺町 | Walk 徒歩 | | 24 minutes 24分 | Rent 賃料 | | 60,000 yen 6万円 | Key money 礼金 | | ¥ 100,000 10万円 | Security deposit 敷金 | | 50,000 yen 5万円 | Floor plan 間取り | | 2DK 2DK | Occupied area 専有面積 | | 41.16 sq m 41.16m2 | Direction 向き | | East 東 | Type 種別 | | Mansion マンション | Year Built 築年 | | Built 26 years 築26年 | | Residence Yamate レジデンス山手 |
| Medium-sized bike parked possible! 中型バイクも駐輪可能! |
| convenience store ・ Supermarket ・ Drugstore are within life! コンビニ・スーパー・ドラッグストアが生活圏内です! |
| Bus toilet by, balcony, Air conditioning, Gas stove correspondence, Flooring, Indoor laundry location, Yang per good, Corner dwelling unit, Seperate, Bicycle-parking space, closet, Optical fiber, Immediate Available, Two tenants consultation, 3 station more accessibleese-style room, City gas バストイレ別、バルコニー、エアコン、ガスコンロ対応、フローリング、室内洗濯置、陽当り良好、角住戸、洗面所独立、駐輪場、押入、光ファイバー、即入居可、二人入居相談、3駅以上利用可、和室、都市ガス |
Property name 物件名 | | Rental housing of Kyoto, Kyoto Prefecture Nishikyo Ku Katsuratokudaiji-cho, Katsura Station [Rental apartment ・ Apartment] information Property Details 京都府京都市西京区桂徳大寺町 桂駅の賃貸住宅[賃貸マンション・アパート]情報 物件詳細 | Transportation facilities 交通機関 | | Hankyu Kyoto Line / Ayumi Katsura 24 minutes Hankyu Arashiyama Line / UeKei walk 14 minutes Hankyu Kyoto Line / Lok west entrance walk 43 minutes 阪急京都線/桂 歩24分 阪急嵐山線/上桂 歩14分 阪急京都線/洛西口 歩43分
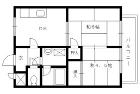
| Floor plan details 間取り詳細 | | Sum 6 sum 4.5 DK6 和6 和4.5 DK6 | Construction 構造 | | Steel frame 鉄骨 | Story 階建 | | Second floor / 4-story 2階/4階建 | Built years 築年月 | | June 1988 1988年6月 | Nonlife insurance 損保 | | 21,000 yen two years 2.1万円2年 | Parking lot 駐車場 | | On-site 8000 yen 敷地内8000円 | Move-in 入居 | | Immediately 即 | Trade aspect 取引態様 | | Mediation 仲介 | Property code 取り扱い店舗物件コード | | W04235-206 W04235-206 | Total units 総戸数 | | 17 units 17戸 | Area information 周辺情報 | | KatsuraIsao up to elementary school (elementary school) up to 300m Matsumoto (super) up to 450m Sunkus (convenience store) up to 550m Mitsubishi Kyoto Hospital (hospital) to 850m Katsura junior high school (junior high school) up to 1300m on the Katsura Station (other) 1053m 桂徳小学校(小学校)まで300mマツモト(スーパー)まで450mサンクス(コンビニ)まで550m三菱京都病院(病院)まで850m桂中学校(中学校)まで1300m上桂駅(その他)まで1053m |
Building appearance建物外観 
Living and room居室・リビング 




Kitchenキッチン 


Bathバス 
Toiletトイレ 
Washroom洗面所 
Entrance玄関 
Supermarketスーパー  Matsumoto until the (super) 450m
マツモト(スーパー)まで450m
Convenience storeコンビニ  550m until Thanksgiving (convenience store)
サンクス(コンビニ)まで550m
Junior high school中学校  Katsura 1300m until junior high school (junior high school)
桂中学校(中学校)まで1300m
Primary school小学校  KatsuraIsao 300m up to elementary school (elementary school)
桂徳小学校(小学校)まで300m
Hospital病院  850m to Mitsubishi Kyoto Hospital (Hospital)
三菱京都病院(病院)まで850m
Otherその他  1053m to the upper Katsura Station (Other)
上桂駅(その他)まで1053m
Location
|