Rentals » Kansai » Kyoto » Nishikyo Ku
 
| Railroad-station 沿線・駅 | | Hankyu Arashiyama Line / UeKei 阪急嵐山線/上桂 | Address 住所 | | Kyoto, Kyoto Prefecture Nishikyo Ku Matsuodairi cho 京都府京都市西京区松尾大利町 | Walk 徒歩 | | 5 minutes 5分 | Rent 賃料 | | 87,400 yen 8.74万円 | Management expenses 管理費・共益費 | | 9000 yen 9000円 | Security deposit 敷金 | | 351,600 yen 35.16万円 | Floor plan 間取り | | 3LDK 3LDK | Occupied area 専有面積 | | 71.91 sq m 71.91m2 | Direction 向き | | West 西 | Type 種別 | | Mansion マンション | Year Built 築年 | | Built 17 years 築17年 | | Waistcoat Ori ウェストコート大利 |
| Kyoto City Housing Corporation Property 京都市住宅供給公社物件 |
| Renewal fee ・ Unnecessary brokerage fees. Tokuyuchin. The qualification criteria Contact Us 更新料・仲介手数料不要。特優賃。資格審査基準はお問い合わせを |
| Bus toilet by, balcony, Gas stove correspondence, Flooring, Indoor laundry location, Yang per good, Elevator, Seperate, Bicycle-parking space, closet, CATV, Immediate Available, Key money unnecessary, Face-to-face kitchen, Sorting, CATV Internet, Two tenants consultation, High temperature difference between hot water formula, Musical Instruments consultation, Specific high-quality rental housing, 3 station more accessible, Within a 5-minute walk station, LDK12 tatami mats or moreese-style room, All room 6 tatami mats or more, City gas, BS, High speed Internet correspondence バストイレ別、バルコニー、ガスコンロ対応、フローリング、室内洗濯置、陽当り良好、エレベーター、洗面所独立、駐輪場、押入、CATV、即入居可、礼金不要、対面式キッチン、振分、CATVインターネット、二人入居相談、高温差湯式、楽器相談、特定優良賃貸住宅、3駅以上利用可、駅徒歩5分以内、LDK12畳以上、和室、全居室6畳以上、都市ガス、BS、高速ネット対応 |
Property name 物件名 | | Rental housing of Kyoto, Kyoto Prefecture Nishikyo Ku Matsuodairi cho above Katsura Station [Rental apartment ・ Apartment] information Property Details 京都府京都市西京区松尾大利町 上桂駅の賃貸住宅[賃貸マンション・アパート]情報 物件詳細 | Transportation facilities 交通機関 | | Hankyu Arashiyama Line / UeKei walk 5 minutes Hankyu Kyoto Line / Ayumi Katsura 33 minutes Hankyu Arashiyama Line / Matsuo Taisha walk 12 minutes 阪急嵐山線/上桂 歩5分 阪急京都線/桂 歩33分 阪急嵐山線/松尾大社 歩12分
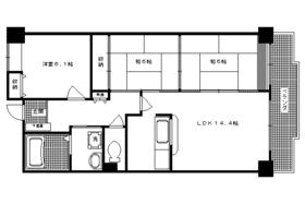
| Floor plan details 間取り詳細 | | Sum 6 sum 6 Hiroshi 6.1 LDK14.4 和6 和6 洋6.1 LDK14.4 | Construction 構造 | | Rebar Con 鉄筋コン | Story 階建 | | 3rd floor / 4-story 3階/4階建 | Built years 築年月 | | September 1997 1997年9月 | Nonlife insurance 損保 | | 21,000 yen two years 2.1万円2年 | Parking lot 駐車場 | | Site 12000 yen 敷地内12000円 | Move-in 入居 | | Immediately 即 | Trade aspect 取引態様 | | Mediation 仲介 | Conditions 条件 | | Children Allowed / Musical Instruments consultation 子供可/楽器相談 | Property code 取り扱い店舗物件コード | | W85929-305 W85929-305 | Total units 総戸数 | | 12 units 12戸 | 特優賃 特優賃 | | Burden monthly 87,400 yen ~ 117,200 yen 負担月額 8.74万円 ~ 11.72万円 | Remarks 備考 | | Hankyu Arashiyama Line Arashiyama Station walk 28 minutes 阪急嵐山線嵐山駅徒歩28分 | Area information 周辺情報 | | Shokuirodorikan core Matsuo (super) up to 10m Matsuo elementary school (elementary school) up to 87m Seven-Eleven Kyoto UeKei Yamada Kuchiten (convenience store) up to 600m on the Katsura Station to 425m Matsuo junior high school (junior high school) (Other) up to 400m Katsura Station to (other) 2600m 食彩館コア松尾(スーパー)まで10m松尾小学校(小学校)まで87mセブンイレブン京都上桂山田口店(コンビニ)まで425m松尾中学校(中学校)まで600m上桂駅(その他)まで400m桂駅(その他)まで2600m |
Building appearance建物外観 
Living and room居室・リビング 





Kitchenキッチン 

Bathバス 
Toiletトイレ 
Receipt収納 
Washroom洗面所 
Supermarketスーパー  Shokuirodorikan core Matsuo to (super) 10m
食彩館コア松尾(スーパー)まで10m
Convenience storeコンビニ  Seven-Eleven Kyoto UeKei Yamada Kuchiten (convenience store) to 425m
セブンイレブン京都上桂山田口店(コンビニ)まで425m
Junior high school中学校  Matsuo 600m until junior high school (junior high school)
松尾中学校(中学校)まで600m
Primary school小学校  Matsuo 87m up to elementary school (elementary school)
松尾小学校(小学校)まで87m
Otherその他  400m to the upper Katsura Station (Other)
上桂駅(その他)まで400m
 2600m to Katsura Station (Other)
桂駅(その他)まで2600m
Location
|