Rentals » Kansai » Kyoto » Nishikyo Ku
 
| Railroad-station 沿線・駅 | | Hankyu Kyoto Line / Knight 阪急京都線/桂 | Address 住所 | | Kyoto, Kyoto Prefecture Nishikyo Ku Katsuraichinomae cho 京都府京都市西京区桂市ノ前町 | Walk 徒歩 | | 5 minutes 5分 | Rent 賃料 | | 69,000 yen 6.9万円 | Security deposit 敷金 | | 69,000 yen 6.9万円 | Floor plan 間取り | | 3K 3K | Occupied area 専有面積 | | 43.05 sq m 43.05m2 | Direction 向き | | North 北 | Type 種別 | | terrace ・ Townhouse テラス・タウンハウス | Year Built 築年 | | Built 35 years 築35年 | | Katsuraichinomae the town houses for rent 桂市ノ前町貸家 |
| Pets welcome breeding ペット飼育可能 |
| Facilities are aligned within a 10-minute walk necessary to life 生活に必要な施設は徒歩10分圏内にそろいます |
| Bus toilet by, Gas stove correspondence, Flooring, Yang per good, Seperate, Bicycle-parking space, closet, Immediate Available, Key money unnecessary, Pets Negotiable, Sale rent, Deposit 1 month, Two tenants consultation, Bike shelter, garden, 3 station more accessible, Within a 5-minute walk stationese-style room, City gas バストイレ別、ガスコンロ対応、フローリング、陽当り良好、洗面所独立、駐輪場、押入、即入居可、礼金不要、ペット相談、分譲賃貸、敷金1ヶ月、二人入居相談、バイク置場、庭、3駅以上利用可、駅徒歩5分以内、和室、都市ガス |
Property name 物件名 | | Rental housing of Kyoto, Kyoto Prefecture Nishikyo Ku Katsuraichinomae-cho, Katsura Station [Rental apartment ・ Apartment] information Property Details 京都府京都市西京区桂市ノ前町 桂駅の賃貸住宅[賃貸マンション・アパート]情報 物件詳細 | Transportation facilities 交通機関 | | Hankyu Kyoto Line / Ayumi Katsura 5 minutes JR Tokaido Line / Ayumi Katsura 25 minutes Hankyu Kyoto Line / Lok west entrance walk 25 minutes 阪急京都線/桂 歩5分 JR東海道本線/桂川 歩25分 阪急京都線/洛西口 歩25分
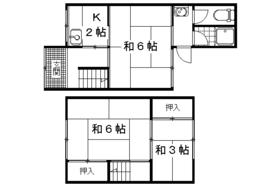
| Floor plan details 間取り詳細 | | Sum 6 sum 6 sum 3 K2 和6 和6 和3 K2 | Construction 構造 | | Wooden 木造 | Story 階建 | | 1st floor / 2-story 1階/2階建 | Built years 築年月 | | April 1980 1980年4月 | Nonlife insurance 損保 | | 20,000 yen two years 2万円2年 | Move-in 入居 | | Immediately 即 | Trade aspect 取引態様 | | Mediation 仲介 | Conditions 条件 | | Two people Available / Children Allowed / Pets Negotiable 二人入居可/子供可/ペット相談 | Property code 取り扱い店舗物件コード | | K14413-ExB K14413-ExB | Total units 総戸数 | | 4 units 4戸 | Remarks 備考 | | Hankyu Kyoto Line Nishi-Kyōgoku Station walk 29 minutes 阪急京都線西京極駅徒歩29分 | Area information 周辺情報 | | Katsurahigashi 220m Delica chef to elementary school (elementary school) up to 112m Sandy Katsuramise (super) up to 220m Kyoto Katsura post office (post office) (Other) up to 275m Lawson Katsuranishitakigawa store (convenience store) up to 400m Dax Katsurahigashi store up to (drugstore) 桂東小学校(小学校)まで112mサンディ 桂店(スーパー)まで220m京都桂郵便局(郵便局)まで220mデリカシェフ(その他)まで275mローソン桂西滝川店(コンビニ)まで400mダックス 桂東店(ドラッグストア)まで400m |
Building appearance建物外観 
Living and room居室・リビング 
 Scent of rush will soothe the mind
井草の香りが心を落ち着かせます
 Scent of rush will soothe the mind
井草の香りが心を落ち着かせます
 Scent of rush will soothe the mind
井草の香りが心を落ち着かせます
 Scent of rush will soothe the mind
井草の香りが心を落ち着かせます
 Scent of rush will soothe the mind
井草の香りが心を落ち着かせます
Kitchenキッチン  Or trying to do tonight cuisine
今夜の料理は何にしようか
 The floor has become the cushion floor
床はクッションフロアになってます
Bathバス  Tired of the day sitz bath ・ ・ ・
一日の疲れは半身浴で・・・
Washroom洗面所  Retro feel irresistible
レトロ感がたまりません
Entrance玄関  Shoes Let lined Once you take off
靴は脱いだら並べましょう
View眺望  Washing machine you can put in here
洗濯機はココに置いて頂けます
Supermarketスーパー  220m to Sandy Katsuramise (super)
サンディ 桂店(スーパー)まで220m
Convenience storeコンビニ  400m until Lawson Katsuranishitakigawa store (convenience store)
ローソン桂西滝川店(コンビニ)まで400m
Dorakkusutoaドラックストア  Dax Katsurahigashi store (drugstore) to 400m
ダックス 桂東店(ドラッグストア)まで400m
Primary school小学校  Katsurahigashi up to elementary school (elementary school) 112m
桂東小学校(小学校)まで112m
Post office郵便局  220m to Kyoto Katsura post office (post office)
京都桂郵便局(郵便局)まで220m
Otherその他  Delica 275m until the chef (Other)
デリカシェフ(その他)まで275m
Location
|