Rentals » Kansai » Kyoto » Nishikyo Ku


Arashiyama Heights
Matsuo Taisha Shrine is the front of the eye
All four number of houses fully equipped Heights. All is flooring.
Bus toilet by, balcony, Air conditioning, Gas stove correspondence, Flooring, Washbasin with shower, TV interphone, Indoor laundry location, Yang per good, System kitchen, Add-fired function bathroom, Corner dwelling unit, Warm water washing toilet seat, Seperate, Bicycle-parking space, closet, Optical fiber, Immediate Available, 3-neck over stove, With lighting, All room Western-style, Two tenants consultation, Bike shelter, CS, Within built 2 years, Barrier-free, Room share consultation, 3 station more accessible, Within a 5-minute walk station, Southeast direction, City gas, BS
Railroad-station
Hankyu Arashiyama Line / Matsuo Taisha
Address
Kyoto, Kyoto Prefecture Nishikyo Ku Arashiyamamiyanomae cho
Walk
4 minutes
Rent
75,000 yen
Management expenses
3000 yen
Key money
80,000 yen
Security deposit
¥ 100,000
Floor plan
2DK
Occupied area
46.11 sq m
Direction
Southeast
Type
Apartment
Year Built
New construction
Property name
Rental housing of Kyoto, Kyoto Prefecture Nishikyo Ku Arashiyamamiyanomae cho Matsuo Taisha Station [Rental apartment ・ Apartment] information Property Details
Transportation facilities
Hankyu Arashiyama Line / Matsuo Taisha walk 4 minutes
Hankyu Kyoto Line / Ayumi Katsura 45 minutes
Hankyu Arashiyama Line / Ayumi Arashiyama 15 minutes
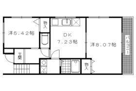
Floor plan details
Hiroshi 8.07 Hiroshi 5.42 DK7.23
Construction
Wooden
Story
1st floor / 2-story
Built years
New construction December 2013
Nonlife insurance
20,000 yen two years
Parking lot
Site 10000 yen
Move-in
Immediately
Trade aspect
Mediation
Conditions
Two people Available / Children Allowed / Room share consultation
Property code
K53709-102
Total units
4 units
Remarks
Hankyu Arashiyama Line UeKei Station walk 23 minutes
Area information
FamilyMart Matsuo Taisha before store (convenience store) 750m Fresco Umezu store up to 300m live Arashiyama (super) to (other) up to 850m to Arashiyama Higashi elementary school (elementary school) 900m business super Umezu shop 1400m until the (other) up to 1200m Matsuo junior high school (junior high school)


Building appearance

Building appearance

Living and room

Living and room
Living and room. How Let's do coordination?
How Let's do coordination?

Living and room
Living and room
Living and room

Kitchen

Kitchen. I've settled down in the chic
I've settled down in the chic

Bath

Bath. Slowly bathing in the large bathtub of a little width.
Slowly bathing in the large bathtub of a little width.

Toilet

Toilet. I There is a feeling of cleanliness
I There is a feeling of cleanliness

Receipt

Receipt

Washroom

Washroom. You can put even the indoor washing machine
You can put even the indoor washing machine

Balcony

Balcony. You Jose also of course laundry
You Jose also of course laundry

Entrance

Entrance. Customers Ira' Shai!
Customers Ira' Shai!

Supermarket

Supermarket. 750m live up to Arashiyama (super)
750m live up to Arashiyama (super)

Convenience store

Convenience store. FamilyMart Matsuo Taisha before store up (convenience store) 300m
FamilyMart Matsuo Taisha before store up (convenience store) 300m

Junior high school

Junior high school. Matsuo 1400m until junior high school (junior high school)
Matsuo 1400m until junior high school (junior high school)

Primary school

Primary school. 900m to Arashiyama Higashi elementary school (elementary school)
900m to Arashiyama Higashi elementary school (elementary school)

Other

Other. 850m to fresco Umezu shop (Other)
850m to fresco Umezu shop (Other)

Other. 1200m to business super Umezu shop (Other)
1200m to business super Umezu shop (Other)



Location