Rentals » Kansai » Kyoto » Nishikyo Ku
 
| Railroad-station 沿線・駅 | | Hankyu Kyoto Line / Knight 阪急京都線/桂 | Address 住所 | | Kyoto, Kyoto Prefecture Nishikyo Ku Goryotsukanokoshi cho 京都府京都市西京区御陵塚ノ越町 | Walk 徒歩 | | 18 minutes 18分 | Rent 賃料 | | 75,000 yen 7.5万円 | Floor plan 間取り | | 2LDK 2LDK | Occupied area 専有面積 | | 55 sq m 55m2 | Direction 向き | | West 西 | Type 種別 | | Apartment アパート | Year Built 築年 | | Built 21 years 築21年 | | House Advance ハウスアドバンス |
| Garage one free! ガレージ1台無料! |
| Garage one free 2LDK type of property is an attractive! ガレージ1台無料の2LDKタイプの物件は魅力です! |
| Bus toilet by, balcony, Gas stove correspondence, Flooring, Washbasin with shower, Bathroom Dryer, Indoor laundry location, Yang per good, System kitchen, Corner dwelling unit, Seperate, Two-burner stove, closet, Immediate Available, Key money unnecessary, Deposit required, Two tenants consultation, 3 station more accessibleese-style room, All room 6 tatami mats or more, City gas バストイレ別、バルコニー、ガスコンロ対応、フローリング、シャワー付洗面台、浴室乾燥機、室内洗濯置、陽当り良好、システムキッチン、角住戸、洗面所独立、2口コンロ、押入、即入居可、礼金不要、敷金不要、二人入居相談、3駅以上利用可、和室、全居室6畳以上、都市ガス |
Property name 物件名 | | Rental housing of Kyoto, Kyoto Prefecture Nishikyo Ku Goryotsukanokoshi-cho, Katsura Station [Rental apartment ・ Apartment] information Property Details 京都府京都市西京区御陵塚ノ越町 桂駅の賃貸住宅[賃貸マンション・アパート]情報 物件詳細 | Transportation facilities 交通機関 | | Hankyu Kyoto Line / Ayumi Katsura 18 minutes Hankyu Arashiyama Line / UeKei walk 22 minutes Hankyu Arashiyama Line / Matsuo Taisha walk 34 minutes 阪急京都線/桂 歩18分 阪急嵐山線/上桂 歩22分 阪急嵐山線/松尾大社 歩34分
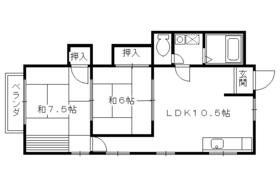
| Floor plan details 間取り詳細 | | Sum 7.5 Hiroshi 6 LDK10.5 和7.5 洋6 LDK10.5 | Construction 構造 | | Wooden 木造 | Story 階建 | | 1st floor / 2-story 1階/2階建 | Built years 築年月 | | September 1993 1993年9月 | Nonlife insurance 損保 | | 20,000 yen two years 2万円2年 | Parking lot 駐車場 | | Free with 付無料 | Move-in 入居 | | Immediately 即 | Trade aspect 取引態様 | | Mediation 仲介 | Conditions 条件 | | Two people Available 二人入居可 | Property code 取り扱い店舗物件コード | | W85641-1 W85641-1 | Total units 総戸数 | | 14 units 14戸 | Remarks 備考 | | Hankyu Kyoto Line Rakusaiguchi Station walk 34 minutes 阪急京都線洛西口駅徒歩34分 | Area information 周辺情報 | | Seiyu, Ltd. Katsuramise 2700m until the (super) up to 350m FamilyMart Xijing Katagihara store (convenience store) up to 850m Katsura Station (other) up to 1440m on the Katsura Station (other) up to 1700m Rakusaiguchi Station (other) up to 2700m Matsuo Station (Other) 西友 桂店(スーパー)まで350mファミリーマート西京樫原店(コンビニ)まで850m桂駅(その他)まで1440m上桂駅(その他)まで1700m洛西口駅(その他)まで2700m松尾駅(その他)まで2700m |
Building appearance建物外観 
Living and room居室・リビング 


Kitchenキッチン 




Bathバス 
Toiletトイレ 
Receipt収納 
Washroom洗面所 
Supermarketスーパー  Seiyu, Ltd. 350m until Katsuramise (super)
西友 桂店(スーパー)まで350m
Convenience storeコンビニ  FamilyMart Xijing Katagihara store up (convenience store) 850m
ファミリーマート西京樫原店(コンビニ)まで850m
Otherその他  1440m to Katsura Station (Other)
桂駅(その他)まで1440m
 1700m to the upper Katsura Station (Other)
上桂駅(その他)まで1700m
 Rakusaiguchi Station to (other) 2700m
洛西口駅(その他)まで2700m
 2700m to Matsuo Station (Other)
松尾駅(その他)まで2700m
Location
|