Rentals » Kansai » Kyoto » Nishikyo Ku
 
| Railroad-station 沿線・駅 | | Hankyu Arashiyama Line / UeKei 阪急嵐山線/上桂 | Address 住所 | | Kyoto, Kyoto Prefecture Nishikyo Ku Matsumuroatagami cho 京都府京都市西京区松室吾田神町 | Walk 徒歩 | | 7 minutes 7分 | Rent 賃料 | | 68,000 yen 6.8万円 | Key money 礼金 | | 68,000 yen 6.8万円 | Security deposit 敷金 | | 68,000 yen 6.8万円 | Floor plan 間取り | | 2DK 2DK | Occupied area 専有面積 | | 39.01 sq m 39.01m2 | Direction 向き | | South 南 | Type 種別 | | Apartment アパート | Year Built 築年 | | Built 20 years 築20年 | | Sefira UeKei セフィラ上桂 |
| Matsuo Elementary School District! 松尾小学校区! |
| Please refer to the attention to the garage fee. You can reduce the monthly cost ガレージ代に注目をしてください。月額費用を抑えていただけます |
| Bus toilet by, balcony, Air conditioning, Gas stove correspondence, Flooring, Washbasin with shower, Indoor laundry location, Yang per good, Facing south, Seperate, Bicycle-parking space, closet, Optical fiber, Immediate Available, Deposit 1 month, Two tenants consultation, CS, 3 station more accessible, Within a 10-minute walk stationese-style room, All room 6 tatami mats or more, City gas, BS, High speed Internet correspondence, Key money one month バストイレ別、バルコニー、エアコン、ガスコンロ対応、フローリング、シャワー付洗面台、室内洗濯置、陽当り良好、南向き、洗面所独立、駐輪場、押入、光ファイバー、即入居可、敷金1ヶ月、二人入居相談、CS、3駅以上利用可、駅徒歩10分以内、和室、全居室6畳以上、都市ガス、BS、高速ネット対応、礼金1ヶ月 |
Property name 物件名 | | Rental housing of Kyoto, Kyoto Prefecture Nishikyo Ku Matsumuroatagami cho above Katsura Station [Rental apartment ・ Apartment] information Property Details 京都府京都市西京区松室吾田神町 上桂駅の賃貸住宅[賃貸マンション・アパート]情報 物件詳細 | Transportation facilities 交通機関 | | Hankyu Arashiyama Line / UeKei walk 7 minutes Hankyu Arashiyama Line / Matsuo Taisha walk 14 minutes Hankyu Kyoto Line / Nishikyogoku walk 27 minutes 阪急嵐山線/上桂 歩7分 阪急嵐山線/松尾大社 歩14分 阪急京都線/西京極 歩27分
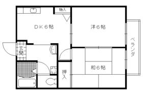
| Floor plan details 間取り詳細 | | Sum 6 Hiroshi 6 DK6 和6 洋6 DK6 | Construction 構造 | | Light-gauge steel 軽量鉄骨 | Story 階建 | | 1st floor / 2-story 1階/2階建 | Built years 築年月 | | February 1995 1995年2月 | Nonlife insurance 損保 | | 20,000 yen two years 2万円2年 | Parking lot 駐車場 | | On-site 5400 yen 敷地内5400円 | Move-in 入居 | | Immediately 即 | Trade aspect 取引態様 | | Mediation 仲介 | Conditions 条件 | | Two people Available / Children Allowed 二人入居可/子供可 | Property code 取り扱い店舗物件コード | | W85827-105 W85827-105 | Total units 総戸数 | | 10 units 10戸 | Area information 周辺情報 | | Drag Yutaka UeKei store (drugstore) to 500m Matsuo junior high school (junior high school) up to 500m Seven-Eleven Kyoto Hankyu UeKei Station store (convenience store) up to 600m Shokuirodorikan core Matsuo up to 550m Matsuo elementary school (elementary school) (super) 600m on Katsura Station to ドラッグユタカ 上桂店(ドラッグストア)まで500m松尾中学校(中学校)まで500mセブンイレブン京都阪急上桂駅前店(コンビニ)まで550m松尾小学校(小学校)まで600m食彩館コア松尾(スーパー)まで600m上桂駅(その他)まで560m |
Building appearance建物外観 
Living and room居室・リビング 




Kitchenキッチン 


Bathバス 
Toiletトイレ 
Receipt収納 
Washroom洗面所 
Supermarketスーパー  Shokuirodorikan core Matsuo 600m to (super)
食彩館コア松尾(スーパー)まで600m
Convenience storeコンビニ  Seven-Eleven Kyoto Hankyu UeKei Station store up to (convenience store) 550m
セブンイレブン京都阪急上桂駅前店(コンビニ)まで550m
Dorakkusutoaドラックストア  Drag Yutaka UeKei store up to (drugstore) 500m
ドラッグユタカ 上桂店(ドラッグストア)まで500m
Junior high school中学校  Matsuo 500m to junior high school (junior high school)
松尾中学校(中学校)まで500m
Primary school小学校  Matsuo 600m up to elementary school (elementary school)
松尾小学校(小学校)まで600m
Otherその他  560m to the upper Katsura Station (Other)
上桂駅(その他)まで560m
Location
|