Rentals » Kansai » Kyoto » Nishikyo Ku
 
| Railroad-station 沿線・駅 | | Hankyu Kyoto Line / Knight 阪急京都線/桂 | Address 住所 | | Kyoto, Kyoto Prefecture Nishikyo Ku Kawashimaarisugawa cho 京都府京都市西京区川島有栖川町 | Walk 徒歩 | | 6 minutes 6分 | Rent 賃料 | | 78,000 yen 7.8万円 | Management expenses 管理費・共益費 | | 5000 Yen 5000円 | Key money 礼金 | | 83,000 yen 8.3万円 | Security deposit 敷金 | | 83,000 yen 8.3万円 | Floor plan 間取り | | 2LDK 2LDK | Occupied area 専有面積 | | 54.24 sq m 54.24m2 | Direction 向き | | South 南 | Type 種別 | | Apartment アパート | Year Built 築年 | | Built 20 years 築20年 | | Amity Katsura アミティー桂 |
| Parking one free! 駐車場1台無料! |
| It is 2LDK garage free of 6-minute walk to Katsura Station! 桂駅まで徒歩6分の2LDKガレージ無料です! |
| Bus toilet by, balcony, Gas stove correspondence, Flooring, Washbasin with shower, Indoor laundry location, Yang per good, Facing south, Corner dwelling unit, Seperate, Two-burner stove, Bicycle-parking space, closet, Immediate Available, top floor, All room Western-style, Sorting, Two tenants consultation, 3 station more accessible, Within a 10-minute walk station, No upper floor, All room 6 tatami mats or more, City gas バストイレ別、バルコニー、ガスコンロ対応、フローリング、シャワー付洗面台、室内洗濯置、陽当り良好、南向き、角住戸、洗面所独立、2口コンロ、駐輪場、押入、即入居可、最上階、全居室洋室、振分、二人入居相談、3駅以上利用可、駅徒歩10分以内、上階無し、全居室6畳以上、都市ガス |
Property name 物件名 | | Rental housing of Kyoto, Kyoto Prefecture Nishikyo Ku Kawashimaarisugawa-cho, Katsura Station [Rental apartment ・ Apartment] information Property Details 京都府京都市西京区川島有栖川町 桂駅の賃貸住宅[賃貸マンション・アパート]情報 物件詳細 | Transportation facilities 交通機関 | | Hankyu Kyoto Line / Ayumi Katsura 6 minutes Hankyu Arashiyama Line / UeKei walk 22 minutes Hankyu Kyoto Line / Lok west entrance walk 20 minutes 阪急京都線/桂 歩6分 阪急嵐山線/上桂 歩22分 阪急京都線/洛西口 歩20分
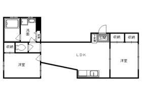
| Floor plan details 間取り詳細 | | Hiroshi 6 Hiroshi 6 LDK10 洋6 洋6 LDK10 | Construction 構造 | | Wooden 木造 | Story 階建 | | Second floor / 2-story 2階/2階建 | Built years 築年月 | | March 1995 1995年3月 | Nonlife insurance 損保 | | 21,000 yen two years 2.1万円2年 | Parking lot 駐車場 | | Free with 付無料 | Move-in 入居 | | Immediately 即 | Trade aspect 取引態様 | | Mediation 仲介 | Conditions 条件 | | Two people Available / Children Allowed 二人入居可/子供可 | Property code 取り扱い店舗物件コード | | W05535-2 W05535-2 | Total units 総戸数 | | 2 units 2戸 | Area information 周辺情報 | | F. F.MART 桂店(スーパー)まで200mファミリーマート阪急桂駅前店(コンビニ)まで270m川岡小学校(小学校)まで350m西京都病院(病院)まで1000m桂川中学校(中学校)まで1500m桂駅(その他)まで480m |
Building appearance建物外観 
Living and room居室・リビング 



Kitchenキッチン 



Bathバス 
Toiletトイレ 
Receipt収納 
Washroom洗面所 
Supermarketスーパー  F.
F.MART 桂店(スーパー)まで200m
Convenience storeコンビニ  FamilyMart Hankyu Katsura Station store up (convenience store) 270m
ファミリーマート阪急桂駅前店(コンビニ)まで270m
Junior high school中学校  Katsura 1500m until junior high school (junior high school)
桂川中学校(中学校)まで1500m
Primary school小学校  Kawaoka to elementary school (elementary school) 350m
川岡小学校(小学校)まで350m
Hospital病院  1000m to Xijing Metropolitan Hospital (Hospital)
西京都病院(病院)まで1000m
Otherその他  480m to Katsura Station (Other)
桂駅(その他)まで480m
Location
|