Rentals » Kansai » Kyoto » Nishikyo Ku


Next Life West
All houses facing south.
Dog, Cat possible consultation (cat only key money 50,000 yen UP)
Bus toilet by, balcony, Air conditioning, Gas stove correspondence, Flooring, auto lock, Indoor laundry location, Facing south, Add-fired function bathroom, Corner dwelling unit, Elevator, Seperate, Bicycle-parking space, closet, Optical fiber, Immediate Available, surveillance camera, Pets Negotiable, Two tenants consultation, Bike shelter, 3 station more accessibleese-style room, All room 6 tatami mats or more, propane gas, BS, High speed Internet correspondence
Railroad-station
Hankyu Kyoto Line / Knight
Address
Kyoto, Kyoto Prefecture Nishikyo Ku Oenakayama cho
Walk
19 minutes
Rent
65,000 yen
Key money
50,000 yen
Security deposit
50,000 yen
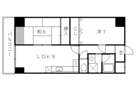
Floor plan
2LDK
Occupied area
55.08 sq m
Direction
South
Type
Mansion
Year Built
Built 21 years
Property name
Rental housing of Kyoto, Kyoto Prefecture Nishikyo Ku Oenakayama-cho, Katsura Station [Rental apartment ・ Apartment] information Property Details
Transportation facilities
Hankyu Kyoto Line / Ayumi Katsura 19 minutes
Hankyu Kyoto Line / Lok west entrance walk 18 minutes
JR Tokaido Line / Ayumi Katsura 28 minutes
Floor plan details
Sum 6 Hiroshi 7 LDK9
Construction
Steel rebar
Story
4th floor / 6-story
Built years
November 1993
Nonlife insurance
22,000 yen two years
Parking lot
Site 10000 yen
Move-in
Immediately
Trade aspect
Mediation
Conditions
Pets Negotiable
Property code
W04036-401
Total units
18 units
Area information
Bough up to elementary school (elementary school) up to 600m Cope et al stinking (super) up to 700m Rakusai New Town hospital (hospital) to 900m Rakusaiguchi Station (other) up to 1400m Katsura Station (other) up to 1500m Katsuragawa Station (other) 2200m


Building appearance

Building appearance

Living and room

Living and room
Living and room
Living and room
Living and room
Living and room
Living and room

Kitchen

Kitchen
Kitchen
Kitchen

Bath

Bath

Toilet

Toilet

Washroom

Washroom

Supermarket

Supermarket. 700m to Cope et al stinking (super)
700m to Cope et al stinking (super)

Primary school

Primary school. Bough 600m up to elementary school (elementary school)
Bough 600m up to elementary school (elementary school)

Hospital

Hospital. Rakusai New Town hospital (hospital) to 900m
Rakusai New Town hospital (hospital) to 900m

Other

Other. Rakusaiguchi Station to (other) 1400m
Rakusaiguchi Station to (other) 1400m

Other. 1500m to Katsura Station (Other)
1500m to Katsura Station (Other)

Other. 2200m until the Katsura River Station (Other)
2200m until the Katsura River Station (Other)



Location