Rentals » Kansai » Kyoto » Uji
 
| Railroad-station 沿線・駅 | | Keihan Uji Line / Kobata 京阪宇治線/木幡 | Address 住所 | | Kyoto Uji Kobata Nishiura 京都府宇治市木幡西浦 | Walk 徒歩 | | 5 minutes 5分 | Rent 賃料 | | 85,000 yen 8.5万円 | Key money 礼金 | | 85,000 yen 8.5万円 | Security deposit 敷金 | | 85,000 yen 8.5万円 | Floor plan 間取り | | 4LDK 4LDK | Occupied area 専有面積 | | 70.89 sq m 70.89m2 | Direction 向き | | West 西 | Type 種別 | | Mansion マンション | Year Built 築年 | | Built 20 years 築20年 | | Padeshion Uji Kobata パデシオン宇治木幡 |
| Treasures of Kobata ~ Padeshion ~ 木幡の至宝 ~ パデシオン ~ |
| Condominiums to rent ...! Leave a nice apartment life 分譲マンションが賃貸に…!ステキなマンションライフをどうぞ |
| Bus toilet by, balcony, Air conditioning, Gas stove correspondence, Flooring, Washbasin with shower, auto lock, Indoor laundry location, System kitchen, Elevator, Seperate, Bicycle-parking space, closet, Immediate Available, 3-neck over stove, 24-hour manned management, Sale rent, Two tenants consultation, 3 station more accessible, Within a 5-minute walk station, LDK12 tatami mats or moreese-style room, City gas, BS バストイレ別、バルコニー、エアコン、ガスコンロ対応、フローリング、シャワー付洗面台、オートロック、室内洗濯置、システムキッチン、エレベーター、洗面所独立、駐輪場、押入、即入居可、3口以上コンロ、24時間有人管理、分譲賃貸、二人入居相談、3駅以上利用可、駅徒歩5分以内、LDK12畳以上、和室、都市ガス、BS |
Property name 物件名 | | Rental housing of Kyoto Uji Kobata Nishiura kohata station [Rental apartment ・ Apartment] information Property Details 京都府宇治市木幡西浦 木幡駅の賃貸住宅[賃貸マンション・アパート]情報 物件詳細 | Transportation facilities 交通機関 | | Keihan Uji Line / Ayumi Kobata 5 minutes JR Nara Line / Ayumi Kobata 8 minutes JR Nara Line / Rokujizo walk 20 minutes 京阪宇治線/木幡 歩5分 JR奈良線/木幡 歩8分 JR奈良線/六地蔵 歩20分
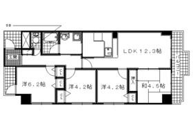
| Floor plan details 間取り詳細 | | Sum 4.5 Hiroshi 6.2 Hiroshi 4.2 Hiroshi 4.2 LDK12.3 和4.5 洋6.2 洋4.2 洋4.2 LDK12.3 | Construction 構造 | | Rebar Con 鉄筋コン | Story 階建 | | 3rd floor / 7-story 3階/7階建 | Built years 築年月 | | August 1994 1994年8月 | Nonlife insurance 損保 | | 20,000 yen two years 2万円2年 | Move-in 入居 | | Immediately 即 | Trade aspect 取引態様 | | Mediation 仲介 | Conditions 条件 | | Two people Available / Children Allowed 二人入居可/子供可 | Property code 取り扱い店舗物件コード | | K03397-301 K03397-301 | Total units 総戸数 | | 182 units 182戸 | Remarks 備考 | | Keihan Uji Line Rokujizo Station walk 22 minutes / Resident management / Parking nearby secure 9000 yen 京阪宇治線六地蔵駅徒歩22分/常駐管理/駐車場近隣確保9000円 | Area information 周辺情報 | | Seven-Eleven Uji Kobata store (convenience store) up to 675m drag Yutaka Uji Kobata Minamiten (drugstore) to 346m Fresco Kobata store (supermarket) to 363m of Kyoto Kobata Branch (Bank) up to 381m Uji Kobata post office (post office) to 394m FamilyMart Uji セブンイレブン宇治木幡店(コンビニ)まで675mドラッグユタカ 宇治木幡南店(ドラッグストア)まで346mフレスコ 木幡店(スーパー)まで363m京都銀行 木幡支店(銀行)まで381m宇治木幡郵便局(郵便局)まで394mファミリーマート宇治木幡店(コンビニ)まで662m |
Building appearance建物外観 
Living and room居室・リビング 
 12.3 is the Pledge of LDK.
12.3帖のLDKです。
 6.2 is the Pledge of Western-style.
6.2帖の洋室です。
 4.2 is the Pledge of Western-style.
4.2帖の洋室です。
Kitchenキッチン  System kitchen.
システムキッチンです。
 Counter kitchen.
カウンターキッチンです。
Bathバス  It is a bathroom spread.
広めの浴室です。
Toiletトイレ  It is a toilet with a clean.
清潔感のあるトイレです。
Receipt収納  It is the entrance of the housing.
玄関の収納です。
Washroom洗面所  Independence is a wash basin.
独立洗面台です。
Balconyバルコニー  Day is good balcony.
日当たり良好のバルコニーです。
Entrance玄関  A beautiful entrance.
きれいな玄関です。
Supermarketスーパー  Fresco Kobata store up to (super) 363m
フレスコ 木幡店(スーパー)まで363m
Convenience storeコンビニ  Seven-Eleven Uji Kobata store up (convenience store) 675m
セブンイレブン宇治木幡店(コンビニ)まで675m
 FamilyMart Uji Kobata store up (convenience store) 662m
ファミリーマート宇治木幡店(コンビニ)まで662m
Dorakkusutoaドラックストア  Drag Yutaka Uji Kobata Minamiten 346m to (drugstore)
ドラッグユタカ 宇治木幡南店(ドラッグストア)まで346m
Post office郵便局  Uji Kobata 394m to the post office (post office)
宇治木幡郵便局(郵便局)まで394m
Bank銀行  Bank of Kyoto Kobata 381m to the branch (Bank)
京都銀行 木幡支店(銀行)まで381m
Location
|