Rentals » Kansai » Kyoto » Uji
 
| Railroad-station 沿線・駅 | | Kintetsu Kyoto Line / Ogura 近鉄京都線/小倉 | Address 住所 | | Kyoto Uji Uji Hanjiro 京都府宇治市宇治半白 | Walk 徒歩 | | 11 minutes 11分 | Rent 賃料 | | 62,000 yen 6.2万円 | Management expenses 管理費・共益費 | | 3000 yen 3000円 | Security deposit 敷金 | | 50,000 yen 5万円 | Floor plan 間取り | | 2DK 2DK | Occupied area 専有面積 | | 41 sq m 41m2 | Direction 向き | | West 西 | Type 種別 | | Apartment アパート | Year Built 築年 | | Built 26 years 築26年 | | Taunyi Hanjiro タウニィ半白 |
| Nestled in a residential area ... 住宅街にたたずむ… |
| Close to commercial facilities there! In a quiet residential area ~ And Nbiri! 近隣に商業施設有り!閑静な住宅街での ~ んびりと! |
| Bus toilet by, balcony, Gas stove correspondence, Indoor laundry location, Seperate, Bicycle-parking space, closet, Immediate Available, Key money unnecessary, top floor, bay window, Two tenants consultation, 3 station more accessible, No upper floorese-style room, All room 6 tatami mats or more, City gas バストイレ別、バルコニー、ガスコンロ対応、室内洗濯置、洗面所独立、駐輪場、押入、即入居可、礼金不要、最上階、出窓、二人入居相談、3駅以上利用可、上階無し、和室、全居室6畳以上、都市ガス |
Property name 物件名 | | Rental housing of Kyoto Uji Uji Hanjiro Kokura Station [Rental apartment ・ Apartment] information Property Details 京都府宇治市宇治半白 小倉駅の賃貸住宅[賃貸マンション・アパート]情報 物件詳細 | Transportation facilities 交通機関 | | Kintetsu Kyoto Line / Ayumi Ogura 11 minutes JR Nara Line / JR Ayumi Kokura 13 minutes Keihan Uji Line / Uji walk 20 minutes 近鉄京都線/小倉 歩11分 JR奈良線/JR小倉 歩13分 京阪宇治線/宇治 歩20分
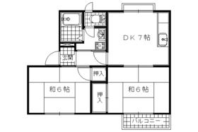
| Floor plan details 間取り詳細 | | Sum 6 sum 6 DK7 和6 和6 DK7 | Construction 構造 | | Light-gauge steel 軽量鉄骨 | Story 階建 | | Second floor / 2-story 2階/2階建 | Built years 築年月 | | August 1988 1988年8月 | Nonlife insurance 損保 | | 20,000 yen two years 2万円2年 | Parking lot 駐車場 | | On-site 7000 yen 敷地内7000円 | Move-in 入居 | | Immediately 即 | Trade aspect 取引態様 | | Mediation 仲介 | Conditions 条件 | | Two people Available / Children Allowed 二人入居可/子供可 | Property code 取り扱い店舗物件コード | | K25501-203 K25501-203 | Total units 総戸数 | | 8 units 8戸 | In addition ほか初期費用 | | A total of 100,000 yen (Breakdown: contract lump-sum 100,000 yen) 合計10万円(内訳:契約一時金10万円) | Area information 周辺情報 | | Sandy Kokura (super) up to 191m Seven-Eleven Uji Kokura Tenno store (convenience store) up to 211m Kokura post office 377m Uji River Hospital (hospital) to 399m Kyoto credit union west Uji branch until the (post office) to 314m jumbo Nakamura Ogura store (Super) ( サンディ 小倉店(スーパー)まで191mセブンイレブン宇治小倉天王店(コンビニ)まで211m小倉郵便局(郵便局)まで314mジャンボなかむら 小倉店(スーパー)まで377m宇治川病院(病院)まで399m京都信用金庫 西宇治支店(銀行)まで528m |
Building appearance建物外観 
Living and room居室・リビング 






Kitchenキッチン 

Bathバス 
Receipt収納 
Other Equipmentその他設備 
Supermarketスーパー  191m to Sandy Kokura (super)
サンディ 小倉店(スーパー)まで191m
 377m until jumbo Nakamura Kokura store (Super)
ジャンボなかむら 小倉店(スーパー)まで377m
Convenience storeコンビニ  Seven-Eleven Uji Kokura Tenno store up (convenience store) 211m
セブンイレブン宇治小倉天王店(コンビニ)まで211m
Hospital病院  Uji River 399m to the hospital (hospital)
宇治川病院(病院)まで399m
Post office郵便局  314m to Kokura post office (post office)
小倉郵便局(郵便局)まで314m
Bank銀行  528m to Kyoto credit union west Uji Branch (Bank)
京都信用金庫 西宇治支店(銀行)まで528m
Location
|