Rentals » Kansai » Kyoto » Uji
 
| Railroad-station 沿線・駅 | | Kintetsu Kyoto Line / Iseda 近鉄京都線/伊勢田 | Address 住所 | | Kyoto Uji Iseda-cho, hair language 京都府宇治市伊勢田町毛語 | Walk 徒歩 | | 5 minutes 5分 | Rent 賃料 | | 70,000 yen 7万円 | Management expenses 管理費・共益費 | | 4000 yen 4000円 | Key money 礼金 | | 70,000 yen 7万円 | Security deposit 敷金 | | 30,000 yen 3万円 | Floor plan 間取り | | 2LDK 2LDK | Occupied area 専有面積 | | 46 sq m 46m2 | Direction 向き | | South 南 | Type 種別 | | Apartment アパート | Year Built 築年 | | Built 20 years 築20年 | | Junes Domir ジュネスドミール |
| Newlyweds recommended properties! 新婚さんお勧め物件! |
| Each room has a window in daylight ・ Good ventilation! We recommend to honeymoon-like 1 room! 各部屋に窓があり採光・風通し良し!新婚様にオススメな1部屋! |
| Bus toilet by, balcony, Gas stove correspondence, Flooring, Indoor laundry location, Facing south, Seperate, Bicycle-parking space, closet, Optical fiber, Immediate Available, top floor, Two tenants consultation, 3 station more accessible, Within a 5-minute walk station, No upper floorese-style room, All room 6 tatami mats or more, City gas, BS, High speed Internet correspondence バストイレ別、バルコニー、ガスコンロ対応、フローリング、室内洗濯置、南向き、洗面所独立、駐輪場、押入、光ファイバー、即入居可、最上階、二人入居相談、3駅以上利用可、駅徒歩5分以内、上階無し、和室、全居室6畳以上、都市ガス、BS、高速ネット対応 |
Property name 物件名 | | Rental housing of Kyoto Uji Iseda cho, hair language Iseda Station [Rental apartment ・ Apartment] information Property Details 京都府宇治市伊勢田町毛語 伊勢田駅の賃貸住宅[賃貸マンション・アパート]情報 物件詳細 | Transportation facilities 交通機関 | | Kintetsu Kyoto Line / Ayumi Iseda 5 minutes Kintetsu Kyoto Line / Ayumi Okubo 10 minutes Kintetsu Kyoto Line / Ayumi Ogura 12 minutes 近鉄京都線/伊勢田 歩5分 近鉄京都線/大久保 歩10分 近鉄京都線/小倉 歩12分
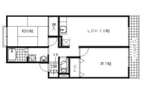
| Floor plan details 間取り詳細 | | Sum 6 Hiroshi 7 LDK10 和6 洋7 LDK10 | Construction 構造 | | Light-gauge steel 軽量鉄骨 | Story 階建 | | Second floor / 2-story 2階/2階建 | Built years 築年月 | | March 1995 1995年3月 | Nonlife insurance 損保 | | 20,000 yen two years 2万円2年 | Parking lot 駐車場 | | On-site 6,000 yen 敷地内6000円 | Move-in 入居 | | Immediately 即 | Trade aspect 取引態様 | | Mediation 仲介 | Conditions 条件 | | Two people Available / Children Allowed 二人入居可/子供可 | Property code 取り扱い店舗物件コード | | K25469-205 K25469-205 | Total units 総戸数 | | 8 units 8戸 | Remarks 備考 | | JR Nara Line JR Kokura Station walk 13 minutes JR奈良線JR小倉駅徒歩13分 | Area information 周辺情報 | | Jumbo Nakamura Iseda shop (super) up to 100m Uji Iseda post office (post office) to 138m Kyoto Chuo Shinkin Bank Nishiogura Branch (Bank) up to 241m FamilyMart Uji Iseda Kitayama store (convenience store) up to 269m Seven-Eleven Uji Ise Tanakayama store up (convenience store) ジャンボなかむら 伊勢田店(スーパー)まで100m宇治伊勢田郵便局(郵便局)まで138m京都中央信用金庫 西小倉支店(銀行)まで241mファミリーマート宇治伊勢田北山店(コンビニ)まで269mセブンイレブン宇治伊勢田中山店(コンビニ)まで384m業務スーパー 伊勢田店(スーパー)まで539m |
Building appearance建物外観 
Living and room居室・リビング 

Kitchenキッチン 
Bathバス 
Toiletトイレ 
Receipt収納 


Washroom洗面所 

Balconyバルコニー 
Entrance玄関 
Supermarketスーパー  100m until jumbo Nakamura Iseda store (Super)
ジャンボなかむら 伊勢田店(スーパー)まで100m
 539m to business super Iseda store (Super)
業務スーパー 伊勢田店(スーパー)まで539m
Convenience storeコンビニ  FamilyMart Uji Iseda Kitayama store up (convenience store) 269m
ファミリーマート宇治伊勢田北山店(コンビニ)まで269m
 Seven-Eleven Uji Ise Tanakayama store up (convenience store) 384m
セブンイレブン宇治伊勢田中山店(コンビニ)まで384m
Post office郵便局  Uji Iseda 138m to the post office (post office)
宇治伊勢田郵便局(郵便局)まで138m
Bank銀行  Kyoto Chuo Shinkin Bank Nishiogura 241m to the branch (Bank)
京都中央信用金庫 西小倉支店(銀行)まで241m
Location
|