1975March
50,000 yen, 2DK, Bungalow, 37.12 sq m
Rentals » Kansai » Kyoto » Uji
 
| Railroad-station 沿線・駅 | | Kintetsu Kyoto Line / Okubo 近鉄京都線/大久保 | Address 住所 | | Kyoto Uji Hirakimachi 京都府宇治市開町 | Walk 徒歩 | | 10 minutes 10分 | Rent 賃料 | | 50,000 yen 5万円 | Key money 礼金 | | 50,000 yen 5万円 | Floor plan 間取り | | 2DK 2DK | Occupied area 専有面積 | | 37.12 sq m 37.12m2 | Direction 向き | | East 東 | Type 種別 | | terrace ・ Townhouse テラス・タウンハウス | Year Built 築年 | | Built 40 years 築40年 | | Hirakimachi rental 開町貸家 |
| cheap! quiet! New air conditioning! 安い!静か!新品エアコン! |
| Rental housing will have out in a quiet open-cho. The rent in 2DK. Parking can be reserved in front of you eyes. This breadth also suitable even for the living alone to newlyweds. 閑静な開町に貸家が出ております。2DKでこの家賃。駐車場はすぐ目の前で確保できます。新婚さんにもお一人暮らしにも適した広さです。 |
| Bus toilet by, balcony, Gas stove correspondence, Bicycle-parking space, closet, Immediate Available, top floor, Deposit required, Two tenants consultation, 3 station more accessible, Within a 10-minute walk station, No upper floorese-style roomese-style room 8 tatami mats or more, propane gas バストイレ別、バルコニー、ガスコンロ対応、駐輪場、押入、即入居可、最上階、敷金不要、二人入居相談、3駅以上利用可、駅徒歩10分以内、上階無し、和室、和室8畳以上、プロパンガス |
Property name 物件名 | | Rental housing of Kyoto Uji Hirakimachi Okubo Station [Rental apartment ・ Apartment] information Property Details 京都府宇治市開町 大久保駅の賃貸住宅[賃貸マンション・アパート]情報 物件詳細 | Transportation facilities 交通機関 | | Kintetsu Kyoto Line / Ayumi Okubo 10 minutes Kintetsu Kyoto Line / Ayumi Iseda 6 minutes JR Nara Line / Ayumi Nitta 11 minutes 近鉄京都線/大久保 歩10分 近鉄京都線/伊勢田 歩6分 JR奈良線/新田 歩11分
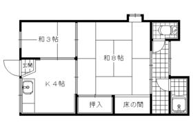
| Floor plan details 間取り詳細 | | Sum 8 sum 3 DK4 和8 和3 DK4 | Construction 構造 | | Wooden 木造 | Story 階建 | | Bungalow 平屋 | Built years 築年月 | | March 1975 1975年3月 | Nonlife insurance 損保 | | 20,000 yen two years 2万円2年 | Move-in 入居 | | Immediately 即 | Trade aspect 取引態様 | | Mediation 仲介 | Property code 取り扱い店舗物件コード | | K25253-Wx K25253-Wx | Total units 総戸数 | | 2 units 2戸 | Area information 周辺情報 | | Seven-Eleven Uji Hirakimachi store (convenience store) up to 110m of Kyoto Iseda Branch (Bank) up to 147m Nitta post office (post office) to 393m second Okamoto General Hospital (Hospital) to 587m Okubo Station (other) up to 800m Iseda Station (Other セブンイレブン宇治開町店(コンビニ)まで110m京都銀行 伊勢田支店(銀行)まで147m新田郵便局(郵便局)まで393m第二岡本総合病院(病院)まで587m大久保駅(その他)まで800m伊勢田駅(その他)まで459m |
Building appearance建物外観 
Living and room居室・リビング 
 Spacious Japanese-style.
広々とした和室です。
 Dining kitchen.
ダイニングキッチンです。
 Dining kitchen.
ダイニングキッチンです。
 Is a Japanese-style room.
和室です。
 Spacious Japanese-style.
広々とした和室です。
Kitchenキッチン  Kitchen.
キッチンです。
 This kitchen storage.
キッチン収納です。
Bathバス  It is the bath.
お風呂です。
Toiletトイレ  Toilet.
トイレです。
Receipt収納  It is a large storage.
大きな収納です。
Entrance玄関  Entrance is the scenery.
玄関風景です。
Convenience storeコンビニ  110m to Seven-Eleven Uji Hirakimachi store (convenience store)
セブンイレブン宇治開町店(コンビニ)まで110m
Hospital病院  Second Okamoto 587m to the General Hospital (Hospital)
第二岡本総合病院(病院)まで587m
Post office郵便局  393m until Nitta post office (post office)
新田郵便局(郵便局)まで393m
Bank銀行  Bank of Kyoto Iseda 147m to the branch (Bank)
京都銀行 伊勢田支店(銀行)まで147m
Otherその他  800m to Okubo Station (Other)
大久保駅(その他)まで800m
 459m until Iseda Station (Other)
伊勢田駅(その他)まで459m
Location
|