1994June
42,000 yen, 1DK, 1st floor / 2-story, 21.34 sq m
Rentals » Kansai » Kyoto » Uji
 
| Railroad-station 沿線・駅 | | Kintetsu Kyoto Line / Okubo 近鉄京都線/大久保 | Address 住所 | | Kyoto Uji Hirono-cho Higashiura 京都府宇治市広野町東裏 | Walk 徒歩 | | 5 minutes 5分 | Rent 賃料 | | 42,000 yen 4.2万円 | Management expenses 管理費・共益費 | | 3000 yen 3000円 | Floor plan 間取り | | 1DK 1DK | Occupied area 専有面積 | | 21.34 sq m 21.34m2 | Direction 向き | | South 南 | Type 種別 | | Mansion マンション | Year Built 築年 | | Built 20 years 築20年 | | Fuji Mansion フジマンション |
| That's convenient near station ・ 駅近くて便利だね・ |
| Favorable conditions, Good location! 好条件、好立地! |
| balcony, Facing south, Bicycle-parking space, closet, Immediate Available, Key money unnecessary, Deposit required, Electric stove, 3 station more accessible, Within a 5-minute walk stationese-style room, All room 6 tatami mats or more, propane gas バルコニー、南向き、駐輪場、押入、即入居可、礼金不要、敷金不要、電気コンロ、3駅以上利用可、駅徒歩5分以内、和室、全居室6畳以上、プロパンガス |
Property name 物件名 | | Rental housing of Kyoto Uji Hirono-cho Higashiura Okubo Station [Rental apartment ・ Apartment] information Property Details 京都府宇治市広野町東裏 大久保駅の賃貸住宅[賃貸マンション・アパート]情報 物件詳細 | Transportation facilities 交通機関 | | Kintetsu Kyoto Line / Ayumi Okubo 5 minutes JR Nara Line / Ayumi Nitta 2 minutes Kintetsu Kyoto Line / Ayumi Iseda 10 minutes 近鉄京都線/大久保 歩5分 JR奈良線/新田 歩2分 近鉄京都線/伊勢田 歩10分
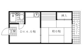
| Floor plan details 間取り詳細 | | Sum 6 DK4.5 和6 DK4.5 | Construction 構造 | | Light-gauge steel 軽量鉄骨 | Story 階建 | | 1st floor / 2-story 1階/2階建 | Built years 築年月 | | June 1994 1994年6月 | Nonlife insurance 損保 | | 22,000 yen two years 2.2万円2年 | Move-in 入居 | | Immediately 即 | Trade aspect 取引態様 | | Mediation 仲介 | Property code 取り扱い店舗物件コード | | K26134-103 K26134-103 | Total units 総戸数 | | 8 units 8戸 | Other expenses ほか諸費用 | | Water bill 2160 yen 水道代2160円 | Remarks 備考 | | Kintetsu Kyoto Senhisa TSUGAWA Station walk 13 minutes / Patrol management / Parking close to securing 5,000 yen 近鉄京都線久津川駅徒歩13分/巡回管理/駐車場近隣確保5000円 | Area information 周辺情報 | | Heiwado 100BAN store (super) 250m Harvesting Okubo shop (super) up to 460m Konan PRO Uji Okubo store (hardware store) to 500m Seven-Eleven Uji Hirono Machiten (convenience store) up to 201m Nitta post office (post office) to 231m Shiga Bank Uji branch to 平和堂 100BAN店(スーパー)まで250mハーベス 大久保店(スーパー)まで460mコーナンPRO 宇治大久保店(ホームセンター)まで500mセブンイレブン宇治広野町店(コンビニ)まで201m新田郵便局(郵便局)まで231m滋賀銀行 宇治支店(銀行)まで314m |
Building appearance建物外観 
Living and room居室・リビング 
 Spacious room.
広々とした部屋です。
 Spacious room.
広々とした部屋です。
 Spacious dining kitchen.
広々としたダイニングキッチンです。
Kitchenキッチン  IH is a stove with a kitchen.
IHコンロ付きのキッチンです。
 The whole kitchen.
キッチン全体です。
 This kitchen storage.
キッチン収納です。
 IH is a stove.
IHコンロです。
Bathバス  It is the bath.
お風呂です。
 Since the unit bus is easy toilet cleaning.
ユニットバスなのでトイレ掃除が楽です。
Toiletトイレ  Toilet.
トイレです。
Entrance玄関  Entrance is the scenery.
玄関風景です。
Supermarketスーパー  250m until Heiwado 100BAN store (Super)
平和堂 100BAN店(スーパー)まで250m
 460m until harvesting Okubo store (Super)
ハーベス 大久保店(スーパー)まで460m
Convenience storeコンビニ  Seven-Eleven Uji Hirono Machiten up (convenience store) 201m
セブンイレブン宇治広野町店(コンビニ)まで201m
Home centerホームセンター  Konan PRO Uji Okubo store up (home improvement) 500m
コーナンPRO 宇治大久保店(ホームセンター)まで500m
Post office郵便局  231m until Nitta post office (post office)
新田郵便局(郵便局)まで231m
Bank銀行  Shiga Bank Uji 314m to the branch (Bank)
滋賀銀行 宇治支店(銀行)まで314m
Location
|