|
Railroad-station 沿線・駅 | | Kintetsu Kyoto Line / Iseda 近鉄京都線/伊勢田 |
Address 住所 | | Kyoto Uji Hirakimachi 京都府宇治市開町 |
Walk 徒歩 | | 3 minutes 3分 |
Rent 賃料 | | 55,000 yen 5.5万円 |
Key money 礼金 | | ¥ 100,000 10万円 |
Security deposit 敷金 | | 30,000 yen 3万円 |
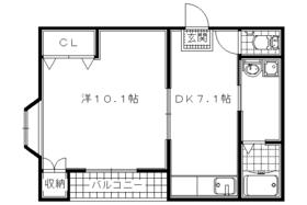
Floor plan 間取り | | 1DK 1DK |
Occupied area 専有面積 | | 47.25 sq m 47.25m2 |
Direction 向き | | West 西 |
Type 種別 | | Apartment アパート |
Year Built 築年 | | Built 29 years 築29年 |
|
Lumiere Plaza Iseda
ルミエールプラザ伊勢田
|
|
Look at the distance to the station.
駅までの距離見て下さい。
|
|
It is after a long time of appearance. Close to supermarkets and Combi, Aligns anything so eateries!
久しぶりの登場です。 近隣にはスーパーやコンビに、飲食店等々なんでも揃いますよ!
|
|
Bus toilet by, balcony, Air conditioning, Gas stove correspondence, auto lock, Indoor laundry location, Bicycle-parking space, closet, Optical fiber, Immediate Available, top floor, All room Western-style, Bike shelter, 3 station more accessible, Within a 5-minute walk station, No upper floor, Our managed properties, 8 tatami greater than or equal to a total room, City gas, High speed Internet correspondence
バストイレ別、バルコニー、エアコン、ガスコンロ対応、オートロック、室内洗濯置、駐輪場、押入、光ファイバー、即入居可、最上階、全居室洋室、バイク置場、3駅以上利用可、駅徒歩5分以内、上階無し、当社管理物件、全居室8畳以上、都市ガス、高速ネット対応
|
Property name 物件名 | | Rental housing of Kyoto Uji Hirakimachi Iseda Station [Rental apartment ・ Apartment] information Property Details 京都府宇治市開町 伊勢田駅の賃貸住宅[賃貸マンション・アパート]情報 物件詳細 |
Transportation facilities 交通機関 | | Kintetsu Kyoto Line / Ayumi Iseda 3 minutes JR Nara Line / Ayumi Nitta 13 minutes Kintetsu Kyoto Line / Ayumi Okubo 13 minutes 近鉄京都線/伊勢田 歩3分 JR奈良線/新田 歩13分 近鉄京都線/大久保 歩13分
|
Floor plan details 間取り詳細 | | Hiroshi 10 DK7.1 洋10 DK7.1 |
Construction 構造 | | Steel frame 鉄骨 |
Story 階建 | | Second floor / 2-story 2階/2階建 |
Built years 築年月 | | April 1986 1986年4月 |
Nonlife insurance 損保 | | 15,000 yen two years 1.5万円2年 |
Move-in 入居 | | Immediately 即 |
Trade aspect 取引態様 | | Mediation 仲介 |
Property code 取り扱い店舗物件コード | | K25352-3 K25352-3 |
Total units 総戸数 | | 12 units 12戸 |
Other expenses ほか諸費用 | | Water bill 2000 yen 水道代2000円 |
Remarks 備考 | | Kintetsu Kyoto Line Kokura Station walk 22 minutes 近鉄京都線小倉駅徒歩22分 |
Area information 周辺情報 | | Iseda Station 116m to (other) up to 192m Okubo Station (other) up to 1000m Nitta Station (other) up to 1000m Kokura Station (other) up to 1700m Seven-Eleven Uji Hirakimachi store (convenience store) up to 12m of Kyoto Iseda Branch (Bank) 伊勢田駅(その他)まで192m大久保駅(その他)まで1000m新田駅(その他)まで1000m小倉駅(その他)まで1700mセブンイレブン 宇治開町店(コンビニ)まで12m京都銀行 伊勢田支店(銀行)まで116m |