Rentals » Kansai » Kyoto » Uji
 
| Railroad-station 沿線・駅 | | Kintetsu Kyoto Line / Okubo 近鉄京都線/大久保 | Address 住所 | | Kyoto Uji Okubo Machiminaminoguchi 京都府宇治市大久保町南ノ口 | Walk 徒歩 | | 10 minutes 10分 | Rent 賃料 | | 41,000 yen 4.1万円 | Management expenses 管理費・共益費 | | 6000 yen 6000円 | Security deposit 敷金 | | 60,000 yen 6万円 | Floor plan 間取り | | 1K 1K | Occupied area 専有面積 | | 18 sq m 18m2 | Direction 向き | | West 西 | Type 種別 | | Mansion マンション | Year Built 築年 | | Built 22 years 築22年 | | Korin'norudo コリンノルド |
| Mansion, such as hotels ホテルのようなマンション |
| Please rest assured SATY of large supermarket is a 4-minute walk. 大型スーパーのSATYが徒歩4分であるのでご安心下さい。 |
| balcony, Air conditioning, Flooring, auto lock, Indoor laundry location, Elevator, Bicycle-parking space, closet, Immediate Available, Key money unnecessary, Electric stove, All room Western-style, Launderette, 3 station more accessible, Within a 10-minute walk station, All room 6 tatami mats or more, City gas, BS バルコニー、エアコン、フローリング、オートロック、室内洗濯置、エレベーター、駐輪場、押入、即入居可、礼金不要、電気コンロ、全居室洋室、コインランドリー、3駅以上利用可、駅徒歩10分以内、全居室6畳以上、都市ガス、BS |
Property name 物件名 | | Rental housing of Kyoto Uji Okubo Machiminaminoguchi Okubo Station [Rental apartment ・ Apartment] information Property Details 京都府宇治市大久保町南ノ口 大久保駅の賃貸住宅[賃貸マンション・アパート]情報 物件詳細 | Transportation facilities 交通機関 | | Kintetsu Kyoto Line / Ayumi Okubo 10 minutes JR Nara Line / Ayumi Nitta 13 minutes Kintetsu Kyoto Line / Ayumi Iseda 17 minutes 近鉄京都線/大久保 歩10分 JR奈良線/新田 歩13分 近鉄京都線/伊勢田 歩17分
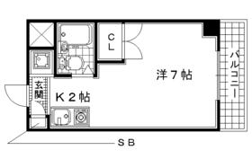
| Floor plan details 間取り詳細 | | Hiroshi 7 K2 洋7 K2 | Construction 構造 | | Rebar Con 鉄筋コン | Story 階建 | | 3rd floor / 5-story 3階/5階建 | Built years 築年月 | | March 1993 1993年3月 | Nonlife insurance 損保 | | 19,500 yen per year 1.95万円1年 | Parking lot 駐車場 | | On-site 5400 yen 敷地内5400円 | Move-in 入居 | | Immediately 即 | Trade aspect 取引態様 | | Mediation 仲介 | Property code 取り扱い店舗物件コード | | K03617-C25 K03617-C25 | Total units 総戸数 | | 136 units 136戸 | Other expenses ほか諸費用 | | Water bill 2381 yen 水道代2381円 | Remarks 備考 | | Kintetsu Kyoto Line Terada Station 18 mins / Patrol management 近鉄京都線寺田駅徒歩18分/巡回管理 | Area information 周辺情報 | | 643m Kyoto credit union to Uji Okubo post office 419m Dax Nishiokubo store up to 200m ion Okubo shop (super) to (post office) (drugstore) to 551m Seven-Eleven Uji Okubo Danmuku store (convenience store) up to 572m Izumiya Okubo store (Super) 宇治大久保郵便局(郵便局)まで200mイオン 大久保店(スーパー)まで419mダックス 西大久保店(ドラッグストア)まで551mセブンイレブン宇治大久保旦椋店(コンビニ)まで572mイズミヤ 大久保店(スーパー)まで643m京都信用金庫 城陽支店(銀行)まで672m |
Building appearance建物外観 
Living and room居室・リビング 
 Since the frontage is wide you feel the room is wide.
間口が広いので部屋が広く感じます。
 Spacious room.
広々とした部屋です。
Kitchenキッチン  Kitchen.
キッチンです。
 This kitchen storage.
キッチン収納です。
 This kitchen storage.
キッチン収納です。
Bathバス  Since the unit bus is easy toilet cleaning.
ユニットバスなのでトイレ掃除が楽です。
Toiletトイレ  Since the unit bus is easy toilet cleaning.
ユニットバスなのでトイレ掃除が楽です。
Receipt収納  It is a large storage.
大きな収納です。
Other Equipmentその他設備  Shoes is a box.
シューズボックスです。
Entrance玄関  It is entrance.
玄関です。
Supermarketスーパー  419m until ion Okubo store (Super)
イオン 大久保店(スーパー)まで419m
 643m to Izumiya Okubo store (Super)
イズミヤ 大久保店(スーパー)まで643m
Convenience storeコンビニ  Seven-Eleven Uji Okubo Danmuku store up (convenience store) 572m
セブンイレブン宇治大久保旦椋店(コンビニ)まで572m
Dorakkusutoaドラックストア  Dax Nishiokubo shop 551m until (drugstore)
ダックス 西大久保店(ドラッグストア)まで551m
Post office郵便局  Uji Okubo 200m to the post office (post office)
宇治大久保郵便局(郵便局)まで200m
Bank銀行  672m to Kyoto Shinkin Bank Chengyang branch (Bank)
京都信用金庫 城陽支店(銀行)まで672m
Otherその他  It is the space to put the washing machine.
洗濯機を置くスペースです。
Location
|