Rentals » Kansai » Kyoto » Uji
 
| Railroad-station 沿線・駅 | | JR Nara Line / Obaku JR奈良線/黄檗 | Address 住所 | | Kyoto Uji Gokasho plains 京都府宇治市五ケ庄平野 | Walk 徒歩 | | 8 minutes 8分 | Rent 賃料 | | 85,000 yen 8.5万円 | Key money 礼金 | | 170,000 yen 17万円 | Security deposit 敷金 | | 170,000 yen 17万円 | Floor plan 間取り | | 3LDK 3LDK | Occupied area 専有面積 | | 64.5 sq m 64.5m2 | Direction 向き | | South 南 | Type 種別 | | Mansion マンション | Year Built 築年 | | Built 24 years 築24年 | | Uji Obaku Park Homes 宇治黄檗パークホームズ |
| Condominium of Obaku! 黄檗の分譲マンション! |
| JR and Keihan of 2WAY accessible. Kyoto Uji campus near the condominium is recruited in rent. JR Ōbaku Station also Keihan Ōbaku Station is also within a 10-minute walk of both the station. There is also a supermarket next to the apartment, Arupuraza Uji east also rotation ... JRと京阪の2WAYアクセス可能。京大宇治キャンパス近くの分譲マンションが賃貸で募集です。JR黄檗駅も京阪黄檗駅も両駅とも徒歩10分圏内。マンションの横にはスーパーも有り、アルプラザ宇治東も自転... |
| Bus toilet by, balcony, Gas stove correspondence, Flooring, auto lock, Indoor laundry location, System kitchen, Facing south, Elevator, Seperate, Bicycle-parking space, closet, Optical fiber, Immediate Available, top floor, 3-neck over stove, 24-hour manned management, Sale rent, Sorting, Two tenants consultation, Deposit 2 months, 3 station more accessible, Within a 10-minute walk station, No upper floorese-style room, City gas, Key money two months バストイレ別、バルコニー、ガスコンロ対応、フローリング、オートロック、室内洗濯置、システムキッチン、南向き、エレベーター、洗面所独立、駐輪場、押入、光ファイバー、即入居可、最上階、3口以上コンロ、24時間有人管理、分譲賃貸、振分、二人入居相談、敷金2ヶ月、3駅以上利用可、駅徒歩10分以内、上階無し、和室、都市ガス、礼金2ヶ月 |
Property name 物件名 | | Rental housing of Kyoto Uji Gokasho plain Ōbaku Station [Rental apartment ・ Apartment] information Property Details 京都府宇治市五ケ庄平野 黄檗駅の賃貸住宅[賃貸マンション・アパート]情報 物件詳細 | Transportation facilities 交通機関 | | JR Nara Line / Obaku step 8 minutes Keihan Uji Line / Obaku step 10 minutes Keihan Uji Line / Three Muroto walk 18 minutes JR奈良線/黄檗 歩8分 京阪宇治線/黄檗 歩10分 京阪宇治線/三室戸 歩18分
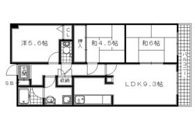
| Floor plan details 間取り詳細 | | Sum 6 sum 4.5 Hiroshi 5.6 LDK11 和6 和4.5 洋5.6 LDK11 | Construction 構造 | | Rebar Con 鉄筋コン | Story 階建 | | 7th floor / 7-story 7階/7階建 | Built years 築年月 | | March 1991 1991年3月 | Nonlife insurance 損保 | | 28,000 yen two years 2.8万円2年 | Move-in 入居 | | Immediately 即 | Trade aspect 取引態様 | | Mediation 仲介 | Conditions 条件 | | Two people Available / Children Allowed 二人入居可/子供可 | Property code 取り扱い店舗物件コード | | K12708-715 K12708-715 | Total units 総戸数 | | 208 units 208戸 | Remarks 備考 | | Resident management 常駐管理 | Area information 周辺情報 | | Lawson Uji Gokasho store (convenience store) 245m East Uji junior high school (junior high school) up to 368m Uji GokeSho post office 689m Kyoto Bunkyo short-term to up to (post office) up to 569m south elementary school (elementary school) 638m Kyoto Chuo Shinkin Bank Obaku Branch (Bank) to ・ 1791m up to junior college) ローソン宇治五ケ庄店(コンビニ)まで245m東宇治中学校(中学校)まで368m宇治五ヶ庄郵便局(郵便局)まで569m南部小学校(小学校)まで638m京都中央信用金庫 黄檗支店(銀行)まで689m京都文教短期大学(大学・短大)まで1791m |
Building appearance建物外観 

 This appearance.
外観です。
 This appearance.
外観です。
 This appearance.
外観です。
Securityセキュリティ  Auto is a lock.
オートロックです。
Entranceエントランス  Entrance is.
エントランスです。
Other common areasその他共有部分  It is the entrance.
入り口です。
 Is a bicycle parking lot.
駐輪場です。
 It is a collection Post.
集合ポストです。
Convenience storeコンビニ  245m until Lawson Uji Gokasho store (convenience store)
ローソン宇治五ケ庄店(コンビニ)まで245m
Junior high school中学校  368m to the east, Uji junior high school (junior high school)
東宇治中学校(中学校)まで368m
Primary school小学校  638m to the south elementary school (elementary school)
南部小学校(小学校)まで638m
Post office郵便局  Uji GokeSho 569m to the post office (post office)
宇治五ヶ庄郵便局(郵便局)まで569m
Bank銀行  Kyoto Chuo Shinkin Bank Obaku 689m to the branch (Bank)
京都中央信用金庫 黄檗支店(銀行)まで689m
Otherその他  Is Elevator.
エレベーターです。
 Garbage is a dump.
ゴミ捨て場です。
University ・ Junior college大学・短大  Kyoto Bunkyo Junior College (University of ・ 1791m up to junior college)
京都文教短期大学(大学・短大)まで1791m
Location
|