Rentals » Kansai » Kyoto » Ukyo-ku
 
| Railroad-station 沿線・駅 | | Hankyu Kyoto Line / Nishikyogoku 阪急京都線/西京極 | Address 住所 | | Kyoto, Kyoto Prefecture Ukyo-ku, Nishikyogokuhigashikoromode cho 京都府京都市右京区西京極東衣手町 | Walk 徒歩 | | 13 minutes 13分 | Rent 賃料 | | 30,000 yen 3万円 | Key money 礼金 | | 60,000 yen 6万円 | Floor plan 間取り | | 1K 1K | Occupied area 専有面積 | | 18.97 sq m 18.97m2 | Direction 向き | | South 南 | Type 種別 | | Apartment アパート | Year Built 築年 | | Built 27 years 築27年 | | Nishikyogoku Royal Heights 西京極ロイアルハイツ |
| No renewal fee! 更新料なし! |
| You can enjoy the kitchen is widely cuisine. キッチンが広く料理をお楽しみいただけます。 |
| balcony, Air conditioning, Gas stove correspondence, Yang per good, Facing south, Corner dwelling unit, Bicycle-parking space, closet, Immediate Available, Deposit required, 3 station more accessibleese-style room, All room 6 tatami mats or more, City gas バルコニー、エアコン、ガスコンロ対応、陽当り良好、南向き、角住戸、駐輪場、押入、即入居可、敷金不要、3駅以上利用可、和室、全居室6畳以上、都市ガス |
Property name 物件名 | | Rental housing of Kyoto, Kyoto Prefecture Ukyo-ku, Nishikyogokuhigashikoromode-cho, Nishi-Kyōgoku Station [Rental apartment ・ Apartment] information Property Details 京都府京都市右京区西京極東衣手町 西京極駅の賃貸住宅[賃貸マンション・アパート]情報 物件詳細 | Transportation facilities 交通機関 | | Hankyu Kyoto Line / Nishikyogoku walk 13 minutes Hankyu Kyoto Line / Saiin walk 30 minutes Subway Tozai Line / Uzumasa tenjingawa step 25 minutes 阪急京都線/西京極 歩13分 阪急京都線/西院 歩30分 地下鉄東西線/太秦天神川 歩25分
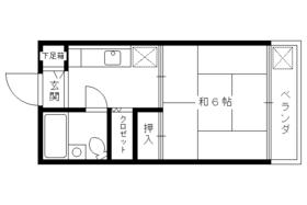
| Floor plan details 間取り詳細 | | Sum 6 K2 和6 K2 | Construction 構造 | | Wooden 木造 | Story 階建 | | 1st floor / 2-story 1階/2階建 | Built years 築年月 | | April 1988 1988年4月 | Nonlife insurance 損保 | | 20,100 yen two years 2.01万円2年 | Move-in 入居 | | Immediately 即 | Trade aspect 取引態様 | | Mediation 仲介 | Property code 取り扱い店舗物件コード | | W14721-15 W14721-15 | Total units 総戸数 | | 10 units 10戸 | Remarks 備考 | | Keifuku Railway Arashiyamahonsen storm electricity Tenjingawa Station walk 22 minutes 京福電鉄嵐山本線嵐電天神川駅徒歩22分 | Area information 周辺情報 | | 1500m Kyoto Koka Women's University (University to Kyoto family (Other) ・ Junior college) to 928m Kyoto University of Foreign Studies (University of ・ Junior college) until 1324m Kyoto Koka Women's University Junior College (University of ・ Junior college) to 928m Kyoto Junior College of Foreign Languages (University ・ Junior college) until 1324m Nishi-Kyōgoku Station to (other) 1040m 京都ファミリー(その他)まで1500m京都光華女子大学(大学・短大)まで928m京都外国語大学(大学・短大)まで1324m京都光華女子大学短期大学部(大学・短大)まで928m京都外国語短期大学(大学・短大)まで1324m西京極駅(その他)まで1040m |
Building appearance建物外観 



Living and room居室・リビング 

Kitchenキッチン 
Bathバス 
Other room spaceその他部屋・スペース 
Balconyバルコニー 
Other common areasその他共有部分 

University ・ Junior college大学・短大  Kyoto Koka Women's University (University of ・ 928m up to junior college)
京都光華女子大学(大学・短大)まで928m
 Kyoto University of Foreign Studies (University of ・ 1324m up to junior college)
京都外国語大学(大学・短大)まで1324m
 Kyoto Junior College of Foreign Languages (University of ・ 1324m up to junior college)
京都外国語短期大学(大学・短大)まで1324m
Otherその他  1500m to Kyoto family (Other)
京都ファミリー(その他)まで1500m
 1040m to Nishi-Kyōgoku Station (Other)
西京極駅(その他)まで1040m
Location
|