Rentals » Kansai » Kyoto » Ukyo-ku
 
| Railroad-station 沿線・駅 | | Subway Tozai Line / Uzumasa tenjingawa 地下鉄東西線/太秦天神川 | Address 住所 | | Kyoto, Kyoto Prefecture Ukyo-ku, Yamanouchinakahata cho 京都府京都市右京区山ノ内中畑町 | Walk 徒歩 | | 9 minutes 9分 | Rent 賃料 | | 45,000 yen 4.5万円 | Management expenses 管理費・共益費 | | 3000 yen 3000円 | Depreciation and amortization 敷引・償却金 | | 50,000 yen 5万円 | Deposit 保証金 | | 50,000 yen 5万円 | Floor plan 間取り | | 1K 1K | Occupied area 専有面積 | | 21.18 sq m 21.18m2 | Direction 向き | | South 南 | Type 種別 | | Apartment アパート | Year Built 築年 | | Built 20 years 築20年 | | Heights Prestige ハイツプレステージ |
| Garage 10.000 yen ガレージ10.000円 |
| Rent Heights Yamanouchi Kyoto Ukyo-ku,. Keifuku Arashiyamasen a 2-minute walk. 京都市右京区山ノ内の賃貸ハイツ。京福嵐山線徒歩2分。 |
| Bus toilet by, balcony, Air conditioning, Gas stove correspondence, Flooring, Indoor laundry location, Facing south, Optical fiber, Immediate Available, Key money unnecessary, Deposit required, All room Western-style, Bike shelter, CS, 3 station more accessible, Within a 10-minute walk station, All room 6 tatami mats or more, City gas, BS, High speed Internet correspondence バストイレ別、バルコニー、エアコン、ガスコンロ対応、フローリング、室内洗濯置、南向き、光ファイバー、即入居可、礼金不要、敷金不要、全居室洋室、バイク置場、CS、3駅以上利用可、駅徒歩10分以内、全居室6畳以上、都市ガス、BS、高速ネット対応 |
Property name 物件名 | | Rental housing of Kyoto, Kyoto Prefecture Ukyo-ku, Yamanouchinakahata cho Uzumasa Tenjingawa Station [Rental apartment ・ Apartment] information Property Details 京都府京都市右京区山ノ内中畑町 太秦天神川駅の賃貸住宅[賃貸マンション・アパート]情報 物件詳細 | Transportation facilities 交通機関 | | Subway Tozai Line / Uzumasa tenjingawa step 9 minutes Hankyu Kyoto Line / Saiin walk 13 minutes JR San-in Main Line / Article walk 23 minutes 地下鉄東西線/太秦天神川 歩9分 阪急京都線/西院 歩13分 JR山陰本線/二条 歩23分
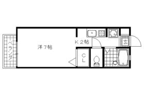
| Floor plan details 間取り詳細 | | Hiroshi 7 K2 洋7 K2 | Construction 構造 | | Steel frame 鉄骨 | Story 階建 | | 1st floor / 2-story 1階/2階建 | Built years 築年月 | | March 1995 1995年3月 | Nonlife insurance 損保 | | 20,000 yen two years 2万円2年 | Parking lot 駐車場 | | Site 10000 yen 敷地内10000円 | Move-in 入居 | | Immediately 即 | Trade aspect 取引態様 | | Mediation 仲介 | Property code 取り扱い店舗物件コード | | K07191-102 K07191-102 | Total units 総戸数 | | 16 houses 16戸 | Remarks 備考 | | Hankyu Kyoto Line Nishi-Kyōgoku Station walk 20 minutes / Patrol management 阪急京都線西京極駅徒歩20分/巡回管理 | Area information 周辺情報 | | 110m friend Mart to Kyoto Yamanouchi post office (post office) Kadono Yamanouchi shop 962m until the (super) up to 216m FamilyMart Oike Yamanouchi store (convenience store) up to 399m Kyoto Chuo Shinkin Bank Saiin branch until 375m Bank of Kyoto Nishiyonjo Branch (Bank) (Bank) up to 818m Kyoto Min - iren Institure Central Hospital (Hospital) 京都山ノ内郵便局(郵便局)まで110mフレンドマート 葛野山ノ内店(スーパー)まで216mファミリーマート御池山ノ内店(コンビニ)まで375m京都銀行 西四条支店(銀行)まで399m京都中央信用金庫 西院支店(銀行)まで818m京都民医連中央病院(病院)まで962m |
Building appearance建物外観 
Living and room居室・リビング 


Kitchenキッチン 

Bathバス 
Toiletトイレ 
Receipt収納 
Other Equipmentその他設備 


Entrance玄関 
Supermarketスーパー  Friends Mart Kadono Yamanouchi store up to (super) 216m
フレンドマート 葛野山ノ内店(スーパー)まで216m
Convenience storeコンビニ  FamilyMart Oike Yamanouchi store up (convenience store) 375m
ファミリーマート御池山ノ内店(コンビニ)まで375m
Hospital病院  962m to Kyoto Min - iren Institure Central Hospital (Hospital)
京都民医連中央病院(病院)まで962m
Post office郵便局  110m to Kyoto Yamanouchi post office (post office)
京都山ノ内郵便局(郵便局)まで110m
Bank銀行  Bank of Kyoto Nishiyonjo 399m to the branch (Bank)
京都銀行 西四条支店(銀行)まで399m
 Kyoto Chuo Shinkin Bank Saiin 818m to the branch (Bank)
京都中央信用金庫 西院支店(銀行)まで818m
Location
|