Rentals » Kansai » Kyoto » Yamashina-ku


Leo Palace Kawada
Leo Palace Series. Brokerage fees!
Bus toilet by, balcony, Air conditioning, Corner dwelling unit, Bicycle-parking space, closet, Immediate Available, top floor, Deposit required, Electric stove, loft, All room Western-style, Two tenants consultation, CS, Washing machine, Net use fee unnecessary, microwave, bed, 3 station more accessible, No upper floor, Southeast direction, All room 6 tatami mats or more, propane gas, Key money one month
Railroad-station
Subway Tozai Line / Higashino
Address
Kyoto-shi, Kyoto Yamashina-ku Kawatanishiura cho
Walk
20 min
Rent
36,000 yen
Management expenses
4500 yen
Key money
36,000 yen
Floor plan
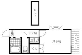
1K
Occupied area
18.63 sq m
Direction
Southeast
Type
Apartment
Year Built
Built 23 years
Property name
Rental housing of Kyoto, Kyoto Prefecture Yamashina-ku Kawatanishiura cho Higashino Station [Rental apartment ・ Apartment] information Property Details
Transportation facilities
Subway Tozai Line / Ayumi Higashino 20 minutes
Subway Tozai Line / Nagitsuji walk 23 minutes
Subway Tozai Line / Tomb walk 27 minutes
Floor plan details
Hiroshi 6 K2
Construction
Wooden
Story
Second floor / 2-story
Built years
October 1991
Nonlife insurance
25,000 yen two years
Move-in
Immediately
Trade aspect
Mediation
Property code
K32609-201xxxxx
Total units
12 units
Remarks
Subway Tozai Line Yamashina Station walk 33 minutes


Building appearance

Building appearance

Living and room

Living and room
Living and room

Kitchen

Kitchen

Bath

Bath

Toilet

Toilet

Receipt

Receipt
Receipt
Receipt

Washroom

Washroom

Balcony

Balcony

Other Equipment

Other Equipment

Entrance

Entrance

University ・ Junior college

University ・ Junior college. Kyoto Pharmaceutical University (University of ・ 1300m up to junior college)
Kyoto Pharmaceutical University (University of ・ 1300m up to junior college)

University ・ Junior college. Kyoto Tachibana University (University ・ 2600m up to junior college)
Kyoto Tachibana University (University ・ 2600m up to junior college)

Other

Other. Rakuwakai Kyoto Welfare School (other) up to 2600m
Rakuwakai Kyoto Welfare School (other) up to 2600m

Other. 1600m to Higashino Station (Other)
1600m to Higashino Station (Other)

Other. 1800m to Nagitsuji Station (Other)
1800m to Nagitsuji Station (Other)

Other. 2100m to Misasagi Station (Other)
2100m to Misasagi Station (Other)



Location