Rentals » Kansai » Kyoto » Yamashina-ku


Otowasenbon the town houses for rent
Otowagawa than Elementary School District
Houses for rent Garage Free During distribution Independent wash basin 5DK Detached
Bus toilet by, balcony, Air conditioning, Gas stove correspondence, Flooring, Indoor laundry location, Yang per good, Facing south, Add-fired function bathroom, Corner dwelling unit, Warm water washing toilet seat, Seperate, Bicycle-parking space, closet, Immediate Available, Sale rent, Sorting, Two tenants consultation, Bike shelter, 3 station more accessible, Within a 10-minute walk station, The area occupied 30 square meters or more, Plane parkingese-style room, All room 6 tatami mats or more, City gas
Railroad-station
Subway Tozai Line / Higashino
Address
Kyoto-shi, Kyoto Yamashina-ku Otowasenbon cho
Walk
9 minutes
Rent
99,000 yen
Key money
200,000 yen
Security deposit
¥ 100,000
Floor plan
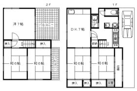
5DK
Occupied area
102.94 sq m
Direction
South
Type
Residential home
Year Built
Built 45 years
Property name
Rental housing of Kyoto, Kyoto Prefecture Yamashina-ku Otowasenbon cho Higashino Station [Rental apartment ・ Apartment] information Property Details
Transportation facilities
Subway Tozai Line / Ayumi Higashino 9 minutes
JR Tokaido Line / Ayumi Yamashina 19 minutes
Subway Tozai Line / Ayumi Yamashina 18 minutes
Floor plan details
Sum 6 sum 6 sum 6 sum 6 Hiroshi 7 DK7
Construction
Wooden
Story
1st floor / 2-story
Built years
October 1969
Nonlife insurance
21,000 yen two years
Parking lot
Free with / Flat 置駐
Move-in
Immediately
Trade aspect
Mediation
Conditions
Two people Available / Children Allowed
Property code
K16744-xx
Total units
1 units
Remarks
Keihan Keishin Keihan Yamashina Station walk 19 minutes
Area information
Kyoto Yamashina Otowa post office until the (post office) 160m Otowagawa elementary school (elementary school) up to 168m Nanden kindergarten (kindergarten ・ Nursery school) until 180m Lawson Yamashina Otsuka store (convenience store) up to 217m Happy Terada Yamashina Otsuka store (supermarket) up to 380m drag Yutaka Yamashina Otowa shop (437m up to the drugstore)


Building appearance

Building appearance
Building appearance
Building appearance
Building appearance

Parking lot

Parking lot

Other common areas

Other common areas

Supermarket

Supermarket. 380m to Happy Terada Yamashina Otsuka store (Super)
380m to Happy Terada Yamashina Otsuka store (Super)

Convenience store

Convenience store. 217m until Lawson Yamashina Otsuka store (convenience store)
217m until Lawson Yamashina Otsuka store (convenience store)

Dorakkusutoa

Dorakkusutoa. Drag Yutaka Yamashina Otowa shop 437m until (drugstore)
Drag Yutaka Yamashina Otowa shop 437m until (drugstore)

Primary school

Primary school. Otowagawa up to elementary school (elementary school) 168m
Otowagawa up to elementary school (elementary school) 168m

Kindergarten ・ Nursery

kindergarten ・ Nursery. Nanden kindergarten (kindergarten ・ 180m to the nursery)
Nanden kindergarten (kindergarten ・ 180m to the nursery)

Post office

post office. 160m to Kyoto Yamashina Otowa post office (post office)
160m to Kyoto Yamashina Otowa post office (post office)



Location