Rentals » Kansai » Kyoto » Yamashina-ku


Fujii Heights
Bus toilet by, Gas stove correspondence, Bicycle-parking space, closet, Key money unnecessary, Two tenants consultation, Bike shelter, 3 station more accessible, Within a 5-minute walk station, Plane parking, Southeast directionese-style room, All room 6 tatami mats or more, City gas
Railroad-station
Keihan Keishin / Shinomiya
Address
Kyoto-shi, Kyoto Yamashina-ku, Shinomiya Yamada
Walk
5 minutes
Rent
36,000 yen
Security deposit
80,000 yen
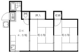
Floor plan
2DK
Occupied area
32.36 sq m
Direction
Southeast
Type
Apartment
Year Built
Built 43 years
Property name
Rental housing of Kyoto, Kyoto Prefecture Yamashina-ku, Shinomiya Yamada Shinomiya Station [Rental apartment ・ Apartment] information Property Details
Transportation facilities
Keihan Keishin / Ayumi Shinomiya 5 minutes
JR Tokaido Line / Ayumi Yamashina 15 minutes
Subway Tozai Line / Ayumi Yamashina 15 minutes
Floor plan details
Sum 6 sum 6 DK4.5
Construction
Light-gauge steel
Story
1st floor / 2-story
Built years
August 1971
Nonlife insurance
19,000 yen two years
Parking lot
On-site 5000 yen / Flat 置駐
Move-in
Consultation
Trade aspect
Mediation
Property code
K12406-102
Total units
8 units
Remarks
Keihan Keishin Keihan Yamashina Station 15-minute walk
Area information
Rakuwakai Kyoto Welfare School (other) up to 607m Kyoto Pharmaceutical University (University ・ Up to junior college) 1500m Kyoto Tachibana University (University ・ Junior college) until 2200m Shinomiya Station (other) up to 400m Keihan Yamashina Station (other) up to 1200m Yamashina Station (other) up to 1200m


Building appearance

Building appearance

Parking lot

Parking lot
Parking lot

Other common areas

Other common areas
Other common areas
Other common areas

University ・ Junior college

University ・ Junior college. Kyoto Pharmaceutical University (University of ・ 1500m up to junior college)
Kyoto Pharmaceutical University (University of ・ 1500m up to junior college)

University ・ Junior college. Kyoto Tachibana University (University ・ 2200m up to junior college)
Kyoto Tachibana University (University ・ 2200m up to junior college)

Other

Other. Rakuwakai Kyoto Welfare School (other) up to 607m
Rakuwakai Kyoto Welfare School (other) up to 607m

Other. Shinomiya 400m to the station (Other)
Shinomiya 400m to the station (Other)

Other. 1200m to Keihan Yamashina Station (Other)
1200m to Keihan Yamashina Station (Other)

Other. 1200m to Yamashina Station (Other)
1200m to Yamashina Station (Other)



Location