Rentals » Kansai » Kyoto » Yamashina-ku


Kanshujihigashidoden the town houses for rent
Detached from Ono Elementary School District
Luggage even think to large storage door also full stuffed in please!
Bus toilet by, balcony, Gas stove correspondence, Flooring, Yang per good, Corner dwelling unit, Seperate, Bicycle-parking space, closet, Immediate Available, Key money unnecessary, Deposit required, Sale rent, Sorting, Two tenants consultation, 3 station more accessible, Plane parkingese-style room, City gas
Railroad-station
Subway Tozai Line / Ono
Address
Kyoto-shi, Kyoto Yamashina-ku Kanshujihigashidoden cho
Walk
13 minutes
Rent
67,000 yen
Depreciation and amortization
¥ 100,000
Deposit
200,000 yen
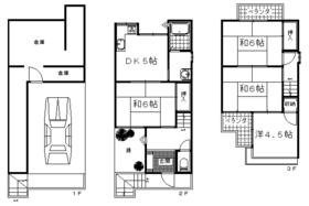
Floor plan
4DK
Occupied area
55.09 sq m
Direction
East
Type
Residential home
Year Built
Built 26 years
Property name
Rental housing of Kyoto, Kyoto Prefecture Yamashina-ku Kanshujihigashidoden cho Ono Station [Rental apartment ・ Apartment] information Property Details
Transportation facilities
Subway Tozai Line / Ayumi Ono 13 minutes
Subway Tozai Line / Nagitsuji walk 17 minutes
JR Tokaido Line / Ayumi Yamashina 44 minutes
Floor plan details
Sum 6 sum 6 sum 6 Hiroshi 4.5 DK5
Construction
Wooden
Story
1st floor / Three-story
Built years
September 1988
Nonlife insurance
The main
Parking lot
Free with / Flat Okiya Netsuke stationed
Move-in
Immediately
Trade aspect
Mediation
Conditions
Two people Available / Children Allowed
Property code
K33028-1
Total units
1 units
Remarks
Keihan Keishin Keihan Yamashina Station walk 44 minutes


Building appearance

Building appearance

Living and room

Living and room
Living and room
Living and room
Living and room
Living and room

Kitchen

Kitchen
Kitchen

Bath

Bath

Receipt

Receipt

Washroom

Washroom
Washroom

Entrance

Entrance

University ・ Junior college

University ・ Junior college. Kyoto Tachibana University (University ・ 1800m up to junior college)
Kyoto Tachibana University (University ・ 1800m up to junior college)

University ・ Junior college. Kyoto Pharmaceutical University (University of ・ 2800m up to junior college)
Kyoto Pharmaceutical University (University of ・ 2800m up to junior college)

Other

Other. Rakuwakai Kyoto Welfare School (other) up to 3200m
Rakuwakai Kyoto Welfare School (other) up to 3200m

Other. 990m to Ono Station (Other)
990m to Ono Station (Other)

Other. 1300m to Nagitsuji Station (Other)
1300m to Nagitsuji Station (Other)



Location