135,000 yen, 3LDK, 2-story, 76.5 sq m
Rentals » Kansai » Osaka prefecture » Ibaraki
 
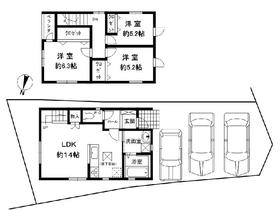
| Railroad-station 沿線・駅 | | Osaka Monorail Saito line / Park east exit 大阪モノレール彩都線/公園東口 | Address 住所 | | Ibaraki, Osaka Minamikasugaoka 1 大阪府茨木市南春日丘1 | Walk 徒歩 | | 9 minutes 9分 | Rent 賃料 | | 135,000 yen 13.5万円 | Key money 礼金 | | 400,000 yen 40万円 | Security deposit 敷金 | | 200,000 yen 20万円 | Floor plan 間取り | | 3LDK 3LDK | Occupied area 専有面積 | | 76.5 sq m 76.5m2 | Type 種別 | | Residential home 一戸建て | Year Built 築年 | | New construction 新築 | | Pets Negotiable, Musical Instruments consultation ペット相談、楽器相談 |
Property name 物件名 | | Rental housing of Ibaraki, Osaka Minamikasugaoka 1 park east exit Station [Rental apartment ・ Apartment] information Property Details 大阪府茨木市南春日丘1 公園東口駅の賃貸住宅[賃貸マンション・アパート]情報 物件詳細 | Transportation facilities 交通機関 | | Osaka Monorail Saito line / Park east exit walk 9 minutes JR Tokaido Line / Ayumi Ibaraki 21 minutes 大阪モノレール彩都線/公園東口 歩9分 JR東海道本線/茨木 歩21分
| Construction 構造 | | Wooden 木造 | Story 階建 | | 2-story 2階建 | Built years 築年月 | | New construction August 2013 新築 2013年8月 | Nonlife insurance 損保 | | 20,000 yen two years 2万円2年 | Parking lot 駐車場 | | Free with / Chu two Allowed 付無料/駐2台可 | Move-in 入居 | | Immediately 即 | Trade aspect 取引態様 | | Mediation 仲介 | Conditions 条件 | | Pets Negotiable / Musical Instruments consultation ペット相談/楽器相談 | Property code 取り扱い店舗物件コード | | 27211A005483 27211A005483 |
Building appearance建物外観 
Living and room居室・リビング 

Kitchenキッチン 
Bathバス 
Toiletトイレ 
Receipt収納 
Other room spaceその他部屋・スペース 



Washroom洗面所 
Entrance玄関 
Location
|