1977December
39,000 yen, One-room, 15th floor / 15-storey, 15 sq m
Rentals » Kansai » Osaka prefecture » Kita-ku
 
| Railroad-station 沿線・駅 | | Subway Tanimachi Line / Higashi Umeda 地下鉄谷町線/東梅田 | Address 住所 | | Osaka-shi, Osaka, Kita-ku, Nishitenma 4 大阪府大阪市北区西天満4 | Walk 徒歩 | | 5 minutes 5分 | Rent 賃料 | | 39,000 yen 3.9万円 | Management expenses 管理費・共益費 | | 15000 yen 15000円 | Floor plan 間取り | | One-room ワンルーム | Occupied area 専有面積 | | 15 sq m 15m2 | Direction 向き | | West 西 | Type 種別 | | Mansion マンション | Year Built 築年 | | Built 37 years 築37年 | | Please try to compare with other companies the expenses. For more details, our HP 諸経費を他社と比較してみてください。詳しくは当社HP |
| Please try to compare the other companies and overhead costs. For more information our website concierge resident 他社と諸経費を比較してみてください。詳しくは当社ホームページコンシェルジュ常駐 |
| Elevator, Immediate Available, top floor, 24-hour manned management, Sale rent, Unnecessary brokerage fees, Deposit required, Within a 5-minute walk station, Deposit ・ Key money unnecessary エレベーター、即入居可、最上階、24時間有人管理、分譲賃貸、仲介手数料不要、保証金不要、駅徒歩5分以内、敷金・礼金不要 |
Property name 物件名 | | Rental housing of Osaka-shi, Osaka, Kita-ku, Nishitenma 4 Higashi Umeda Station [Rental apartment ・ Apartment] information Property Details 大阪府大阪市北区西天満4 東梅田駅の賃貸住宅[賃貸マンション・アパート]情報 物件詳細 | Transportation facilities 交通機関 | | Subway Tanimachi Line / Higashi Umeda step 5 minutes Keihan Nakanoshima line / Oe Bridge step 8 minutes JR Tozai Line / Kitashinchi walk 7 minutes 地下鉄谷町線/東梅田 歩5分 京阪中之島線/大江橋 歩8分 JR東西線/北新地 歩7分
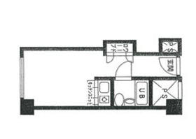
| Floor plan details 間取り詳細 | | Hiroshi 6 洋6 | Construction 構造 | | Rebar Con 鉄筋コン | Story 階建 | | 15th floor / 15-storey 15階/15階建 | Built years 築年月 | | December 1977 1977年12月 | Nonlife insurance 損保 | | The main 要 | Move-in 入居 | | Immediately 即 | Trade aspect 取引態様 | | Mediation 仲介 | Property code 取り扱い店舗物件コード | | 1113600470 1113600470 | Intermediate fee 仲介手数料 | | Unnecessary 不要 | Remarks 備考 | | F-One Ltd. 197m to Umeda Shindo shop / Tsuruya to golf Osaka Station shop 297m / Resident management エフワン梅田新道店まで197m/つるやゴルフ大阪駅前店まで297m/常駐管理 | Area information 周辺情報 | | F-One Ltd. Umeda Shindo store (shopping center) to 197m Tsuruya to golf Osaka Station store (shopping center) to 297m supermarket mountain Tsuji to (super) 371m Lawson Sonezaki 2-chome 173m supermarket mountain Tsuji (super) to (convenience store) 371mfoodium Dojima ( エフワン梅田新道店(ショッピングセンター)まで197mつるやゴルフ大阪駅前店(ショッピングセンター)まで297mスーパーマーケットヤマツジ(スーパー)まで371mローソン曽根崎2丁目店(コンビニ)まで173mスーパーマーケットヤマツジ(スーパー)まで371mfoodium堂島(スーパー)まで344m |
Building appearance建物外観 
Lobbyロビー 

Otherその他 
Location
|