Rentals » Kansai » Osaka prefecture » Kita-ku
 
| Railroad-station 沿線・駅 | | Subway Tanimachi Line / Nakazakicho 地下鉄谷町線/中崎町 | Address 住所 | | Osaka-shi, Osaka, Kita-ku, Nakazakinishi 1 大阪府大阪市北区中崎西1 | Walk 徒歩 | | 1 minute 1分 | Rent 賃料 | | 120,000 yen 12万円 | Management expenses 管理費・共益費 | | 10000 yen 10000円 | Key money 礼金 | | 300,000 yen 30万円 | Floor plan 間取り | | 2LDK 2LDK | Occupied area 専有面積 | | 58.06 sq m 58.06m2 | Direction 向き | | Southeast 南東 | Type 種別 | | Mansion マンション | Year Built 築年 | | Built 10 years 築10年 | | Nakazakichō Station 1 minute ・ Pet breeding Allowed! Of fully equipped condominium rental apartments 中崎町駅1分・ペット飼育可!設備充実の分譲賃貸マンション |
| Station 1-minute walk of the good location! ! High-grade condominium rental apartments! Equipment has been enhanced as you can see, Close to mall ・ Supermarket ・ convenience store ・ There is also such as restaurant is very conveniently located environment ☆ 駅徒歩1分の好立地!!ハイグレード分譲賃貸マンション!設備は見ての通り充実しており、近隣には商店街・スーパー・コンビニ・飲食店などもあり非常に便利な立地環境です☆ |
| Bus toilet by, balcony, Air conditioning, closet, Flooring, Washbasin with shower, TV interphone, Bathroom Dryer, auto lock, Indoor laundry location, Yang per good, Shoe box, System kitchen, Add-fired function bathroom, Warm water washing toilet seat, Dressing room, Elevator, Seperate, Bathroom vanity, Bicycle-parking space, Delivery Box, CATV, Optical fiber, 3-neck over stove, surveillance camera, Stand-alone kitchen, Pets Negotiable, Sale rent, Otobasu, Walk-in closet, CATV Internet, Bike shelter, 24-hour emergency call system, All living room flooring, Dimple key, CS, Floor heating, Good view, Air Conditioning All rooms, Double lock key, Barrier-free, 24-hour ventilation system, TV with bathroom, South living, Flat Floor, Earthquake-resistant structure, 3 along the line more accessible, On-site trash Storage, Southeast direction, Door to the washroom, Three-sided mirror with vanity, Vanity with vertical lighting, South balcony, Ceiling height shoe closet, BS, High speed Internet correspondence, Ventilation good バストイレ別、バルコニー、エアコン、クロゼット、フローリング、シャワー付洗面台、TVインターホン、浴室乾燥機、オートロック、室内洗濯置、陽当り良好、シューズボックス、システムキッチン、追焚機能浴室、温水洗浄便座、脱衣所、エレベーター、洗面所独立、洗面化粧台、駐輪場、宅配ボックス、CATV、光ファイバー、3口以上コンロ、防犯カメラ、独立型キッチン、ペット相談、分譲賃貸、オートバス、ウォークインクロゼット、CATVインターネット、バイク置場、24時間緊急通報システム、全居室フローリング、ディンプルキー、CS、床暖房、眺望良好、エアコン全室、ダブルロックキー、バリアフリー、24時間換気システム、TV付浴室、南面リビング、フラットフロア、耐震構造、3沿線以上利用可、敷地内ごみ置き場、東南向き、洗面所にドア、三面鏡付洗面化粧台、縦型照明付洗面化粧台、南面バルコニー、天井高シューズクロゼット、BS、高速ネット対応、通風良好 |
Property name 物件名 | | Rental housing of Osaka-shi, Osaka, Kita-ku, Nakazakinishi 1 Nakazakichō Station [Rental apartment ・ Apartment] information Property Details 大阪府大阪市北区中崎西1 中崎町駅の賃貸住宅[賃貸マンション・アパート]情報 物件詳細 | Transportation facilities 交通機関 | | Subway Tanimachi Line / Nakazakicho walk 1 minute Hankyu Kobe Line / Ayumi Umeda 7 minutes Subway Midosuji Line / Ayumi Umeda 10 minutes 地下鉄谷町線/中崎町 歩1分 阪急神戸線/梅田 歩7分 地下鉄御堂筋線/梅田 歩10分
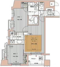
| Floor plan details 間取り詳細 | | Hiroshi 6 Hiroshi 6 LDK13.2 洋6 洋6 LDK13.2 | Construction 構造 | | Rebar Con 鉄筋コン | Story 階建 | | 7th floor / 14-storey 7階/14階建 | Built years 築年月 | | December 2004 2004年12月 | Nonlife insurance 損保 | | The main 要 | Move-in 入居 | | Immediately 即 | Trade aspect 取引態様 | | Mediation 仲介 | Conditions 条件 | | Two people Available / Pets Negotiable 二人入居可/ペット相談 | Remarks 備考 | | Patrol management / Pet-friendly high-grade condominium rental apartments 巡回管理/ペット可ハイグレード分譲賃貸マンション | Area information 周辺情報 | | UNIQLO Umeda 454mHEP until the (shopping center) until 396mEST (shopping center) FIVE (shopping center) to 489m Lawson, Kita-ku, Banzai Machiten (convenience store) up to 88m FamilyMart Daitoyo Higashi Umeda store (convenience store) up to 152m Lawson Umeda Doyama store up (convenience store) 247m ユニクロ梅田店(ショッピングセンター)まで396mEST(ショッピングセンター)まで454mHEP FIVE(ショッピングセンター)まで489mローソン北区万歳町店(コンビニ)まで88mファミリーマート大東洋東梅田店(コンビニ)まで152mローソン梅田堂山店(コンビニ)まで247m |
Building appearance建物外観 


Living and room居室・リビング 

Kitchenキッチン 

Bathバス 
Toiletトイレ 
Receipt収納 
Other room spaceその他部屋・スペース 
Washroom洗面所 
Other common areasその他共有部分 

|