|
Railroad-station 沿線・駅 | | Subway Yotsubashi Line / Namba 地下鉄四つ橋線/なんば |
Address 住所 | | Osaka-shi, Osaka, Naniwa-ku, Shikitsunishi 1 大阪府大阪市浪速区敷津西1 |
Walk 徒歩 | | 10 minutes 10分 |
Rent 賃料 | | 68,000 yen 6.8万円 |
Management expenses 管理費・共益費 | | 10000 yen 10000円 |
Key money 礼金 | | 30,000 yen 3万円 |
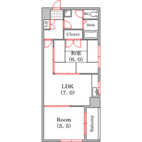
Floor plan 間取り | | 2LDK 2LDK |
Occupied area 専有面積 | | 45.2 sq m 45.2m2 |
Direction 向き | | North 北 |
Type 種別 | | Mansion マンション |
Year Built 築年 | | Built 18 years 築18年 |
|
Super 1 minute ・ Convenience store 2 minutes
スーパー1分・コンビニ2分
|
|
Pet breeding Allowed auto lock Elevator separate System kitchen Bidet Independent wash undressing room Separate vanity Air conditioning closet Optical fiber
ペット飼育可 オートロック エレベーター セパレート システムキッチン ウォシュレット 独立洗面脱衣室 独立洗面化粧台 エアコン クローゼット 光ファイバー
|
|
Bus toilet by, balcony, Air conditioning, Gas stove correspondence, closet, Flooring, auto lock, System kitchen, Corner dwelling unit, Warm water washing toilet seat, Elevator, Seperate, Bathroom vanity, Two-burner stove, Optical fiber, Immediate Available, Deposit required, Pets Negotiable, 3 station more accessible, 3 along the line more accessible, On-site trash Storage, Door to the washroom
バストイレ別、バルコニー、エアコン、ガスコンロ対応、クロゼット、フローリング、オートロック、システムキッチン、角住戸、温水洗浄便座、エレベーター、洗面所独立、洗面化粧台、2口コンロ、光ファイバー、即入居可、敷金不要、ペット相談、3駅以上利用可、3沿線以上利用可、敷地内ごみ置き場、洗面所にドア
|
Property name 物件名 | | Rental housing of Osaka-shi, Osaka, Naniwa-ku, Shikitsunishi 1 Namba Station [Rental apartment ・ Apartment] information Property Details 大阪府大阪市浪速区敷津西1 なんば駅の賃貸住宅[賃貸マンション・アパート]情報 物件詳細 |
Transportation facilities 交通機関 | | Subway Yotsubashi Line / Namba walk 10 minutes Subway Midosuji Line / Daikokucho walk 4 minutes Nankai Koya Line / Imamiya Ebisu step 9 minutes 地下鉄四つ橋線/なんば 歩10分 地下鉄御堂筋線/大国町 歩4分 南海高野線/今宮戎 歩9分
|
Floor plan details 間取り詳細 | | Hiroshi 6 Hiroshi 5.5 LDK7 洋6 洋5.5 LDK7 |
Construction 構造 | | Steel frame 鉄骨 |
Story 階建 | | 7th floor / Nine-storey 7階/9階建 |
Built years 築年月 | | 1997 1997年 |
Nonlife insurance 損保 | | The main 要 |
Move-in 入居 | | Immediately 即 |
Trade aspect 取引態様 | | Mediation 仲介 |
Conditions 条件 | | Pets Negotiable ペット相談 |
Remarks 備考 | | Patrol management 巡回管理 |
Area information 周辺情報 | | Life superpower Machiten (super) up to 49m super Tamade powers Machiten (super) 107m Seven-Eleven Osaka Daikokucho Ekikita store (convenience store) up to 99m Tominaga clinic (hospital) to 312m Naniwa post office (post office) to 4047m Kansai Urban Bank Namba ライフ大国町店(スーパー)まで49mスーパー玉出大国町店(スーパー)まで107mセブンイレブン大阪大国町駅北店(コンビニ)まで99m富永クリニック(病院)まで312m浪速郵便局(郵便局)まで4047m関西アーバン銀行難波支店(銀行)まで257m |