|
Railroad-station 沿線・駅 | | Subway Midosuji Line / Stay long 地下鉄御堂筋線/長居 |
Address 住所 | | Osaka-shi, Osaka Sumiyoshi-ku, Abikohigashi 1 大阪府大阪市住吉区我孫子東1 |
Walk 徒歩 | | 5 minutes 5分 |
Rent 賃料 | | 75,000 yen 7.5万円 |
Management expenses 管理費・共益費 | | 11000 yen 11000円 |
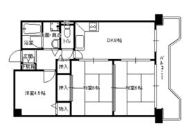
Floor plan 間取り | | 3DK 3DK |
Occupied area 専有面積 | | 56 sq m 56m2 |
Direction 向き | | East 東 |
Type 種別 | | Mansion マンション |
Year Built 築年 | | Built 26 years 築26年 |
|
Little shopping is very convenient in 1F convenience store!
1Fコンビニでちょっとした買い物はとても便利!
|
|
Deposit ・ This move can be listing key money 0 yen. For more information, please contact the Forest.
敷金・礼金0円で入居可能物件です。詳しくはフォレストまでお問い合わせ下さい。
|
|
Bus toilet by, balcony, Gas stove correspondence, Flooring, auto lock, Indoor laundry location, Yang per good, Shoe box, System kitchen, Elevator, Seperate, Bicycle-parking space, CATV, Optical fiber, Outer wall tiling, Immediate Available, CATV Internet, Good view, Double-glazing, On-site trash Storage, Plane parking, BS, High speed Internet correspondence, Deposit ・ Key money unnecessary, Ventilation good
バストイレ別、バルコニー、ガスコンロ対応、フローリング、オートロック、室内洗濯置、陽当り良好、シューズボックス、システムキッチン、エレベーター、洗面所独立、駐輪場、CATV、光ファイバー、外壁タイル張り、即入居可、CATVインターネット、眺望良好、複層ガラス、敷地内ごみ置き場、平面駐車場、BS、高速ネット対応、敷金・礼金不要、通風良好
|
Property name 物件名 | | Rental housing of Osaka-shi, Osaka Sumiyoshi-ku, Abikohigashi 1 Nagai Station [Rental apartment ・ Apartment] information Property Details 大阪府大阪市住吉区我孫子東1 長居駅の賃貸住宅[賃貸マンション・アパート]情報 物件詳細 |
Transportation facilities 交通機関 | | Subway Midosuji Line / Nagai walk 5 minutes JR Hanwa Line / Nagai walk 7 minutes Subway Midosuji Line / Ayumi Abiko 10 minutes 地下鉄御堂筋線/長居 歩5分 JR阪和線/長居 歩7分 地下鉄御堂筋線/あびこ 歩10分
|
Floor plan details 間取り詳細 | | Sum 6 sum 4.5 Hiroshi 5 DK6 和6 和4.5 洋5 DK6 |
Construction 構造 | | Rebar Con 鉄筋コン |
Story 階建 | | 6th floor / 8-story 6階/8階建 |
Built years 築年月 | | March 1989 1989年3月 |
Nonlife insurance 損保 | | The main 要 |
Move-in 入居 | | Immediately 即 |
Trade aspect 取引態様 | | Mediation 仲介 |
Property code 取り扱い店舗物件コード | | 59 59 |
Area information 周辺情報 | | 588m to the Kansai Super Nagai store (supermarket) up to 468m life Nagai store (supermarket) up to 649m Lawson Abikohigashi 1-chome (convenience store) to 0m Sunkus Nagaihigashi 3-chome (convenience store) 230m cedar pharmacy Abiko Higashiten (drugstore) to 関西スーパー長居店(スーパー)まで468mライフ長居店(スーパー)まで649mローソン我孫子東1丁目店(コンビニ)まで0mサンクス長居東3丁目店(コンビニ)まで230mスギ薬局あびこ東店(ドラッグストア)まで588m大阪市立長居小学校(小学校)まで325m |