|
Railroad-station 沿線・駅 | | Subway Midosuji Line / Stay long 地下鉄御堂筋線/長居 |
Address 住所 | | Osaka-shi, Osaka Sumiyoshi-ku, Nagaihigashi 4 大阪府大阪市住吉区長居東4 |
Walk 徒歩 | | 1 minute 1分 |
Rent 賃料 | | 67,000 yen 6.7万円 |
Management expenses 管理費・共益費 | | 6000 yen 6000円 |
Key money 礼金 | | 201,000 yen 20.1万円 |
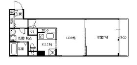
Floor plan 間取り | | 1LDK 1LDK |
Occupied area 専有面積 | | 44.54 sq m 44.54m2 |
Direction 向き | | East 東 |
Type 種別 | | Mansion マンション |
Year Built 築年 | | Built 43 years 築43年 |
|
Similarly new construction in a room completely renovated! Stylish renovation property.
室内全面改装で新築同様!お洒落なリノベーション物件です。
|
|
Similarly new construction in a room completely renovated! Stylish renovation property! Large supermarket in front of the station ・ Also just a good location convenience store. Is there a must-see value in the fully-equipped.
室内全面改装で新築同様!お洒落なリノベーション物件!駅前で大型スーパー・コンビニもすぐの好立地。設備充実で必見価値ありです。
|
|
Bus toilet by, balcony, Air conditioning, Gas stove correspondence, closet, Flooring, Bathroom Dryer, Indoor laundry location, Yang per good, Shoe box, Dressing room, Elevator, Seperate, Bathroom vanity, Delivery Box, Optical fiber, Immediate Available, Deposit required, Face-to-face kitchen, All room Western-style, All living room flooring, Design, 2 wayside Available, Flat to the station, Barrier-free, Not tenants, 2 Station Available, Station, Within a 5-minute walk station, Southeast direction
バストイレ別、バルコニー、エアコン、ガスコンロ対応、クロゼット、フローリング、浴室乾燥機、室内洗濯置、陽当り良好、シューズボックス、脱衣所、エレベーター、洗面所独立、洗面化粧台、宅配ボックス、光ファイバー、即入居可、敷金不要、対面式キッチン、全居室洋室、全居室フローリング、デザイナーズ、2沿線利用可、駅まで平坦、バリアフリー、未入居、2駅利用可、駅前、駅徒歩5分以内、東南向き
|
Property name 物件名 | | Rental housing of Osaka-shi, Osaka Sumiyoshi-ku, Nagaihigashi 4 Nagai Station [Rental apartment ・ Apartment] information Property Details 大阪府大阪市住吉区長居東4 長居駅の賃貸住宅[賃貸マンション・アパート]情報 物件詳細 |
Transportation facilities 交通機関 | | Subway Midosuji Line / Nagai walk 1 minute JR Hanwa Line / Nagai walk 1 minute JR Hanwa Line / Tsurugaoka walk 14 minutes 地下鉄御堂筋線/長居 歩1分 JR阪和線/長居 歩1分 JR阪和線/鶴ケ丘 歩14分
|
Floor plan details 間取り詳細 | | Hiroshi 7 LDK10.5 洋7 LDK10.5 |
Construction 構造 | | Rebar Con 鉄筋コン |
Story 階建 | | 5th floor / 7-story 5階/7階建 |
Built years 築年月 | | April 1972 1972年4月 |
Move-in 入居 | | Immediately 即 |
Trade aspect 取引態様 | | Mediation 仲介 |
Property code 取り扱い店舗物件コード | | 205 205 |
Area information 周辺情報 | | Nagai 1190m Sumiyoshi to Kansai Super Nagai store (supermarket) up to 403m life Nagai store (supermarket) up to 597m Lawson Nagai Park before the store (convenience store) up to 62m Sunkus Nagai Station store (convenience store) up to 246m Nishikishukai Hanwa Sumiyoshi General Hospital (Hospital) 関西スーパー長居店(スーパー)まで403mライフ長居店(スーパー)まで597mローソン長居公園前店(コンビニ)まで62mサンクス長居駅前店(コンビニ)まで246m錦秀会阪和住吉総合病院(病院)まで1190m住吉長居郵便局(郵便局)まで312m |