Rentals » Kansai » Osaka prefecture » Sumiyoshi-ku


Renovation the 2DK to 1LDK! Pet breeding Allowed!
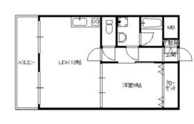
Renovation the 2DK to 1LDK! kitchen ・ Joinery ・ Wash basin also is a new article! Balcony good day on the south-facing. Closet also big can be quite accommodating.
Bus toilet by, balcony, Gas stove correspondence, closet, Indoor laundry location, Shoe box, Facing south, Seperate, Bathroom vanity, Bicycle-parking space, CATV, Optical fiber, Immediate Available, top floor, Deposit required, Pets Negotiable, CATV Internet, Bike shelter, All living room flooring, 2 wayside Available, Dimple key, Flat to the station, Window in the kitchen, Flat terrain, Fireproof structure, 2 Station Available, No upper floor, 24 hours garbage disposal Allowed, On-site trash Storage, LDK12 tatami mats or more, South balcony, BS, High speed Internet correspondence, Guarantee company Available
Railroad-station
JR Hanwa Line / Stay long
Address
Osaka-shi, Osaka Sumiyoshi-ku Nagai 2
Walk
6 minutes
Rent
68,000 yen
Management expenses
4000 yen
Key money
150,000 yen
Floor plan
1LDK
Occupied area
42 sq m
Direction
South
Type
Mansion
Year Built
Built 27 years
Property name
Rental housing of Osaka-shi, Osaka Sumiyoshi-ku Nagai 2 Nagai Station [Rental apartment ・ Apartment] information Property Details
Transportation facilities
JR Hanwa Line / Nagai walk 6 minutes
Subway Midosuji Line / Nagai walk 8 minutes
JR Hanwa Line / Tsurugaoka walk 12 minutes
Floor plan details
Hiroshi 6 LDK12
Construction
Rebar Con
Story
4th floor / Underground 4 above ground 4-story
Built years
April 1988
Nonlife insurance
The main
Move-in
Immediately
Trade aspect
Mediation
Property code
241
Area information
Sandy Nagai store (supermarket) up to 288m Lawson Nagai 2-chome (convenience store) up to 73m Daikoku drag subway Nagai Station shop (drugstore) to 689mTSUTAYA Nagai shop 749m Osaka Prefectural acute until the (video rental) to 639m Osaka Municipal Nagai elementary school (elementary school) ・ General Medical Center until the (hospital) 1212m


Building appearance

Building appearance

Living and room

Living and room
Living and room

Kitchen

Kitchen

Bath

Bath

Toilet

Toilet

Receipt

Receipt

Other room space

Other room space

Washroom

Washroom

Entrance

Entrance