Rentals » Kyushu » Saga Prefecture » Ogi

| Railroad-station 沿線・駅 | | JR Nagasaki Main Line / Ushizu JR長崎本線/牛津 | Address 住所 | | Saga Prefecture Ogi Ushizu Kamitogawa 佐賀県小城市牛津町上砥川 | Bus バス | | 5 minutes 5分 | Walk 徒歩 | | 6 minutes 6分 | Rent 賃料 | | 53,000 yen 5.3万円 | Management expenses 管理費・共益費 | | 3000 yen 3000円 | Floor plan 間取り | | 2LDK 2LDK | Occupied area 専有面積 | | 66.91 sq m 66.91m2 | Direction 向き | | Southeast 南東 | Type 種別 | | Apartment アパート | Year Built 築年 | | New construction 新築 | | Premium Kamitogawa プレミアム上砥川 |
| ☆ Optical Internet line introduced! ! Unlimited use in the "free"! ! ☆ ☆光インターネット回線導入!!『無料』で使い放題!!☆ |
| Maisonette detached sense. Air-conditioned 3 groups, Wash basin full of design, Fully equipped to support a comfortable lifestyle, such as peace of mind of TV Intercom! ! 戸建感覚のメゾネットタイプ。エアコン3基付、デザイン性あふれる洗面台、安心のTVドアホンなど快適な暮らしをサポートする充実した設備!! |
| Bus toilet by, balcony, Air conditioning, closet, Flooring, TV interphone, Indoor laundry location, Add-fired function bathroom, Warm water washing toilet seat, Seperate, Optical fiber, Immediate Available, Deposit required, Face-to-face kitchen, All room Western-style, Unnecessary brokerage fees, Two tenants consultation, All living room flooring, Design, Maisonette, Net use fee unnecessary, The window in the bathroom, Within built 2 years, Air conditioning three, Closet 2 places, Southeast direction, LDK12 tatami mats or more, All room 6 tatami mats or more, propane gas, Second floor wash basin, Window in washroom, BS, High speed Internet correspondence, Deposit ・ Key money unnecessary バストイレ別、バルコニー、エアコン、クロゼット、フローリング、TVインターホン、室内洗濯置、追焚機能浴室、温水洗浄便座、洗面所独立、光ファイバー、即入居可、敷金不要、対面式キッチン、全居室洋室、仲介手数料不要、二人入居相談、全居室フローリング、デザイナーズ、メゾネット、ネット使用料不要、浴室に窓、築2年以内、エアコン3台、クロゼット2ヶ所、東南向き、LDK12畳以上、全居室6畳以上、プロパンガス、2階洗面台、洗面所に窓、BS、高速ネット対応、敷金・礼金不要 |
Property name 物件名 | | Rental housing, Saga Prefecture Ogi Ushizu Kamitogawa Ushizu Station [Rental apartment ・ Apartment] information Property Details 佐賀県小城市牛津町上砥川 牛津駅の賃貸住宅[賃貸マンション・アパート]情報 物件詳細 | Transportation facilities 交通機関 | | JR Nagasaki Main Line / Ushizu 5 minutes by bus (bus stop) Togawa Shinjuku walk 6 minutes JR長崎本線/牛津 バス5分 (バス停)砥川新宿 歩6分
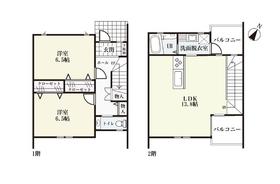
| Floor plan details 間取り詳細 | | Hiroshi 6.5 Hiroshi 6.5 LDK13.8 洋6.5 洋6.5 LDK13.8 | Construction 構造 | | Wooden 木造 | Story 階建 | | 1st floor / 2-story 1階/2階建 | Built years 築年月 | | New construction in February 2014 新築 2014年2月 | Nonlife insurance 損保 | | The main 要 | Parking lot 駐車場 | | On-site 3240 yen 敷地内3240円 | Move-in 入居 | | Immediately 即 | Trade aspect 取引態様 | | Agency 代理 | Conditions 条件 | | Two people Available 二人入居可 | Property code 取り扱い店舗物件コード | | 140 140 | Total units 総戸数 | | 7 units 7戸 |
Building appearance建物外観 
Otherその他 

 Appearance (A No. ・ No. B)
外観(A号・B号)






Location
|