Rentals » Kyushu » Saga Prefecture » Ogi


Premium Kamitogawa
☆ Optical Internet line introduced! ! Unlimited use in the "free"! ! ☆
Maisonette detached sense. Air-conditioned 3 groups, Wash basin full of design, Fully equipped to support a comfortable lifestyle, such as peace of mind of TV Intercom! !
Bus toilet by, balcony, Air conditioning, closet, Flooring, TV interphone, Indoor laundry location, Add-fired function bathroom, Warm water washing toilet seat, Seperate, Optical fiber, Immediate Available, Deposit required, Parking two Allowed, Design, Maisonette, Net use fee unnecessary, Within built 2 years, Southeast direction, LDK12 tatami mats or more, BS, High speed Internet correspondence, Deposit ・ Key money unnecessary
Railroad-station
JR Nagasaki Main Line / Ushizu
Address
Saga Prefecture Ogi Ushizu Kamitogawa
Bus
5 minutes
Walk
6 minutes
Rent
53,000 yen
Management expenses
3000 yen
Floor plan
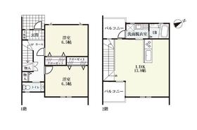
2LDK
Occupied area
66.91 sq m
Direction
Southeast
Type
Apartment
Year Built
New construction
Property name
Rental housing, Saga Prefecture Ogi Ushizu Kamitogawa Ushizu Station [Rental apartment ・ Apartment] information Property Details
Transportation facilities
JR Nagasaki Main Line / Ushizu 5 minutes by bus (bus stop) Togawa Shinjuku walk 6 minutes
Floor plan details
Hiroshi 6.5 Hiroshi 6.5 LDK13.8
Construction
Wooden
Story
1st floor / 2-story
Built years
New construction in February 2014
Nonlife insurance
The main
Parking lot
On-site 3240 yen
Move-in
Immediately
Trade aspect
Agency
Conditions
Two people Available
Property code
140
Total units
7 units


Building appearance

Building appearance

Other

Other
Other
Other. Appearance (E No. ・ F No. ・ No. G)
Appearance (E No. ・ F No. ・ No. G)

Other
Other
Other
Other
Other
Other


Location