1976May
68,000 yen, 4DK, 2-story, 66.24 sq m
Rentals » Kanto » Saitama Prefecture » Fujimino
 
| Railroad-station 沿線・駅 | | Tobu Tojo Line / Fujimino 東武東上線/ふじみ野 | Address 住所 | | Saitama Prefecture Fujimino new Komahayashi 4 埼玉県ふじみ野市新駒林4 | Walk 徒歩 | | 16 minutes 16分 | Rent 賃料 | | 68,000 yen 6.8万円 | Key money 礼金 | | 136,000 yen 13.6万円 | Floor plan 間取り | | 4DK 4DK | Occupied area 専有面積 | | 66.24 sq m 66.24m2 | Direction 向き | | Southwest 南西 | Type 種別 | | Residential home 一戸建て | Year Built 築年 | | Built 38 years 築38年 | | Temporary residence private rental housing at the time of rebuilding. At once a contract period of rent at the time of move-in 建替え時の仮住まい専用貸家。入居時に契約期間分の賃料を一括で |
| Bus toilet by, balcony, Air conditioning, Gas stove correspondence, Indoor laundry location, Yang per good, Bathroom vanity, closet, Immediate Available, Deposit required, Parking one free, Window in the kitchen, Underfloor Storage, Shutter, Some flooring, Southwestwardese-style room, Alcove, Window in washroom バストイレ別、バルコニー、エアコン、ガスコンロ対応、室内洗濯置、陽当り良好、洗面化粧台、押入、即入居可、敷金不要、駐車場1台無料、キッチンに窓、床下収納、雨戸、一部フローリング、南西向き、和室、床の間、洗面所に窓 |
Property name 物件名 | | Rental housing Prefecture Fujimino new Komahayashi 4 fujimino station [Rental apartment ・ Apartment] information Property Details 埼玉県ふじみ野市新駒林4 ふじみ野駅の賃貸住宅[賃貸マンション・アパート]情報 物件詳細 | Transportation facilities 交通機関 | | Tobu Tojo Line / Fujimino walk 16 minutes Tobu Tojo Line / Ayumi Kamifukuoka 20 minutes Tobu Tojo Line / Tsuruse walk 42 minutes 東武東上線/ふじみ野 歩16分 東武東上線/上福岡 歩20分 東武東上線/鶴瀬 歩42分
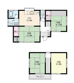
| Floor plan details 間取り詳細 | | Sum 6 sum 6 sum 4.5 Hiroshi 6 DK6 和6 和6 和4.5 洋6 DK6 | Construction 構造 | | Wooden 木造 | Story 階建 | | 2-story 2階建 | Built years 築年月 | | May 1976 1976年5月 | Nonlife insurance 損保 | | The main 要 | Parking lot 駐車場 | | Free with 付無料 | Move-in 入居 | | Immediately 即 | Trade aspect 取引態様 | | Mediation 仲介 | Remarks 備考 | | Yaoko Co., Ltd. Kamifukuoka until Komahayashi shop 552m / 477m to Seven-Eleven Kamifukuoka Komahayashi shop / Temporary residence dedicated! You can not move in the long-term. ヤオコー上福岡駒林店まで552m/セブンイレブン上福岡駒林店まで477m/仮住まい専用!長期での入居はできません。 | Area information 周辺情報 | | Yaoko Co., Ltd. Kamifukuoka Komahayashi shop 477m drag it to the (super) up to 552m Seven-Eleven Kamifukuoka Komahayashi store (convenience store) ・ Fukuoka shop in ace 468m to (drugstore) to 623m gust Fujimino Higashiten (restaurant) to 651m medical corporation MakotoHisashikai Kamifukuoka General Hospital (Hospital) to 1167m Kamifukuoka Matsuyama post office (post office) ヤオコー上福岡駒林店(スーパー)まで552mセブンイレブン上福岡駒林店(コンビニ)まで477mドラッグ・エース中福岡店(ドラッグストア)まで623mガストふじみ野東店(飲食店)まで651m医療法人誠壽会上福岡総合病院(病院)まで1167m上福岡松山郵便局(郵便局)まで468m |
Building appearance建物外観 
Living and room居室・リビング 



Kitchenキッチン 
Bathバス 
Toiletトイレ 
Washroom洗面所 
Entrance玄関 
Location
|