Rentals » Kanto » Saitama » Kawagoe
 
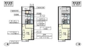
| Railroad-station 沿線・駅 | | JR Kawagoe Line / Kasahata JR川越線/笠幡 | Address 住所 | | Kawagoe City Prefecture, Oaza Kasahata 埼玉県川越市大字笠幡 | Walk 徒歩 | | 11 minutes 11分 | Rent 賃料 | | 41,000 yen 4.1万円 | Management expenses 管理費・共益費 | | 4000 yen 4000円 | Floor plan 間取り | | 1K 1K | Occupied area 専有面積 | | 23.61 sq m 23.61m2 | Direction 向き | | South 南 | Type 種別 | | Apartment アパート | Year Built 築年 | | Built seven years 築7年 | | ☆ Coll Leonis 133865 ☆コル レオニス133865 |
| Deposit zero furnished home appliances fell rent Parking available on site 敷地内駐車場あり家賃下がりました敷金ゼロ家具家電付 |
| Environmental maintenance costs: 1 month 520 yen, Key Exchange Fee: your contract during the 9970 yen, Basic cleaning fee (at the time of leaving) 1K26770 yen (furniture ・ Consumer electronics with room 3150 yen added), , Internet usage fee: 1600 yen per 30 days, Renewal fees: 157 環境維持費:1ヶ月520円、鍵交換費:ご契約時9970円、基本清掃料(退室時)1K26770円(家具・家電付の部屋は3150円追加)、、インターネット利用料:30日あたり1600円、更新手数料:157 |
| Bus toilet by, Air conditioning, closet, Flooring, TV interphone, Bathroom Dryer, Indoor laundry location, Yang per good, Shoe box, Two-burner stove, Bicycle-parking space, Delivery Box, Immediate Available, top floor, Deposit required, With lighting, Electric stove, All room Western-style, Guarantor unnecessary, refrigerator, Two tenants consultation, Card key, 2 wayside Available, CS, Net private line, Washing machine, Air Conditioning All rooms, Electronic key, microwave, Seismically isolated structure, bed, With consumer electronics, Furnished, Closet 3 places, Fireproof structure, Earthquake-resistant structure, Stairs under storage, With curtain, All rooms facing southeast, 3 station more accessible, Seismic structure, On-site trash Storage, Plane parking, Southeast direction, 8 tatami greater than or equal to a total room, propane gas, Carpet Zhang, Entrance storage, indirect lighting, LAN, Key money one month, All rooms with lighting, Ventilation good バストイレ別、エアコン、クロゼット、フローリング、TVインターホン、浴室乾燥機、室内洗濯置、陽当り良好、シューズボックス、2口コンロ、駐輪場、宅配ボックス、即入居可、最上階、敷金不要、照明付、電気コンロ、全居室洋室、保証人不要、冷蔵庫、二人入居相談、カードキー、2沿線利用可、CS、ネット専用回線、洗濯機、エアコン全室、電子キー、電子レンジ、免震構造、ベッド、家電付、家具付、クロゼット3ヶ所、耐火構造、耐震構造、階段下収納、カーテン付、全室東南向き、3駅以上利用可、制震構造、敷地内ごみ置き場、平面駐車場、東南向き、全居室8畳以上、プロパンガス、じゅうたん張、玄関収納、間接照明、LAN、礼金1ヶ月、全室照明付、通風良好 |
Property name 物件名 | | Rental housing of Kawagoe City Prefecture, Oaza Kasahata Kasahata Station [Rental apartment ・ Apartment] information Property Details 埼玉県川越市大字笠幡 笠幡駅の賃貸住宅[賃貸マンション・アパート]情報 物件詳細 | Transportation facilities 交通機関 | | JR Kawagoe Line / Kasahata walk 11 minutes Tobu Tojo Line / Kasumigaseki walk 47 minutes Tobu Tojo Line / Ayumi Kawagoe 93 minutes JR川越線/笠幡 歩11分 東武東上線/霞ヶ関 歩47分 東武東上線/川越 歩93分
| Floor plan details 間取り詳細 | | Hiroshi 7.9 洋7.9 | Construction 構造 | | Wooden 木造 | Story 階建 | | Second floor / 2-story 2階/2階建 | Built years 築年月 | | August 2007 2007年8月 | Nonlife insurance 損保 | | 13,600 yen two years 1.36万円2年 | Parking lot 駐車場 | | On-site 5250 yen 敷地内5250円 | Move-in 入居 | | Immediately 即 | Trade aspect 取引態様 | | Mediation 仲介 | Conditions 条件 | | Two people Available / Office Unavailable 二人入居可/事務所利用不可 | Property code 取り扱い店舗物件コード | | 33865 33865 | Total units 総戸数 | | 28 units 28戸 | Intermediate fee 仲介手数料 | | Unnecessary 不要 | In addition ほか初期費用 | | Total 10,000 yen (Breakdown: The key exchange fee 09,970 yen) 合計1万円(内訳:鍵交換代0.997万円) | Remarks 備考 | | Consultation of the move-in day, Until more information about the property Sunrise Housing Research Corporation Tsurugashima shop 入居日の相談、物件の詳細は サンライズ住研(株)鶴ケ島店まで |
Balconyバルコニー 
Building appearance建物外観 


Kitchenキッチン 
Bathバス  Bathroom ventilation dryer
浴室換気乾燥機
Toiletトイレ 
Receipt収納  Stairs ・ Bet under the storage space
階段・ベット下は収納スペース
Parking lot駐車場 
Otherその他  Electric stove
電気コンロ

 Folding table
折りたたみ式のテーブル
 With a full-length mirror
全身鏡付き

Location
|