1993March
57,000 yen, 2DK, 1st floor / Three-story, 44 sq m
Rentals » Kanto » Saitama Prefecture » Kawaguchi city
 
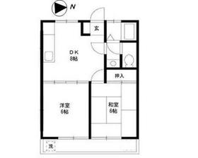
| Railroad-station 沿線・駅 | | JR Musashino Line / Higashikawaguchi JR武蔵野線/東川口 | Address 住所 | | Kawaguchi City Prefecture Tozukahigashi 3 埼玉県川口市戸塚東3 | Walk 徒歩 | | 17 minutes 17分 | Rent 賃料 | | 57,000 yen 5.7万円 | Management expenses 管理費・共益費 | | 3000 yen 3000円 | Security deposit 敷金 | | 57,000 yen 5.7万円 | Floor plan 間取り | | 2DK 2DK | Occupied area 専有面積 | | 44 sq m 44m2 | Direction 向き | | East 東 | Type 種別 | | Mansion マンション | Year Built 築年 | | Built 21 years 築21年 | | Washbasin bus toilet by 2 Station available Mansion 洗面台バストイレ別2駅利用可能マンション |
| Until the Seven-Eleven 184m Tozukahigashi Elementary School 448m セブンイレブンまで184m戸塚東小学校448m |
| Bus toilet by, balcony, Gas stove correspondence, Flooring, Shoe box, Dressing room, Seperate, Immediate Available, Key money unnecessary, Deposit 1 month, Window in the kitchen, Free Rent バストイレ別、バルコニー、ガスコンロ対応、フローリング、シューズボックス、脱衣所、洗面所独立、即入居可、礼金不要、敷金1ヶ月、キッチンに窓、フリーレント |
Property name 物件名 | | Rental housing of Kawaguchi City Prefecture Tozukahigashi 3 Higashi-Kawaguchi Station [Rental apartment ・ Apartment] information Property Details 埼玉県川口市戸塚東3 東川口駅の賃貸住宅[賃貸マンション・アパート]情報 物件詳細 | Transportation facilities 交通機関 | | JR Musashino Line / Higashikawaguchi walk 17 minutes Saitama high-speed rail / Angyo Totsuka walk 20 minutes Saitama high-speed rail / Araijuku walk 48 minutes JR武蔵野線/東川口 歩17分 埼玉高速鉄道/戸塚安行 歩20分 埼玉高速鉄道/新井宿 歩48分
| Floor plan details 間取り詳細 | | Sum 6 Hiroshi 6 DK8 和6 洋6 DK8 | Construction 構造 | | Steel frame 鉄骨 | Story 階建 | | 1st floor / Three-story 1階/3階建 | Built years 築年月 | | March 1993 1993年3月 | Nonlife insurance 損保 | | The main 要 | Move-in 入居 | | Immediately 即 | Trade aspect 取引態様 | | Mediation 仲介 | Conditions 条件 | | Free rent for one month フリーレント1ヶ月 | Property code 取り扱い店舗物件コード | | 1475202 1475202 | Total units 総戸数 | | 9 units 9戸 | Guarantor agency 保証人代行 | | Guarantee company use 必 rent guarantee usage fee Only the first time plan (80% of the monthly rent) 保証会社利用必 家賃保証利用料 初回のみプラン(月額賃料の80%) | Other expenses ほか諸費用 | | Rent account transfer fee of 100 yen 家賃口座振替手数料100円 | Remarks 備考 | | 184m to Seven-Eleven / Private Totsuka to nursery 320m / Washbasin bus toilet by 2 Station available Mansion セブンイレブンまで184m/私立戸塚保育所まで320m/洗面台バストイレ別2駅利用可能マンション |
Building appearance建物外観 
Living and room居室・リビング 
 There are six Pledge Japanese-style room
和室6帖あり
 There are six Pledge Japanese-style room
和室6帖あり
 Yes closet Yes upper closet
押入れあり天袋あり
 Western-style 6 Pledge
洋室6帖
Kitchenキッチン  Kitchen gas stove can be installed
キッチンガスコンロ設置可能
Bathバス  You can bath window there ventilation
お風呂窓有り換気が出来ます
Toiletトイレ  Toilet
トイレ
Washroom洗面所  There washbasin independent
独立洗面台あり
Location
|