1991April
46,000 yen, 1K, Second floor / 2-story, 23 sq m
Rentals » Kanto » Saitama Prefecture » Kawaguchi city
 
| Railroad-station 沿線・駅 | | JR Musashino Line / Higashikawaguchi JR武蔵野線/東川口 | Address 住所 | | Kawaguchi City Prefecture Tozukahigashi 1 埼玉県川口市戸塚東1 | Walk 徒歩 | | 10 minutes 10分 | Rent 賃料 | | 46,000 yen 4.6万円 | Management expenses 管理費・共益費 | | 3000 yen 3000円 | Security deposit 敷金 | | 92,000 yen 9.2万円 | Floor plan 間取り | | 1K 1K | Occupied area 専有面積 | | 23 sq m 23m2 | Direction 向き | | South 南 | Type 種別 | | Apartment アパート | Year Built 築年 | | Built 23 years 築23年 | | Bus toilet by, Gas stove correspondence, Flooring, Facing south, Immediate Available, Key money unnecessary, Deposit 2 months, Within a 10-minute walk station バストイレ別、ガスコンロ対応、フローリング、南向き、即入居可、礼金不要、敷金2ヶ月、駅徒歩10分以内 |
Property name 物件名 | | Rental housing of Kawaguchi City Prefecture Tozukahigashi 1 Higashi-Kawaguchi Station [Rental apartment ・ Apartment] information Property Details 埼玉県川口市戸塚東1 東川口駅の賃貸住宅[賃貸マンション・アパート]情報 物件詳細 | Transportation facilities 交通機関 | | JR Musashino Line / Higashikawaguchi walk 10 minutes Saitama high-speed rail / Angyo Totsuka walk 29 minutes Saitama high-speed rail / Urawa Misono walk 43 minutes JR武蔵野線/東川口 歩10分 埼玉高速鉄道/戸塚安行 歩29分 埼玉高速鉄道/浦和美園 歩43分
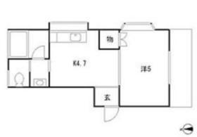
| Floor plan details 間取り詳細 | | Hiroshi 5 K4.7 洋5 K4.7 | Construction 構造 | | Wooden 木造 | Story 階建 | | Second floor / 2-story 2階/2階建 | Built years 築年月 | | April 1991 1991年4月 | Nonlife insurance 損保 | | The main 要 | Move-in 入居 | | Immediately 即 | Trade aspect 取引態様 | | Mediation 仲介 | Property code 取り扱い店舗物件コード | | 1318491 1318491 | Guarantor agency 保証人代行 | | Guarantee company use 必 rent guarantee usage fee Only the first time plan (80% of the monthly rent) 保証会社利用必 家賃保証利用料 初回のみプラン(月額賃料の80%) | Remarks 備考 | | Precious Western 1DK ・ Air-conditioned 貴重な洋室1DK・エアコン付 |
Building appearance建物外観 
Living and room居室・リビング 
 Good day with a large bay window
大きな出窓で日当たり良好
Kitchenキッチン  Cooking is easy system Kitchen
調理しやすいシステムキッチン
Bathバス  It is a simple bathroom
シンプルな浴室です
Washroom洗面所  Functional wash basin
機能的な洗面台
Location
|