1980
85,000 yen, 5DK, 2-story, 104.1 sq m
Rentals » Kanto » Saitama Prefecture » Kawaguchi city
 
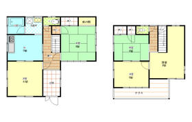
| Railroad-station 沿線・駅 | | Saitama high-speed rail / Araijuku 埼玉高速鉄道/新井宿 | Address 住所 | | Kawaguchi City Prefecture, Oaza Angyoryoke 埼玉県川口市大字安行領家 | Walk 徒歩 | | 26 minutes 26分 | Rent 賃料 | | 85,000 yen 8.5万円 | Management expenses 管理費・共益費 | | 5000 Yen 5000円 | Security deposit 敷金 | | 85,000 yen 8.5万円 | Floor plan 間取り | | 5DK 5DK | Occupied area 専有面積 | | 104.1 sq m 104.1m2 | Direction 向き | | South 南 | Type 種別 | | Residential home 一戸建て | Year Built 築年 | | Built 34 years 築34年 | | Kids Room 3 rooms available! Two if light OK! 子供部屋3室可能!軽なら2台OK! |
| balcony, Facing south, Immediate Available, A quiet residential area, Bike shelter, Leafy residential area, Carport, Flat terrain, Located on a hill, The area occupied 30 square meters or moreese-style room 8 tatami mats or more バルコニー、南向き、即入居可、閑静な住宅地、バイク置場、緑豊かな住宅地、カーポート、平坦地、高台に立地、専有面積30坪以上、和室8畳以上 |
Property name 物件名 | | Rental housing of Kawaguchi City Prefecture, Oaza Angyoryoke Araijuku Station [Rental apartment ・ Apartment] information Property Details 埼玉県川口市大字安行領家 新井宿駅の賃貸住宅[賃貸マンション・アパート]情報 物件詳細 | Transportation facilities 交通機関 | | Saitama high-speed rail / Araijuku walk 26 minutes Saitama high-speed rail / Angyo Totsuka walk 26 minutes 埼玉高速鉄道/新井宿 歩26分 埼玉高速鉄道/戸塚安行 歩26分
| Floor plan details 間取り詳細 | | Sum 8 sum 6 Hiroshi 9 Hiroshi 8 Hiroshi 6 DK6 和8 和6 洋9 洋8 洋6 DK6 | Construction 構造 | | Wooden 木造 | Story 階建 | | 2-story 2階建 | Built years 築年月 | | 1980 March 1980年3月 | Nonlife insurance 損保 | | The main 要 | Parking lot 駐車場 | | Free with 付無料 | Move-in 入居 | | Immediately 即 | Trade aspect 取引態様 | | Agency 代理 | Balcony area バルコニー面積 | | 10 sq m 10m2 | Remarks 備考 | | Reform: in September 2013 exterior リフォーム:2013年9月内外装 | Area information 周辺情報 | | Maruetsu Angyojirin store up to (super) up to 1026m Seiyu Kawaguchi Red Mount store (supermarket) to 1519m Seven-Eleven Kawaguchi Angyojirin Kitamise (convenience store) up to 766m Matsumotokiyoshi drugstore Seiyu Kawaguchi Red Mount store (drugstore) to 1425m Kawaguchi Municipal Angyo junior high school (junior high school) マルエツ安行慈林店(スーパー)まで1026m西友川口赤山店(スーパー)まで1519mセブンイレブン川口安行慈林北店(コンビニ)まで766mマツモトキヨシドラッグストア西友川口赤山店(ドラッグストア)まで1425m川口市立安行中学校(中学校)まで1296m |
Building appearance建物外観 
Bathバス 

Toiletトイレ 
Other room spaceその他部屋・スペース 

Washroom洗面所 
Entrance玄関 

Supermarketスーパー  Maruetsu Angyojirin store up to (super) 1026m
マルエツ安行慈林店(スーパー)まで1026m
 Seiyu Kawaguchi Red Mount store up to (super) 1519m
西友川口赤山店(スーパー)まで1519m
Location
|