1995September
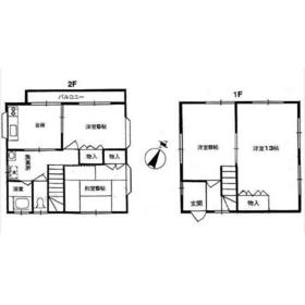
110,000 yen, 4DK, 2-story, 86.62 sq m
Rentals » Kanto » Saitama Prefecture » Kawaguchi city

| Railroad-station 沿線・駅 | | JR Musashino Line / Higashikawaguchi JR武蔵野線/東川口 | Address 住所 | | Saitama Prefecture, Kawaguchi City Totsuka 3 埼玉県川口市戸塚3 | Walk 徒歩 | | 10 minutes 10分 | Rent 賃料 | | 110,000 yen 11万円 | Key money 礼金 | | 220,000 yen 22万円 | Security deposit 敷金 | | 220,000 yen 22万円 | Floor plan 間取り | | 4DK 4DK | Occupied area 専有面積 | | 86.62 sq m 86.62m2 | Type 種別 | | Residential home 一戸建て | Year Built 築年 | | Built 19 years 築19年 | | Higashikawaguchi detached houses for rent 4DK. Good is per yang. 東川口戸建貸家4DK。陽当り良好です。 |
| Renovation completed. Totsuka Elementary School 2-minute walk. リフォーム済。戸塚小学校徒歩2分。 |
| Bus toilet by, balcony, Air conditioning, Indoor laundry location, Shoe box, System kitchen, Seperate, closet, Immediate Available, With lighting, 2 wayside Available, Shutter, 3 station more accessible, Within a 10-minute walk station, The area occupied 25 square meters or more バストイレ別、バルコニー、エアコン、室内洗濯置、シューズボックス、システムキッチン、洗面所独立、押入、即入居可、照明付、2沿線利用可、雨戸、3駅以上利用可、駅徒歩10分以内、専有面積25坪以上 |
Property name 物件名 | | Rental housing Prefecture, Kawaguchi City Totsuka 3 Higashi-Kawaguchi Station [Rental apartment ・ Apartment] information Property Details 埼玉県川口市戸塚3 東川口駅の賃貸住宅[賃貸マンション・アパート]情報 物件詳細 | Transportation facilities 交通機関 | | JR Musashino Line / Higashikawaguchi walk 10 minutes Saitama high-speed rail / Angyo Totsuka walk 16 minutes Saitama high-speed rail / Araijuku walk 48 minutes JR武蔵野線/東川口 歩10分 埼玉高速鉄道/戸塚安行 歩16分 埼玉高速鉄道/新井宿 歩48分
| Floor plan details 間取り詳細 | | Sum 6 Hiroshi 13 Hiroshi 8 Hiroshi 6 和6 洋13 洋8 洋6 | Construction 構造 | | Wooden 木造 | Story 階建 | | 2-story 2階建 | Built years 築年月 | | September 1995 1995年9月 | Nonlife insurance 損保 | | The main 要 | Parking lot 駐車場 | | Neighborhood 100m8400 yen 近隣100m8400円 | Move-in 入居 | | Immediately 即 | Trade aspect 取引態様 | | Mediation 仲介 | Property code 取り扱い店舗物件コード | | 21741061 21741061 | Intermediate fee 仲介手数料 | | 115,500 yen 11.55万円 | Remarks 備考 | | There is also a child-rearing living environment is a good park near. 近くに公園もあり子育て住環境良いです。 | Area information 周辺情報 | | Totsuka to elementary school (elementary school) 160m 戸塚小学校(小学校)まで160m |

Location
|