1998February
42,000 yen, 1K, Second floor / Three-story, 23.18 sq m
Rentals » Kanto » Saitama » Konosu
 
| Railroad-station 沿線・駅 | | JR Takasaki Line / Fukiage JR高崎線/吹上 | Address 住所 | | Saitama Prefecture Konosu Owashi 埼玉県鴻巣市大芦 | Walk 徒歩 | | 15 minutes 15分 | Rent 賃料 | | 42,000 yen 4.2万円 | Management expenses 管理費・共益費 | | 8000 yen 8000円 | Key money 礼金 | | 42,000 yen 4.2万円 | Floor plan 間取り | | 1K 1K | Occupied area 専有面積 | | 23.18 sq m 23.18m2 | Type 種別 | | Mansion マンション | Year Built 築年 | | Built 17 years 築17年 | | Leo Palace BIG REED レオパレスBIG REED |
| Unnecessary brokerage fees 仲介手数料不要 |
| Basic cleaning fee (at the time of leaving) 1K25500 yen (furniture ・ Consumer electronics with room for additional 3000 yen) ※ Tax not included 基本清掃料(退室時)1K25500円(家具・家電付の部屋は3000円追加)※税別 |
| Bus toilet by, balcony, Air conditioning, Indoor laundry location, Optical fiber, Immediate Available, Electric stove, Unnecessary brokerage fees, trunk room, With consumer electronics, Furnished バストイレ別、バルコニー、エアコン、室内洗濯置、光ファイバー、即入居可、電気コンロ、仲介手数料不要、トランクルーム、家電付、家具付 |
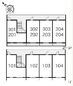
Property name 物件名 | | Rental housing Prefecture Konosu Owashi Fukiage Station [Rental apartment ・ Apartment] information Property Details 埼玉県鴻巣市大芦 吹上駅の賃貸住宅[賃貸マンション・アパート]情報 物件詳細 | Transportation facilities 交通機関 | | JR Takasaki Line / Ayumi Fukiage 15 minutes JR Takasaki Line / Kounosu car 21 minutes from the train station (8.4km) JR Takasaki Line / North Ayumi Kounosu 37 minutes JR高崎線/吹上 歩15分 JR高崎線/鴻巣 駅より車21分(8.4km) JR高崎線/北鴻巣 歩37分
| Construction 構造 | | Steel frame 鉄骨 | Story 階建 | | Second floor / Three-story 2階/3階建 | Built years 築年月 | | February 1998 1998年2月 | Nonlife insurance 損保 | | The main 要 | Parking lot 駐車場 | | On-site 4300 yen 敷地内4300円 | Move-in 入居 | | Immediately 即 | Trade aspect 取引態様 | | Lender 貸主 | Property code 取り扱い店舗物件コード | | 10866-203 10866-203 | Total units 総戸数 | | 12 units 12戸 | Intermediate fee 仲介手数料 | | Unnecessary 不要 | Guarantor agency 保証人代行 | | Guarantee company use 必 guarantee fee: 100 by 60,590 yen (contract ~ Fluctuations have at 120%) ※ The amounts in the case of 120% 保証会社利用必 保証料:60590円(契約内容により100 ~ 120%で変動有)※記載金額は120%の場合 | In addition ほか初期費用 | | Total 25,800 yen (Breakdown: The key exchange costs 9496 yen, Antibacterial construction (Optional) ¥ 16400 (excluding tax)) 合計2.58万円(内訳:鍵交換費9496円、抗菌施工(任意)16400円(税別)) | Other expenses ほか諸費用 | | Environmental maintenance costs 496 yen / Month, Renewal fees 15000 yen / 2 years (excluding tax) 環境維持費496円/月、更新手数料15000円/2年(税別) | Area information 周辺情報 | | FOOD OFF stocker Fukiage store (supermarket) to 1113m MINISTOP Fukiage Fujimi store (convenience store) up to 582m cedar drag racing Fujimi store (drugstore) to 1025m Joshin Kounosu store (hardware store) to 2032m Lotteria Apita Fukiage FS shop (restaurant) to 1886m Saitama Resona FOOD OFFストッカー吹上店(スーパー)まで1113mミニストップ吹上富士見店(コンビニ)まで582mスギドラッグ吹上富士見店(ドラッグストア)まで1025mジョーシン鴻巣店(ホームセンター)まで2032mロッテリアアピタ吹上FS店(飲食店)まで1886m埼玉りそな銀行吹上支店(銀行)まで1431m |
Building appearance建物外観 
Living and room居室・リビング 
 ※ 1F is, Flooring
※1Fは、フローリング仕様
 By room, There is the case that furniture does not have.
部屋により、家具が付いていない場合がございます。
Kitchenキッチン  Electric stove, There are two-neck.
電気コンロが、2口あります。
Bathバス 
Toiletトイレ 
Receipt収納 
Securityセキュリティ  Home security is also attached.
ホームセキュリティも付いています。
Other Equipmentその他設備  microwave, Also it comes with a refrigerator.
電子レンジ、冷蔵庫も付いています。
Otherその他 



Location
|