|
Railroad-station 沿線・駅 | | JR Utsunomiya Line / Kuki JR宇都宮線/久喜 |
Address 住所 | | Saitama Prefecture Kuki Kuki center 1 埼玉県久喜市久喜中央1 |
Walk 徒歩 | | 5 minutes 5分 |
Rent 賃料 | | 69,400 yen 6.94万円 |
Management expenses 管理費・共益費 | | 4070 yen 4070円 |
Security deposit 敷金 | | 138,800 yen 13.88万円 |
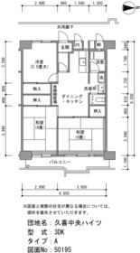
Floor plan 間取り | | 3DK 3DK |
Occupied area 専有面積 | | 59 sq m 59m2 |
Direction 向き | | East 東 |
Type 種別 | | Mansion マンション |
Year Built 築年 | | Built 35 years 築35年 |
|
UR Kuki Central Heights 1 Building
UR久喜中央ハイツ1号棟
|
|
UR rent, key money, Intermediate fee, Renewal fee, Guarantor unnecessary!
UR賃貸は、礼金、仲介手数料、更新料、保証人不要!
|
|
The room looking in Campaign! 6-minute walk from the access preeminent Kuki Station to the city center! Large supermarket in the surrounding area ・ convenience store ・ Enhancement Other dining options! We can increasingly expect to grow in the future in KenHisashimichi Inter completed. You can also split payment in the deposit two months.
お部屋探しキャンペーン実施中!都心へのアクセス抜群な久喜駅から徒歩6分!周辺には大型スーパー・コンビニ・飲食店も充実!圏央道インターの完成で今後の成長が益々期待できます。敷金2カ月で分割払もできます。
|
|
Bus toilet by, balcony, Indoor laundry location, Add-fired function bathroom, Elevator, Bathroom vanity, Bicycle-parking space, Key money unnecessary, Guarantor unnecessary, Unnecessary brokerage fees, 2 wayside Available, Flat to the station, Earthquake-resistant structure, Within a 5-minute walk station, On-site trash Storage, Day shift managementese-style room, BS
バストイレ別、バルコニー、室内洗濯置、追焚機能浴室、エレベーター、洗面化粧台、駐輪場、礼金不要、保証人不要、仲介手数料不要、2沿線利用可、駅まで平坦、耐震構造、駅徒歩5分以内、敷地内ごみ置き場、日勤管理、和室、BS
|
Property name 物件名 | | Rental housing Prefecture Kuki Kuki Central 1 Kuki Station [Rental apartment ・ Apartment] information Property Details 埼玉県久喜市久喜中央1 久喜駅の賃貸住宅[賃貸マンション・アパート]情報 物件詳細 |
Transportation facilities 交通機関 | | JR Utsunomiya Line / Kuki walk 5 minutes JR宇都宮線/久喜 歩5分
|
Floor plan details 間取り詳細 | | Sum 6 sum 6 Hiroshi 5.5 DK6 和6 和6 洋5.5 DK6 |
Construction 構造 | | Steel rebar 鉄骨鉄筋 |
Story 階建 | | 4th floor / 5-story 4階/5階建 |
Built years 築年月 | | August 1979 1979年8月 |
Parking lot 駐車場 | | On-site 7770 yen 敷地内7770円 |
Move-in 入居 | | Consultation 相談 |
Trade aspect 取引態様 | | Lender 貸主 |
Intermediate fee 仲介手数料 | | Unnecessary 不要 |
Remarks 備考 | | Commuting management 通勤管理 |
Area information 周辺情報 | | Cookies Plaza (shopping center) to 376m Ito-Yokado Kuki store (supermarket) up to 589m kawachii chemicals Kuki store (drugstore) to 677m Kuki City Honcho elementary school (elementary school) up to 1569m Kuki City center nursery school (kindergarten ・ 100m to nursery school) Mizuho 366m to Bank Kuki Branch (Bank) クッキープラザ(ショッピングセンター)まで376mイトーヨーカドー久喜店(スーパー)まで589mカワチ薬品久喜店(ドラッグストア)まで677m久喜市立本町小学校(小学校)まで1569m久喜市立中央保育園(幼稚園・保育園)まで100mみずほ銀行久喜支店(銀行)まで366m |