|
Railroad-station 沿線・駅 | | JR Takasaki Line / Kumagai JR高崎線/熊谷 |
Address 住所 | | Kumagaya Prefecture, Tsukuba 2 埼玉県熊谷市筑波2 |
Walk 徒歩 | | 2 min 2分 |
Rent 賃料 | | 135,000 yen 13.5万円 |
Management expenses 管理費・共益費 | | 6000 yen 6000円 |
Key money 礼金 | | 135,000 yen 13.5万円 |
Security deposit 敷金 | | 270,000 yen 27万円 |
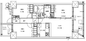
Floor plan 間取り | | 3LDK 3LDK |
Occupied area 専有面積 | | 68.2 sq m 68.2m2 |
Direction 向き | | South 南 |
Type 種別 | | Mansion マンション |
Year Built 築年 | | New construction 新築 |
|
Air conditioning ・ System kitchen ・ auto lock ・ Gas stove
エアコン・システムキッチン・オートロック・ガスコンロ
|
|
Thermos bathtub, Add-fired, Bathroom Dryer, City gas, Delivery Box
魔法瓶浴槽、追焚、浴室乾燥機、都市ガス、宅配ボックス
|
|
Bus toilet by, balcony, Air conditioning, closet, Flooring, Washbasin with shower, TV interphone, Bathroom Dryer, auto lock, Indoor laundry location, Yang per good, Shoe box, System kitchen, Facing south, Add-fired function bathroom, Corner dwelling unit, Warm water washing toilet seat, Elevator, Seperate, Bathroom vanity, Bicycle-parking space, Optical fiber, 3-neck over stove, Otobasu, Southwest angle dwelling unit, Dimple key, Good view, Double lock key, Closet 3 places, Fireproof structure, Earthquake-resistant structure, 2 Station Available, 3 along the line more accessible, Within a 5-minute walk station, Kazejo room, On-site trash Storage, LDK12 tatami mats or more, Ventilation good
バストイレ別、バルコニー、エアコン、クロゼット、フローリング、シャワー付洗面台、TVインターホン、浴室乾燥機、オートロック、室内洗濯置、陽当り良好、シューズボックス、システムキッチン、南向き、追焚機能浴室、角住戸、温水洗浄便座、エレベーター、洗面所独立、洗面化粧台、駐輪場、光ファイバー、3口以上コンロ、オートバス、南西角住戸、ディンプルキー、眺望良好、ダブルロックキー、クロゼット3ヶ所、耐火構造、耐震構造、2駅利用可、3沿線以上利用可、駅徒歩5分以内、風除室、敷地内ごみ置き場、LDK12畳以上、通風良好
|
Property name 物件名 | | Rental housing of Kumagaya Prefecture, Tsukuba 2 Kumagaya Station [Rental apartment ・ Apartment] information Property Details 埼玉県熊谷市筑波2 熊谷駅の賃貸住宅[賃貸マンション・アパート]情報 物件詳細 |
Transportation facilities 交通機関 | | JR Takasaki Line / Ayumi Kumagai 2 minutes Chichibu / Kamigumatani walk 12 minutes JR Takasaki Line / Kagohara 18-minute drive from the Railway Station (7.4km) JR高崎線/熊谷 歩2分 秩父鉄道/上熊谷 歩12分 JR高崎線/籠原 駅より車18分(7.4km)
|
Floor plan details 間取り詳細 | | Hiroshi 6.4 Hiroshi 5.5 Hiroshi 5 LD10.5K3.4 洋6.4 洋5.5 洋5 LD10.5K3.4 |
Construction 構造 | | Rebar Con 鉄筋コン |
Story 階建 | | 13th floor / 15-storey 13階/15階建 |
Built years 築年月 | | New construction in February 2014 新築 2014年2月 |
Nonlife insurance 損保 | | 15,000 yen two years 1.5万円2年 |
Parking lot 駐車場 | | Neighborhood 10m15000 yen 近隣10m15000円 |
Move-in 入居 | | Immediately 即 |
Trade aspect 取引態様 | | Lender 貸主 |
Conditions 条件 | | Single person Allowed / Two people Available / Children Allowed 単身者可/二人入居可/子供可 |
Remarks 備考 | | Until AS Kumagai 133m / 155m until Lawson Kumagaya Station North shop / "Jewel Court Kumagai II" ・ Kumagaya Station 2 minutes newly built high-grade condominiums アズ熊谷まで133m/ローソン熊谷駅北口店まで155m/「ジュエルコート熊谷II」・熊谷駅2分新築ハイグレードマンショ |
Area information 周辺情報 | | 133m Tiara 21 to AS Kumagai (shopping center) (shopping center) to 263m Yaoko Co., Ltd. Kumagai Nitto mall store (supermarket) up to 453m Lawson Kumagaya Station North store (convenience store) up to 760m Municipal Kumagai library Kumagaya Station to 155m Kumagai post office (post office) アズ熊谷(ショッピングセンター)まで133mティアラ21(ショッピングセンター)まで263mヤオコー熊谷ニットーモール店(スーパー)まで453mローソン熊谷駅北口店(コンビニ)まで155m熊谷郵便局(郵便局)まで760m市立熊谷図書館熊谷駅前分室(図書館)まで196m |