1984March
65,000 yen, 4DK, 2-story, 78.5 sq m
Rentals » Kanto » Saitama » Minami-Saitama District
 
| Railroad-station 沿線・駅 | | Tobu Isesaki Line / Tobudobutsukoen 東武伊勢崎線/東武動物公園 | Address 住所 | | Saitama Prefecture Minami-Saitama District Miyashiro-cho Oaza Suga 埼玉県南埼玉郡宮代町大字須賀 | Walk 徒歩 | | 25 minutes 25分 | Rent 賃料 | | 65,000 yen 6.5万円 | Security deposit 敷金 | | 130,000 yen 13万円 | Floor plan 間取り | | 4DK 4DK | Occupied area 専有面積 | | 78.5 sq m 78.5m2 | Direction 向き | | South 南 | Type 種別 | | Residential home 一戸建て | Year Built 築年 | | 30 years old 築30年 | | Hirai rental 平井貸家 |
| Facing south, closet, Immediate Available, A quiet residential area, Pets Negotiable, Interior renovation completed, Deposit 2 months, Window in washroom 南向き、押入、即入居可、閑静な住宅地、ペット相談、内装リフォーム済、敷金2ヶ月、洗面所に窓 |
Property name 物件名 | | Rental housing Prefecture Minami-Saitama District Miyashiro-cho Oaza Suga Tobudobutsukoen [Rental apartment ・ Apartment] information Property Details 埼玉県南埼玉郡宮代町大字須賀 東武動物公園駅の賃貸住宅[賃貸マンション・アパート]情報 物件詳細 | Transportation facilities 交通機関 | | Tobu Isesaki Line / Tobudobutsukoen walk 25 minutes 東武伊勢崎線/東武動物公園 歩25分
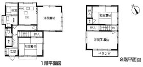
| Floor plan details 間取り詳細 | | Sum 6 sum 6 Hiroshi 8 Hiroshi 7.5 和6 和6 洋8 洋7.5 | Construction 構造 | | Wooden 木造 | Story 階建 | | 2-story 2階建 | Built years 築年月 | | March 1984 1984年3月 | Nonlife insurance 損保 | | 20,000 yen two years 2万円2年 | Parking lot 駐車場 | | Free with 付無料 | Move-in 入居 | | Immediately 即 | Trade aspect 取引態様 | | Mediation 仲介 | Conditions 条件 | | Pets Negotiable ペット相談 | Deposit buildup 敷金積み増し | | In the case of pet breeding deposit 1 month (gross) ペット飼育の場合敷金1ヶ月(総額) | Remarks 備考 | | Not tenants / Reform: August Western-style kitchen 未入居/リフォーム:8月洋室 キッチン |
Building appearance建物外観 
Living and room居室・リビング 
 Sunny
日当たり良好
Kitchenキッチン  Spacious kitchen!
広々キッチン!
 Second floor Japanese-style room
2階和室
Bathバス 
Other room spaceその他部屋・スペース  2 Kaiyoshitsu
2階洋室
 First floor Japanese-style room
1階和室
Washroom洗面所 

View眺望 
Otherその他 
Location
|