|
Railroad-station 沿線・駅 | | JR Musashino Line / Misato JR武蔵野線/三郷 |
Address 住所 | | Misato City Prefecture Waseda 7 埼玉県三郷市早稲田7 |
Walk 徒歩 | | 17 minutes 17分 |
Rent 賃料 | | 94,200 yen 9.42万円 |
Management expenses 管理費・共益費 | | 2740 yen 2740円 |
Security deposit 敷金 | | 188,400 yen 18.84万円 |
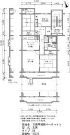
Floor plan 間取り | | 3LDK 3LDK |
Occupied area 専有面積 | | 88.53 sq m 88.53m2 |
Direction 向き | | South 南 |
Type 種別 | | Mansion マンション |
Year Built 築年 | | Built 29 years 築29年 |
|
UR Misato Waseda Park Heights 7-9-2
UR三郷早稲田パークハイツ7-9-2
|
|
UR rental housing, key money, Intermediate fee, Renewal fee, Guarantor unnecessary!
UR賃貸住宅は、礼金、仲介手数料、更新料、保証人不要!
|
|
balcony, Yang per good, Facing south, Bicycle-parking space, CATV, Optical fiber, Key money unnecessary, Unnecessary brokerage fees, Two-sided balcony, CS, Flat to the station, Leafy residential area, Good view, Deposit required, Flat terrain, Room share consultation, Readjustment land within, No upper floor, On-site trash Storage, Kitchen 5 tatami more, South balcony, BS, Ventilation good
バルコニー、陽当り良好、南向き、駐輪場、CATV、光ファイバー、礼金不要、仲介手数料不要、2面バルコニー、CS、駅まで平坦、緑豊かな住宅地、眺望良好、保証金不要、平坦地、ルームシェア相談、区画整理地内、上階無し、敷地内ごみ置き場、キッチン5畳以上、南面バルコニー、BS、通風良好
|
Property name 物件名 | | Rental housing of Misato City Prefecture Waseda 7 Misato Station [Rental apartment ・ Apartment] information Property Details 埼玉県三郷市早稲田7 三郷駅の賃貸住宅[賃貸マンション・アパート]情報 物件詳細 |
Transportation facilities 交通機関 | | JR Musashino Line / Misato walk 17 minutes JR武蔵野線/三郷 歩17分
|
Floor plan details 間取り詳細 | | Sum 8 sum 6 Hiroshi 4.5 LD10.5K6 和8 和6 洋4.5 LD10.5K6 |
Construction 構造 | | Rebar Con 鉄筋コン |
Story 階建 | | 3rd floor / 5-story 3階/5階建 |
Built years 築年月 | | December 1985 1985年12月 |
Move-in 入居 | | Consultation 相談 |
Trade aspect 取引態様 | | Lender 貸主 |
Conditions 条件 | | Single person Allowed / Two people Available / Children Allowed 単身者可/二人入居可/子供可 |
Balcony area バルコニー面積 | | 12.39 sq m 12.39m2 |
Intermediate fee 仲介手数料 | | Unnecessary 不要 |
Remarks 備考 | | Commuting management 通勤管理 |
Area information 周辺情報 | | Oh Mother food Museum Misato store (supermarket) up to 488m Inaho kindergarten up to 269m Misato Municipal Waseda junior high school (junior high school) 1604m Misato Municipal Tango elementary school (elementary school) (kindergarten ・ To nursery school) up to 232m Misato Municipal Waseda Library (library) 947m to 682m Waseda park (park) おっ母さん食品館三郷店(スーパー)まで269m三郷市立早稲田中学校(中学校)まで1604m三郷市立丹後小学校(小学校)まで488mいなほ幼稚園(幼稚園・保育園)まで232m三郷市立早稲田図書館(図書館)まで682m早稲田公園(公園)まで947m |