2004February
60,000 yen, One-room, 5th floor / 8-story, 24.17 sq m
Rentals » Kanto » Saitama » Niiza
 
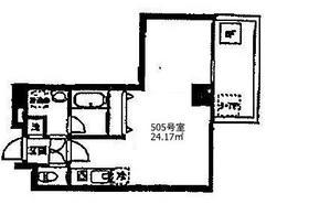
| Railroad-station 沿線・駅 | | Tobu Tojo Line / Shiki 東武東上線/志木 | Address 住所 | | Saitama Prefecture Niiza Tohoku 2 埼玉県新座市東北2 | Walk 徒歩 | | 5 minutes 5分 | Rent 賃料 | | 60,000 yen 6万円 | Management expenses 管理費・共益費 | | 5000 Yen 5000円 | Key money 礼金 | | 60,000 yen 6万円 | Security deposit 敷金 | | 60,000 yen 6万円 | Floor plan 間取り | | One-room ワンルーム | Occupied area 専有面積 | | 24.17 sq m 24.17m2 | Direction 向き | | Southeast 南東 | Type 種別 | | Mansion マンション | Year Built 築年 | | Built 11 years 築11年 | | The participation Mizuho Museum 第参みずほ館 |
| ◆ Shopping convenient station near auto lock 1K Mansion ◆ Your application being accepted ◆買物便利な駅近オートロック1Kマンション◆お申込受付中 |
| All-electric IH cooking heater auto lock Bidet TV monitor Hong オール電化 IHクッキングヒーター オートロック ウォシュレット TVモニターホン |
| Bus toilet by, balcony, Seperate, Immediate Available, Deposit 1 month, Within a 5-minute walk station, Southeast direction バストイレ別、バルコニー、洗面所独立、即入居可、敷金1ヶ月、駅徒歩5分以内、東南向き |
Property name 物件名 | | Rental housing Prefecture Niiza Tohoku 2 Shiki Station [Rental apartment ・ Apartment] information Property Details 埼玉県新座市東北2 志木駅の賃貸住宅[賃貸マンション・アパート]情報 物件詳細 | Transportation facilities 交通機関 | | Tobu Tojo Line / Shiki walk 5 minutes Tobu Tojo Line / Asakadai walk 19 minutes JR Musashino Line / Kitaasaka step 19 minutes 東武東上線/志木 歩5分 東武東上線/朝霞台 歩19分 JR武蔵野線/北朝霞 歩19分
| Construction 構造 | | Rebar Con 鉄筋コン | Story 階建 | | 5th floor / 8-story 5階/8階建 | Built years 築年月 | | February 2004 2004年2月 | Nonlife insurance 損保 | | The main 要 | Move-in 入居 | | Immediately 即 | Trade aspect 取引態様 | | Mediation 仲介 | Property code 取り扱い店舗物件コード | | 358622 358622 | Remarks 備考 | | EkiChika 1R is property ☆ 駅ちか1R物件です☆ |
Building appearance建物外観 

Location
|