|
Railroad-station 沿線・駅 | | JR Takasaki Line / Miyahara JR高崎線/宮原 |
Address 住所 | | Saitama city north district Nara 埼玉県さいたま市北区奈良町 |
Walk 徒歩 | | 10 minutes 10分 |
Rent 賃料 | | 120,000 yen 12万円 |
Key money 礼金 | | 120,000 yen 12万円 |
Security deposit 敷金 | | 120,000 yen 12万円 |
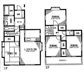
Floor plan 間取り | | 4LDK 4LDK |
Occupied area 専有面積 | | 95.64 sq m 95.64m2 |
Direction 向き | | South 南 |
Type 種別 | | Residential home 一戸建て |
Year Built 築年 | | Built 14 years 築14年 |
|
2012 year exterior renovation completed! Happy Miyahara Station a 10-minute walk!
平成24年内外装リフォーム済!うれしい宮原駅徒歩10分!
|
|
Musical Instruments consultation! Shinjuku ・ It is also useful to go to school commuting to Tokyo because it is through also Shonan Shinjuku line of direct to Shibuya!
楽器相談!新宿・渋谷まで直通の湘南新宿ラインも通っているため都内への通学通勤にも便利です!
|
|
Bus toilet by, balcony, Flooring, Indoor laundry location, Yang per good, System kitchen, Facing south, Warm water washing toilet seat, Seperate, Bathroom vanity, Immediate Available, Face-to-face kitchen, bay window, 2 wayside Available, The window in the bathroom, Musical Instruments consultation, Toilet 2 places, 2 Station Available, Within a 10-minute walk station, LDK12 tatami mats or more, Interior and exterior renovation after the pass
バストイレ別、バルコニー、フローリング、室内洗濯置、陽当り良好、システムキッチン、南向き、温水洗浄便座、洗面所独立、洗面化粧台、即入居可、対面式キッチン、出窓、2沿線利用可、浴室に窓、楽器相談、トイレ2ヶ所、2駅利用可、駅徒歩10分以内、LDK12畳以上、内外装リフォーム後渡
|
Property name 物件名 | | Rental housing of Saitama city north district Nara Miyahara Station [Rental apartment ・ Apartment] information Property Details 埼玉県さいたま市北区奈良町 宮原駅の賃貸住宅[賃貸マンション・アパート]情報 物件詳細 |
Transportation facilities 交通機関 | | JR Takasaki Line / Ayumi Miyahara 10 minutes JR Kawagoe Line / Nissin walk 21 minutes Saitama new urban transportation Inasen / East Ayumi Miyahara 26 minutes JR高崎線/宮原 歩10分 JR川越線/日進 歩21分 埼玉新都市交通伊奈線/東宮原 歩26分
|
Floor plan details 間取り詳細 | | Sum 6.7 Hiroshi 6 Hiroshi 6 Hiroshi 6 LDK13.7 和6.7 洋6 洋6 洋6 LDK13.7 |
Construction 構造 | | Wooden 木造 |
Story 階建 | | 1-2 floor / 2-story 1-2階/2階建 |
Built years 築年月 | | February 2001 2001年2月 |
Nonlife insurance 損保 | | The main 要 |
Parking lot 駐車場 | | Free with 付無料 |
Move-in 入居 | | Immediately 即 |
Trade aspect 取引態様 | | Mediation 仲介 |
Conditions 条件 | | Two people Available / Children Allowed / Musical Instruments consultation 二人入居可/子供可/楽器相談 |
Property code 取り扱い店舗物件コード | | 6698 6698 |
Remarks 備考 | | Renovation: 2012 end of the year outside the リフォーム:平成24年内外 |
Area information 周辺情報 | | Food Garden Miyahara Nishiguchi store (supermarket) up to 543m Seven-Eleven Omiya Nara Machiten (convenience store) up to 313m drag Seimusu Nara Machiten (drugstore) to 268m Saitama Municipal Nisshin north elementary school until the (elementary school) 658m Omiya Nissin three post office (post office) フードガーデン宮原西口店(スーパー)まで543mセブンイレブン大宮奈良町店(コンビニ)まで313mドラッグセイムス奈良町店(ドラッグストア)まで268mさいたま市立日進北小学校(小学校)まで658m大宮日進三郵便局(郵便局)まで602m三貫清水緑地(公園)まで153m |