|
Railroad-station 沿線・駅 | | JR Keihin Tohoku Line / Omiya JR京浜東北線/大宮 |
Address 住所 | | Saitama Omiya-ku Sakuragicho 2 埼玉県さいたま市大宮区桜木町2 |
Walk 徒歩 | | 7 minutes 7分 |
Rent 賃料 | | 110,000 yen 11万円 |
Key money 礼金 | | 110,000 yen 11万円 |
Security deposit 敷金 | | 220,000 yen 22万円 |
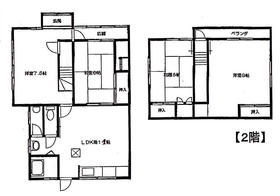
Floor plan 間取り | | 4LDK 4LDK |
Occupied area 専有面積 | | 91.8 sq m 91.8m2 |
Direction 向き | | South 南 |
Type 種別 | | Residential home 一戸建て |
Year Built 築年 | | Built 41 years 築41年 |
|
Pets Negotiable! Station near one detached of Omiya Station 7-minute walk! Good per sun.
ペット相談!大宮駅徒歩7分の駅近一戸建!陽当たり良好。
|
|
Share House consultation, Group Home Allowed, Child Care, etc. Allowed!
シェアハウス相談、グループホーム可、託児施設等可!
|
|
Bus toilet by, balcony, Air conditioning, Gas stove correspondence, Yang per good, Shoe box, Facing south, Two-burner stove, Immediate Available, Pets Negotiable, With lighting, Two air conditioning, Underfloor Storage, Office consultation, Musical Instruments consultation, Room share consultation, Starting station, 3 along the line more accessible, Within a 10-minute walk station, Window in washroom
バストイレ別、バルコニー、エアコン、ガスコンロ対応、陽当り良好、シューズボックス、南向き、2口コンロ、即入居可、ペット相談、照明付、エアコン2台、床下収納、事務所相談、楽器相談、ルームシェア相談、始発駅、3沿線以上利用可、駅徒歩10分以内、洗面所に窓
|
Property name 物件名 | | Rental housing Saitama Omiya-ku Sakuragicho 2 Omiya Station [Rental apartment ・ Apartment] information Property Details 埼玉県さいたま市大宮区桜木町2 大宮駅の賃貸住宅[賃貸マンション・アパート]情報 物件詳細 |
Transportation facilities 交通機関 | | JR Keihin Tohoku Line / Omiya walk 7 minutes Tobu Noda Line / Kitaomiya step 23 minutes Saitama new urban transportation Inasen / Railway Museum walk 21 minutes JR京浜東北線/大宮 歩7分 東武野田線/北大宮 歩23分 埼玉新都市交通伊奈線/鉄道博物館 歩21分
|
Floor plan details 間取り詳細 | | Sum 6 sum 6 Hiroshi 9 Hiroshi 7.5 LDK12 和6 和6 洋9 洋7.5 LDK12 |
Construction 構造 | | Wooden 木造 |
Story 階建 | | 1-2 floor / 2-story 1-2階/2階建 |
Built years 築年月 | | March 1973 1973年3月 |
Nonlife insurance 損保 | | The main 要 |
Parking lot 駐車場 | | Neighborhood 150m22000 yen / Chu two Allowed 近隣150m22000円/駐2台可 |
Move-in 入居 | | Immediately 即 |
Trade aspect 取引態様 | | Mediation 仲介 |
Conditions 条件 | | Single person Allowed / Two people Available / Children Allowed / Pets Negotiable / Musical Instruments consultation / Office use consultation / Room share consultation 単身者可/二人入居可/子供可/ペット相談/楽器相談/事務所利用相談/ルームシェア相談 |
Property code 取り扱い店舗物件コード | | 6696 6696 |
Fixed-term lease 定期借家 | | Fixed-term lease two years 定期借家 2年 |
Other expenses ほか諸費用 | | 8400 yen autonomy fee two years 自治会費2年で8400円 |
Area information 周辺情報 | | Omiya Sonic City (shopping center) to 319m Daiei Omiya (super) to 409mSTORE100 Omiya Sakuragicho store (convenience store) up to 17m drag Seimusu Omiya Sakuragi store (drugstore) to 94m Saitama Municipal Sakuragi elementary school (elementary school) up to 435m Kanetsuka park ( 大宮ソニックシティ(ショッピングセンター)まで319mダイエー大宮店(スーパー)まで409mSTORE100大宮桜木町店(コンビニ)まで17mドラッグセイムス大宮桜木店(ドラッグストア)まで94mさいたま市立桜木小学校(小学校)まで435m鐘塚公園(公園)まで378m |