1988April
34,000 yen, 1K, 1st floor / 2-story, 17.35 sq m
Rentals » Kanto » Saitama » Sakado
 
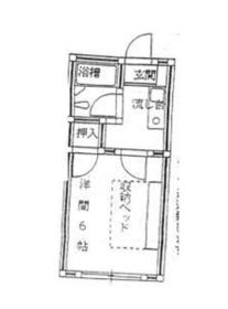
| Railroad-station 沿線・駅 | | Tobu Tojo Line / North Sakado 東武東上線/北坂戸 | Address 住所 | | Saitama Prefecture Sakado Motomachi 埼玉県坂戸市元町 | Walk 徒歩 | | 9 minutes 9分 | Rent 賃料 | | 34,000 yen 3.4万円 | Management expenses 管理費・共益費 | | 1000 yen 1000円 | Key money 礼金 | | 34,000 yen 3.4万円 | Security deposit 敷金 | | 34,000 yen 3.4万円 | Floor plan 間取り | | 1K 1K | Occupied area 専有面積 | | 17.35 sq m 17.35m2 | Type 種別 | | Apartment アパート | Year Built 築年 | | Built 26 years 築26年 | | Living environment favorable, Affordable amount of money, Perfect for the first time living alone. 住環境良好、手ごろな金額、初めての一人暮らしにピッタリ。 |
| Living environment favorable, Affordable amount of money, Perfect for the first time living alone. 住環境良好、手ごろな金額、初めての一人暮らしにピッタリ。 |
| Air conditioning, Flooring, Bicycle-parking space, Immediate Available, Deposit 1 month, Bike shelter, Within a 10-minute walk station エアコン、フローリング、駐輪場、即入居可、敷金1ヶ月、バイク置場、駅徒歩10分以内 |
Property name 物件名 | | Rental housing Prefecture Sakado Motomachi North Sakado Station [Rental apartment ・ Apartment] information Property Details 埼玉県坂戸市元町 北坂戸駅の賃貸住宅[賃貸マンション・アパート]情報 物件詳細 | Transportation facilities 交通機関 | | Tobu Tojo Line / North Sakado walk 9 minutes Tobu Tojo Line / Ayumi Sakado 18 minutes Tobu Tojo Line / Ayumi Wakaba 36 minutes 東武東上線/北坂戸 歩9分 東武東上線/坂戸 歩18分 東武東上線/若葉 歩36分
| Floor plan details 間取り詳細 | | Hiroshi 6 洋6 | Construction 構造 | | Wooden 木造 | Story 階建 | | 1st floor / 2-story 1階/2階建 | Built years 築年月 | | April 1988 1988年4月 | Move-in 入居 | | Immediately 即 | Trade aspect 取引態様 | | Mediation 仲介 | Property code 取り扱い店舗物件コード | | 6072322 6072322 | Remarks 備考 | | Sakado 213m to nursery school / Sakado Municipal Sakado until elementary school 310m / Patrol management / In addition to this Thank numerous properties that are not posted on the Internet. 坂戸保育園まで213m/坂戸市立坂戸小学校まで310m/巡回管理/この他にもインターネットに掲載していない物件多数ございます。 | Area information 周辺情報 | | Gust (other) 350m to 250m MaruHiro (shopping center) to ガスト(その他)まで250m丸広(ショッピングセンター)まで350m |
Building appearance建物外観 
Living and room居室・リビング 

Kitchenキッチン 

Bathバス 
Toiletトイレ 
Receipt収納 
Entrance玄関 
Other common areasその他共有部分 
Shopping centreショッピングセンター  MaruHiro (shopping center) to 350m
丸広(ショッピングセンター)まで350m
Otherその他 
 250m until the gust (Other)
ガスト(その他)まで250m
Location
|