Rentals » Kanto » Saitama » Sayama
 
| Railroad-station 沿線・駅 | | Seibu Shinjuku Line / Sayama 西武新宿線/狭山市 | Address 住所 | | Saitama Prefecture Sayama Fujimi 2 埼玉県狭山市富士見2 | Walk 徒歩 | | 19 minutes 19分 | Rent 賃料 | | 120,000 yen 12万円 | Key money 礼金 | | 120,000 yen 12万円 | Security deposit 敷金 | | 240,000 yen 24万円 | Floor plan 間取り | | 3LDK 3LDK | Occupied area 専有面積 | | 134.87 sq m 134.87m2 | Direction 向き | | Southeast 南東 | Type 種別 | | Residential home 一戸建て | Year Built 築年 | | Built 16 years 築16年 | | ☆ Nagai rental ☆永井貸家 |
| Large 3LDK rental 大型3LDK貸家 |
| Fixed-term lease rights contract five years (re-contract Negotiable) Parking with one 定期借家権契約5年(再契約応相談) 駐車場1台付 |
| Bus toilet by, balcony, closet, Indoor laundry location, Shoe box, System kitchen, Add-fired function bathroom, Seperate, closet, Immediate Available, 3-neck over stove, Parking one free, Private garden, LDK15 tatami mats or more, The window in the bathroom, Musical Instruments consultation, Toilet 2 places, The area occupied 30 square meters or more, Southeast direction, Our managed propertiesese-style room 8 tatami mats or more, All room 6 tatami mats or more, Back door, City gas バストイレ別、バルコニー、クロゼット、室内洗濯置、シューズボックス、システムキッチン、追焚機能浴室、洗面所独立、押入、即入居可、3口以上コンロ、駐車場1台無料、専用庭、LDK15畳以上、浴室に窓、楽器相談、トイレ2ヶ所、専有面積30坪以上、東南向き、当社管理物件、和室8畳以上、全居室6畳以上、勝手口、都市ガス |
Property name 物件名 | | Rental housing Prefecture Sayama Fujimi 2 Sayama Station [Rental apartment ・ Apartment] information Property Details 埼玉県狭山市富士見2 狭山市駅の賃貸住宅[賃貸マンション・アパート]情報 物件詳細 | Transportation facilities 交通機関 | | Seibu Shinjuku Line / Sayama walk 19 minutes Seibu Shinjuku Line / Sayama bus 4 minutes (bus stop) Fujimi 2-chome, walk 4 minutes 西武新宿線/狭山市 歩19分 西武新宿線/狭山市 バス4分 (バス停)富士見2丁目 歩4分
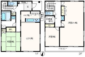
| Floor plan details 間取り詳細 | | Sum 8 Hiroshi 21.4 Hiroshi 6 LDK16.7 和8 洋21.4 洋6 LDK16.7 | Construction 構造 | | Light-gauge steel 軽量鉄骨 | Story 階建 | | 2-story 2階建 | Built years 築年月 | | March 1998 1998年3月 | Nonlife insurance 損保 | | 20,000 yen two years 2万円2年 | Parking lot 駐車場 | | Free with 付無料 | Move-in 入居 | | Immediately 即 | Trade aspect 取引態様 | | Mediation 仲介 | Conditions 条件 | | Musical Instruments consultation 楽器相談 | Property code 取り扱い店舗物件コード | | 2192 2192 | Fixed-term lease 定期借家 | | 5-year fixed-term lease 定期借家 5年 | Intermediate fee 仲介手数料 | | 1.05 months 1.05ヶ月 | Remarks 備考 | | drag ・ 230m to ace Sayama Fujimi shop / 522m to FamilyMart Sayama Fujimi Street ドラッグ・エース狭山富士見店まで230m/ファミリーマート狭山富士見通りまで522m | Area information 周辺情報 | | Yaoko Co., Ltd. Kitairiso shop 612m until the (super) up to 780m FamilyMart Sayama Fujimi street store (convenience store) up to 522m Lawson Sayama Fujimi 2-chome (convenience store) drag ・ Ace Sayama Fujimi shop 335m until (drugstore) to 230m San drag Sayama shop 483m medical corporation Sayama Central Hospital to (drugstore) (hospital) ヤオコー北入曽店(スーパー)まで780mファミリーマート狭山富士見通り店(コンビニ)まで522mローソン狭山富士見2丁目店(コンビニ)まで612mドラッグ・エース狭山富士見店(ドラッグストア)まで230mサンドラッグ狭山店(ドラッグストア)まで483m医療法人狭山中央病院(病院)まで335m |
Building appearance建物外観 
Living and room居室・リビング 






Kitchenキッチン 
Bathバス 
Toiletトイレ 
Other room spaceその他部屋・スペース  Back door
勝手口
Washroom洗面所 
Parking lot駐車場 
Supermarketスーパー  Yaoko Co., Ltd. Kitairiso store up to (super) 780m
ヤオコー北入曽店(スーパー)まで780m
Location
|